当前位置:首页 > 户型图分析

#办公智造#

阅读 962190 | 粉丝 962190

  • 南熙Nancy / 设计师

    2024年09月03日 09:25:04

    + 关注
    #办公智造#

    空间设计中,结合海恩斯坦的品牌企业色将不同空间层次串联起来,实现品牌力的流淌。前厅以简约基调表达高级的视觉效果,舒适的色调烘托出平静的空间氛围。发光背景墙递进空间层次。世界地图的出现构成了空间中微妙的波动,透露出独特的视觉信息。高品质的材质和高标准的施工细节成为了项目的一大亮点。减法,让空间更丰富。顶部细长的灯带增加纵深感,与挑高围合成干净通透的多功能空间。多样化的环境可以使员工自然选择,以便根据不同工作需求,进行灵活整合,开展团队协作。        

  • 南熙Nancy / 设计师

    2024年09月03日 09:22:19

    + 关注
    #办公智造#

    开放与半开放、不同功能间的空间交互,既能让员工专注于特定任务,又能讨论或进行其他社交活动,空间的有序规划,满足员工不同需求,同时确保环境空间的便利性。办公的核心设计,是要进行恰到好处的“留白”。在为数不多的色彩与装潢中,在打破局限、创建趣味与高效的同时,予人以“放空”。即使身处钢筋水泥的城堡,也可回归和谐。通过对功能空间的整体把控,有效利用走道、电梯厅的空间,使整体空间具有品牌展示和品牌叙事的功能,也使访客的参观旅程记忆。考虑到企业对外接洽的需要,利用走道的展示空间,展现品牌的综合风貌,让空间为业务代言。同时整体规划了人流动线,可以灵活地展开对外部访客的交流并降低对公区的干扰。        

  • 南熙Nancy / 设计师

    2024年09月03日 09:20:27

    + 关注
    #办公智造#

    通过对自然和人工照明质量的重视以及设备的精心设置,项目营造了一个富有吸引力的室内实验室。最终创造出功能强大的纺织检测的专业性研究实验室,拥有充足的基础设施和配套空间,彰显了海恩斯坦对行业研究、实验舒适度和卓越设计的愿景。        

  • 陈澄 / 设计师

    2024年09月03日 08:55:50

    + 关注
    #办公智造#

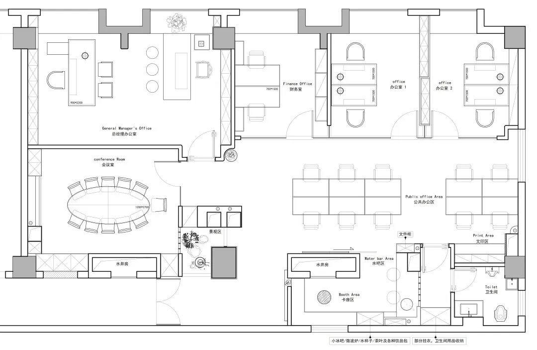
    特劳特办公施工图        

  • 陈澄 / 设计师

    2024年09月03日 08:52:53

    + 关注
    #办公智造#

    特劳特上海陆家嘴总部办公,由外而内的空间迭代        

  • 敏颜 / 设计师

    2024年09月03日 08:18:32

    + 关注
    #办公智造#

    门厅材质选用微水泥,纹理细腻,增强墙面肌理质感,完美地呈现出现代极简主义的写意之美。素色空间中绿植的点缀犹如点睛之笔,赋予美的同时,仿若一抹流动的绿意,为空间加持生机与活力。会议室同样以“简静”为主题,局部以企业文化宣传墙调和空间气质,展示品牌实力,多媒体影视装置加强了墙面空间的信息辐射作用,为参会者提供高效舒适的视觉体验。总经理办公空间并没有过多的繁杂的装饰,品质,时尚,舒适与艺术,对于私人办公空间尤为重要。地毯、木质、皮质等温润材料的选择柔化了室内空间,创造了温暖的的质感,可以畅快地感受空间尺度感与自由。        

  • 毛均峰 / 设计师

    2024年09月03日 08:14:38

    + 关注
    #办公智造#

    色彩是软装设计中不可忽视的元素。我们选择和谐的色彩搭配,以营造愉悦的办公氛围,淡雅的中性色为主基调,有助于减轻员工的视觉疲劳,同时,通过鲜艳的装饰品来点缀空间,增加活力        

  • 喀秋莎 / 设计师

    2024年09月03日 07:12:48

    + 关注
    #办公智造#

     ...        

发布话题

公开