当前位置:首页 > 户型图分析

#办公智造#

阅读 960699 | 粉丝 960699

  • Diana / 设计师

    2024年09月17日 03:34:27

    + 关注
    #办公智造#

    步入律师事务所,首先映入眼帘的是独具特色的门面玄关。简洁大气的设计风格,搭配高品质的材料,给人一种沉稳而可靠的第一印象。在色彩搭配上,设计师们选择了以米白色、暖黄色和木色为主色调,营造出一种自然、舒适的氛围。同时,局部点缀一些明亮的色彩,如红色、绿色等,为整个空间增添了一份活力和生机。        

  • Diana / 设计师

    2024年09月17日 03:33:14

    + 关注
    #办公智造#

    宽敞明亮的茶室会客区,是沟通与交流的重要场所。舒适精致的木质茶几,营造出温馨氛围。柔和的灯光洒下,让人心情放松,为客户与律师之间的交流创造了良好的条件。空间也融入一些东方元素,如挑高接待区做弧形顶、软膜模拟的天光跟老木窗等,营造出中式老厝的情怀跟自然。柔和的灯光、舒适的茶桌椅和绿色植物,让人仿佛置身于一个温馨的客厅。在这里,客户可以感受到律师事务所的专业和热情。律师事务所的办公室是智慧与努力的结晶之地。合理的布局,充足的自然光线,让律师们能够在舒适的环境中专注工作。现代化的办公设备一应俱全,满足了律师们高效办公的需求。        

  • 毛均峰 / 设计师

    2024年09月17日 03:24:49

    + 关注
    #办公智造#

    红色与木色办公空间        

  • 毛均峰 / 设计师

    2024年09月17日 03:23:44

    + 关注
    #办公智造#

    集锦        

  • 刘君雅 / 设计师

    2024年09月17日 03:11:59

    + 关注
    #办公智造#

    昭阳和牧场办公室(1)        

  • 刘君雅 / 设计师

    2024年09月17日 03:10:48

    + 关注
    #办公智造#

    昭阳和牧场办公室(2)        

  • 刘君雅 / 设计师

    2024年09月17日 03:08:35

    + 关注
    #办公智造#

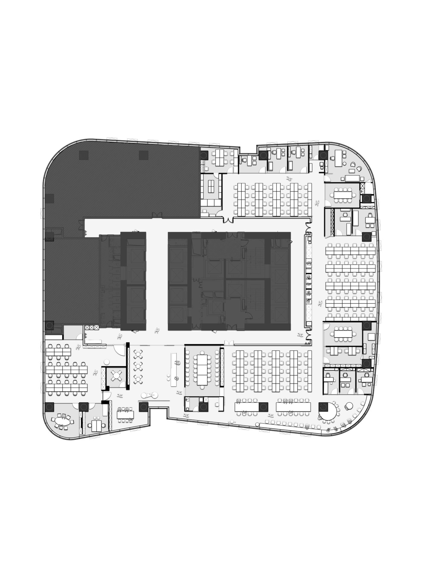
    落地实景        

  • Jason / 设计师

    2024年09月16日 08:44:31

    + 关注
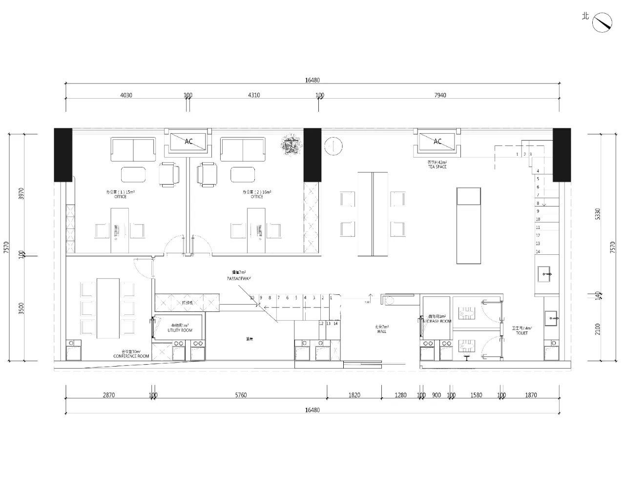
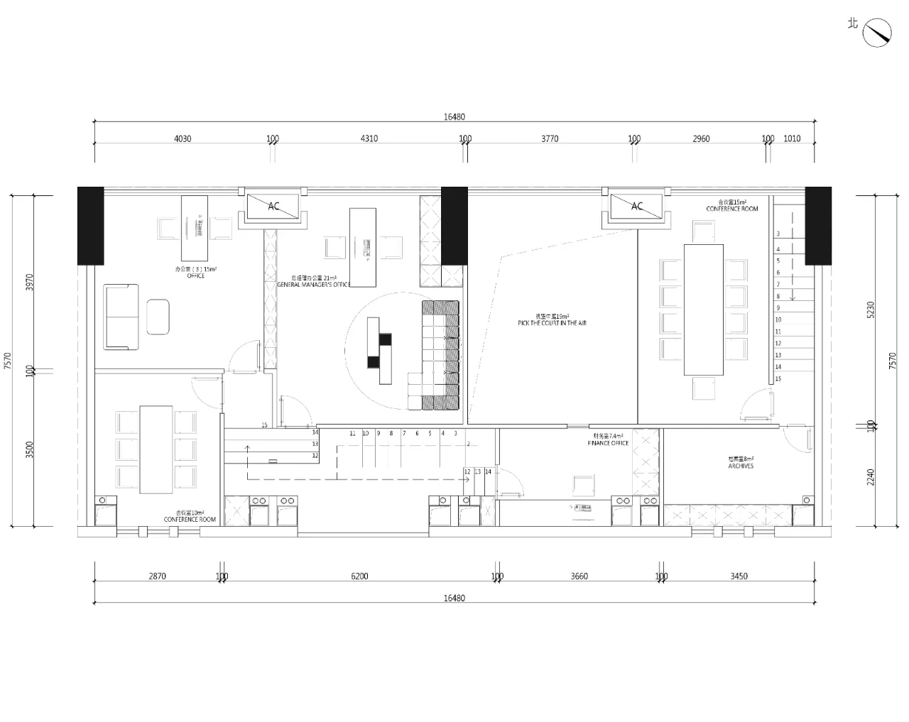
    #办公智造#

    平面布局        

发布话题

公开