当前位置:首页 > 户型图分析

#办公智造#

阅读 960141 | 粉丝 960141

  • 毛均峰 / 设计师

    2024年09月24日 18:27:21

    + 关注
    #办公智造#

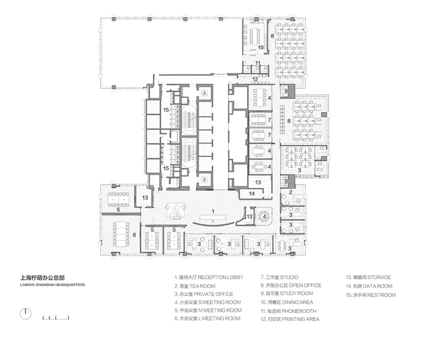
    合伙人办公室以温和的木材和柔和灯光为主,体现空间的简约与力量感。办公桌紧邻落地窗,将城市的天际线引入室内,赋予空间更多的开阔感。书架系统占据了一整面墙,既起到装饰作用,也实用至极,展示了合伙人的书籍、照片和奖杯,赋予整个空间一种个性化的气质。从合伙人办公室区域再次延伸,就是大会议室以及中会议室区域,会议室都有着良好的视野,因此我们将内部空间简化,让室外的城市景色成为一幅移动的画卷,给工作者带来一丝城市里的宁静与享受。空间主要以灰色地毯以及木质墙面为主,去掉一切的装饰,让功能与室外成为空间的主角。        

  • 毛均峰 / 设计师

    2024年09月24日 18:25:07

    + 关注
    #办公智造#

    进入更私密的区域,餐厅是空间的另一个亮点。主色调为明亮的黄色,它不仅充满活力,更是在员工繁忙工作间隙中放松心情的理想空间。每一个区域都有其独特的功能与风格,这是我们在设计中尤其强调的,一个灵活多变、适应不同需求的空间设计理念。
    餐厅设计明亮而温馨,黄色墙面与木质吊顶的搭配增添了活力和自然感。中间的白色吧台简洁,配合两把高脚椅,为员工提供了一个轻松的休憩场所。大长桌和围绕的木椅适合多人同时用餐或进行小组交流,体现了功能性与美感的结合。餐厅内还配备了完善的厨房设备,包括冰箱、微波炉和水槽,满足了员工日常需求,整体氛围友好舒适,有助于团队互动和放松。        

  • Hino / 设计师

    2024年09月24日 14:29:49

    + 关注
    #办公智造#

    低调奢华的哑光黑框架结构与木纹色的柔和自然色形成鲜明对比,让空间或产品设计更具层次感和丰富性。        

  • 张曲峰 / 设计师

    2024年09月24日 14:18:44

    + 关注
    #办公智造#

    从外观上看,该建筑既有国际共鸣的外观和感觉,又有其独特的设计特征。它的形式与历史和环境相呼应,弧形线条、切割和衔接都能让人联想到汽车。周围的地面和停车场经过重新绿化,从街道的视角看过去非常迷人,为员工提供了舒适的户外休息区,让公共交通更加便利,同时减少了热岛效应。        

  • 张曲峰 / 设计师

    2024年09月24日 14:17:19

    + 关注
    #办公智造#

    项目采用了多种策略,包括建筑围护结构性能、暖通空调系统优化、可再生能源以及Lemay能源专家提供的数字工具。被动式和生物气候策略也是该项目产生积极影响的重要部分,采用的自然解决方案包括通风、风量管理和朝向阳光的路径。这处总部能适应环境和四季变化,通过自然冷却降低能耗,同时提高舒适度,自动屋顶系统允许热空气排出,同时允许冷空气进入。        

  • 饶阳 / 设计师

    2024年09月24日 14:10:08

    + 关注
    #办公智造#

    设计师以清爽明亮的白色为基调,配合流线型的前台柜及品质沙发,展现互联网公司的灵活便捷。采用隔板划分,注重实用性和美观性及适度私密性的平衡。搭配彩色瓷砖和绿植点缀,营造明亮温馨的氛围。
    以白色为主色调,搭配深棕色家具和绿色植物,营造低调沉稳的品质,平衡功能性与美观性。木制墙壁(自然元素)与嵌入式照明灯带(功能性照明)相结合,营造明亮且不失温馨的氛围。        

  • 毛均峰 / 设计师

    2024年09月24日 13:57:10

    + 关注
    #办公智造#

    本项目以国际化、年轻化的设计理念,其简洁、清晰的线条和纯粹、高效的动能,带来了一种全新的工作体验,感受现代都市的时尚气息。设计上以白色为基调,营造出简洁、明亮的氛围,白色墙面和浅色地板不仅提升了空间的亮度,还增强了视觉上的宽敞感。走廊、公共区采用蓝色和红色的结合,颜色的碰撞使空间效果更为立体,在视觉上的冲击力能够有效减轻压力,促进创造性思维,鼓励每个人发挥创造力。有效扩展视觉空间,减少心理负担。色彩跳跃是次办公空间的一大亮点,在保持整体色调简洁明快的基础上,同局部色彩的鲜明对比和跳跃,为空间注入了活力和动感。利用颜色和功能性的布局,创造出一个既美观又实用的工作环境,这种设计不仅符合现代职场的需求,更为员工打造一个更加宜人的工作空间。让灵感与思维随时产生碰撞。动线设计采用开放性、指引性的原则,尽量避免封闭空间、采用开放式布局,通过标识、灯光等引导员工移动。在方圆之间取得平衡自然律动,为人与空间建立联系,利用此动线巧妙地将人引入空间内部。合理的动线设计和科学的色彩搭配不仅能提高办公空间的流动性,还能提升员工的工作效率和满意度,促进不同部门之间的交流与互动。

  • 毛均峰 / 设计师

    2024年09月24日 13:54:28

    + 关注
    #办公智造#

    根据团队的工作流程,划分不同功能区,如开放办公室、会议室,休息区等,利用窗户和开敞布局,引入自然光,提升员工的工作效率和情绪。        

发布话题

公开