当前位置:首页 > 户型图分析

#办公智造#

阅读 959384 | 粉丝 959384

  • 丽旻 / 设计师

    2024年09月28日 23:11:52

    + 关注
    #办公智造#

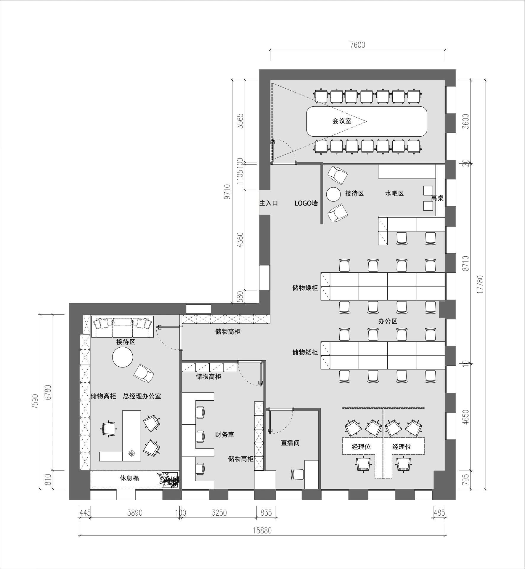
    平面布局图        

  • 魏馨琪 / 设计师

    2024年09月28日 23:10:29

    + 关注
    #办公智造#

    集团办公室实景图(1)        

  • 魏馨琪 / 设计师

    2024年09月28日 23:09:16

    + 关注
    #办公智造#

    集团办公室实景图(2)        

  • 张小葵 / 设计师

    2024年09月28日 22:56:54

    + 关注
    #办公智造#

    设计师将设计注入叙事和崇敬的意义时,面临着将文化遗产和仪式意义编织到现代简约结构中的挑战。故事在细微之处、微妙的过渡中展开,仪式在这里找到了自己的位置。面对材料选择上的限制,我们欣然接受创新的机会,这不是传统意义上的奢华,而是在材料选择中体现出的深思熟虑、可持续性和创造力的奢华。        

  • 敏颜 / 设计师

    2024年09月28日 22:22:31

    + 关注
    #办公智造#

    在现代主义的表现形式下,流畅的线面与交织的光影是最简洁有力的设计元素,前厅选材大气硬朗而不失温度,墙面选用自然舒适的原木色护墙板,吧台在隐藏灯带的衬托下形成悬浮于地面的视觉感        

  • 敏颜 / 设计师

    2024年09月28日 22:21:23

    + 关注
    #办公智造#

    以塑造开放、包容的个人办公场域为整体立意,总经理办公室布局简雅,注重功能与美学的平衡。空间配色以中性色调为主,时尚优雅而不失沉稳大方,可以有效地表达企业文化的内在张力        

  • 敏颜 / 设计师

    2024年09月28日 22:20:21

    + 关注
    #办公智造#

    大空间下的灯光配置尤为重要,通过合理而均匀的立体光影建构,整齐对称的阵列添上几抹绿植焕发空间活力,以视觉舒适传达理念协调        

  • 丽旻 / 设计师

    2024年09月28日 21:47:51

    + 关注
    #办公智造#

    木纹办公空间        

发布话题

公开