装修案例
灵感美图
找设计
找工长
看工地
记住密码
我已阅读并同意注册协议
发布话题
办公改造(1)
办公改造(2)
办公改造(3)
这个设计可以打几分?
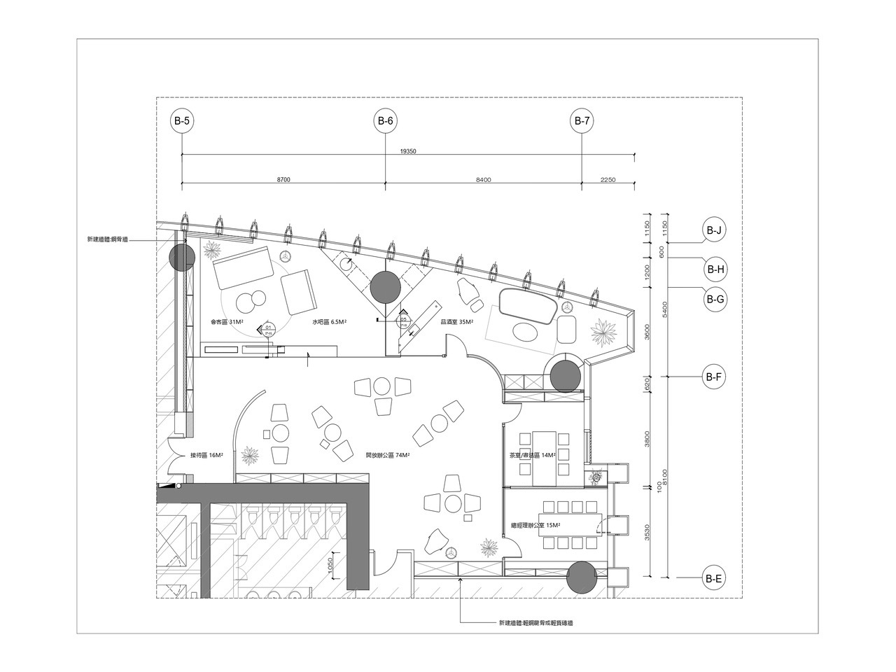
新中办公空间
办公空间设计
小面积艺术办公空间
办公空间实景图(1)