当前位置:首页 > 户型图分析

#办公智造#

阅读 957362 | 粉丝 957362

  • Diana / 设计师

    2024年10月23日 21:35:10

    + 关注
    #办公智造#

    办公空间设计        

  • Diana / 设计师

    2024年10月23日 21:34:13

    + 关注
    #办公智造#

    独立办公空间        

  • Marienn杨恩惠 / 设计师

    2024年10月23日 19:57:18

    + 关注
    #办公智造#

    设计将立体化的画面构图延伸至空间中,重构出一个极具雕塑感的艺术空间,致力于为年轻新生的烧糖文化提供极具自由与高效的创作场域。曲直相间,块面交融直线视觉之中,极具张力的挑高背景墙一直延续至整个天花,为前台大厅带来开阔且通透的心理感受,同时给予进入者久违的仪式感。非对称的块面序列,遮蔽了建筑结构的缺陷,而室内外空间借用可视化的玻璃介质,营造出通透明亮的空间格局,模糊内外的界限,让景观与室内空间融为一体。
    利用块面、隔断和线条等介质来解构空间整体,诉说办公空间的秩序与平衡。遵循由动至静、由开放到私密的组合方式,根据不同需求合理划分空间,从而提升办公效率。在直线组成的块面形态中运用曲线构建空间的柔与钝,让空间画面刚中寓柔,营造不同的空间情绪。设计中运用的不同光源在与线条的协作中赋予空间更为细腻的变化,同时影响着办公场景中人的情绪展现。走进共享办公区,悬浮式墙面设计,隔而不断,兼具实用与美观的双重功能,帮助空间刻画富有雕塑感的形态。        

  • Marienn杨恩惠 / 设计师

    2024年10月23日 19:55:30

    + 关注
    #办公智造#

    自然艺术,畅享自在引景入境,充分利用丰富的区域绿植,营造花园式办公场景,自然生机与光线一同超越界限,游走于场地之间,徘徊于内心深处。景观处放置由建筑大师 Jean-marie massaud 设计的螃蟹椅,以极简的设计和极具雕塑感的形态展露出优雅随性的气氛,空间内部的独立办公区和审片室则同样延续整体格调,达成空间独属的节奏与平衡。        

  • 陆七 / 设计师

    2024年10月23日 19:49:07

    + 关注
    #办公智造#

    一日一图        

  • Diana / 设计师

    2024年10月23日 15:07:52

    + 关注
    #办公智造#

    进入办公室,首先映入眼帘的是简洁的线条和纯净的色彩。白色的墙面搭配浅木色的桌面,营造出一种自然、清新的氛围。裸顶漆吊顶使室内空间更加通透宽敞。整个空间更没有过多的装饰,却让人感到无比舒适。
    展厅以纯白为主旋律,辅以智慧的蓝色与深邃的黑色,营造出一种清新脱俗、科技感十足的空间氛围。监控屏幕与控制面板的巧妙布局,既保证了功能性的需求,又保持了整体空间的和谐统一,每一处细节都经过精心雕琢,既展现了现代设计的简洁明快,又不失科技感与未来感。        

  • Mr.Wang / 设计师

    2024年10月23日 15:05:53

    + 关注
    #办公智造#

    泽西办公楼设计        

  • Mr.Wang / 设计师

    2024年10月23日 15:04:09

    + 关注
    #办公智造#

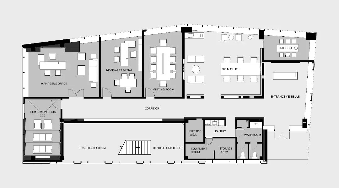
    平面图        

发布话题

公开