当前位置:首页 > 户型图分析

#办公智造#

阅读 957115 | 粉丝 957115

  • 魏馨琪 / 设计师

    2024年10月25日 20:20:25

    + 关注
    #办公智造#

    利落的线条,纯净的色调,恰到好处的留白与灰度处理,使得整个空间显得稳重典雅,营造出一丝不苟的专业氛围与秩序感。
    我们精选了高质量的材质:细腻的乳胶漆为空间带来轻盈与通透,石材、金属与玻璃的巧妙结合,则构建出更丰富的视觉层次与透光感。木质元素的融入,则为空间增添一抹温暖与舒适。        

  • 魏馨琪 / 设计师

    2024年10月25日 20:18:54

    + 关注
    #办公智造#

    空间还具备极高的灵活性,能够适应多种工作安排,包括开放办公区和各种类型的会议室。        

  • Diana / 设计师

    2024年10月25日 18:04:49

    + 关注
    #办公智造#

    以专业而高端的品牌形象,塑造简洁大气的公司大堂,整个过程我们精确地执行照明与材质的安装,确保最终效果的满分呈现。        

  • Diana / 设计师

    2024年10月25日 18:03:17

    + 关注
    #办公智造#

    汲取自然为灵感,以盎然的色调与清新的光影,构筑令人心旷神怡的工作环境。我们通过细致入微的工艺,确保茶水区与休闲区,成为员工放松心境的生态社区。        

  • Diana / 设计师

    2024年10月25日 18:01:17

    + 关注
    #办公智造#

    设置多样化的环境与场景,赋予员工自由选择与使用的权利。我们在每个工程环节都注重细节的处理,还原每个空间诉求,成就企业与员工梦想中的办公场所。
    设置诸如咖啡吧、休憩区、健身房、户外空间等一系列休闲场所,为所有员工提供运动、放松与娱乐的场所选择,满足多元化的需求与偏好。        

  • 张曲峰 / 设计师

    2024年10月25日 16:59:13

    + 关注
    #办公智造#

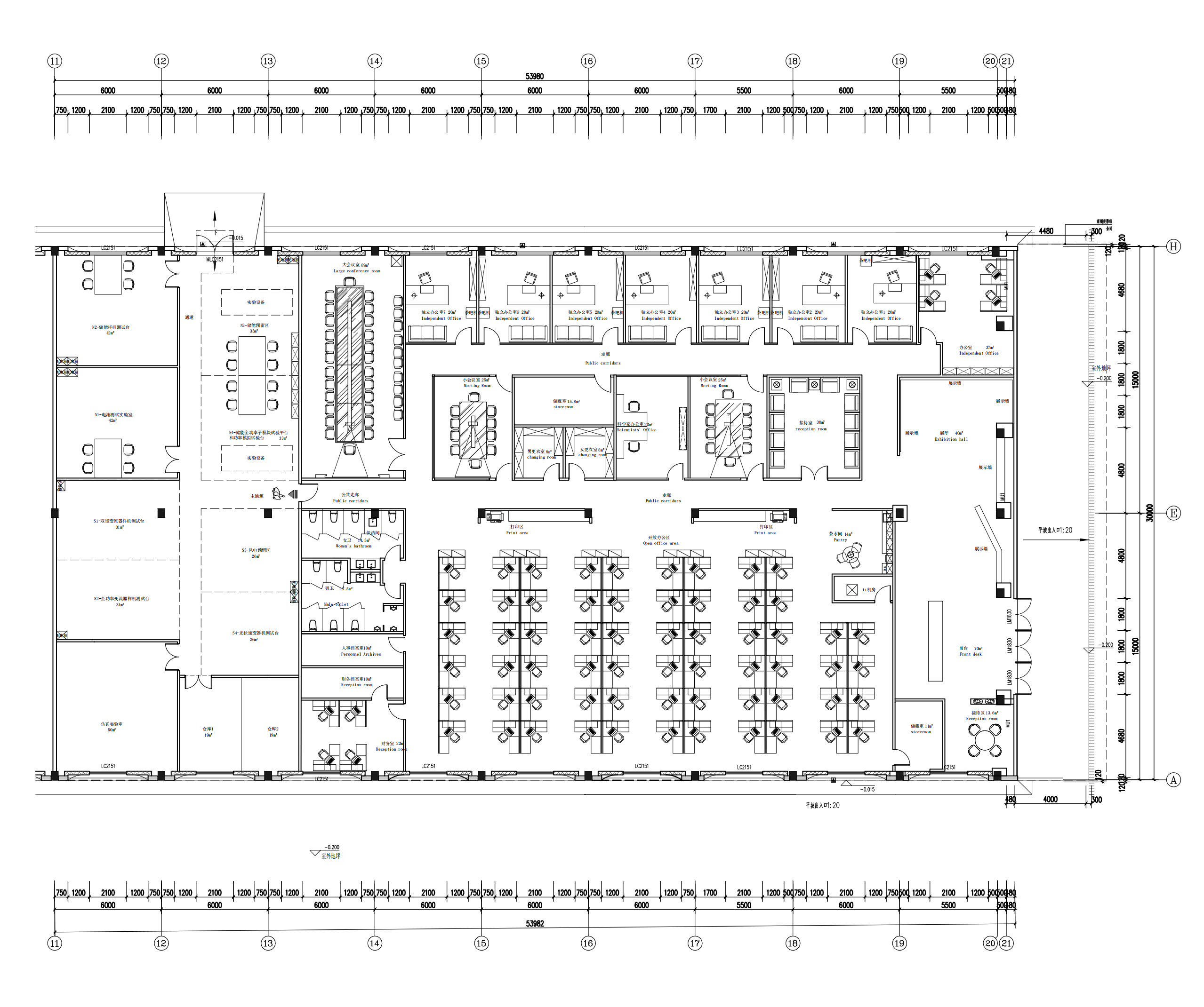
    效果图与平面图        

  • 戴宁 / 设计师

    2024年10月25日 11:02:25

    + 关注
    #办公智造#

    中绿办公空间设计        

  • 小麦庆 / 设计师

    2024年10月25日 10:54:03

    + 关注
    #办公智造#

    品质办公空间(1)        

发布话题

公开