当前位置:首页 > 户型图分析

#办公智造#

阅读 956358 | 粉丝 956358

  • 刘君雅 / 设计师

    2024年11月01日 11:11:44

    + 关注
    #办公智造#

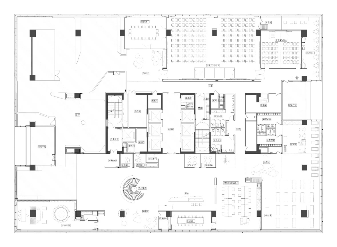
    设计概念从赛意的标识中汲取灵感并结合“空间蒙太奇”的手法,室内设计试图打破原有的传统平面布局,空间采用无墙体隔断形成多元路径,呈现开放自由流动式的平面。从而形成“空间蒙太奇”的新体验,通过流动空间有序和无序的多元体验,创造无限的未来空间可能性。
    结合公司属性提取互联网设计元素,通过数据球的切割形式演变成强烈的几何构成感。结合各职能部门细分出办公模块、研发模块、娱乐模块以及交融模块从而塑造不同的空间使用功能场景。成果是设计中最终的视觉呈现。从平面到空间,构建“幕”与“幕”,“景“与”景之间的联系。在流动的空间中去感受材质、灯光、色彩的结合。通过“空间蒙太奇”的效应带来更丰富的用户体验感,感受科技感的未来办公空间。
    前厅接待区的整体空间纯净而简练,黑白色调反而更凸显超现实氛围,仿佛置身于科技对话未来的场景。几何构成感的前台极具视觉张力,与纯白的背景墙碰撞出别样的空间趣味感。        

  • 刘君雅 / 设计师

    2024年11月01日 11:09:23

    + 关注
    #办公智造#

    旋转楼梯采用流体曲线的美学结构,贯穿四层空间,满足功能特性的同时也是室内独一无二的大型艺术装置。配合材质之间的交错与转变,如金属,如木质,如石材。向上延伸的流动感是未来,是科幻。        

  • 刘君雅 / 设计师

    2024年11月01日 11:07:31

    + 关注
    #办公智造#

    独立办公室、会议室、培训空间则是贯穿始终的线性块面,大型落地玻璃给予了空间通透的呼吸感,让自然光线在内与外中流动。        

  • Mr.Li / 设计师

    2024年11月01日 06:51:56

    + 关注
    #办公智造#

    效果不一般...        

  • 张曲峰 / 设计师

    2024年11月01日 06:50:43

    + 关注
    #办公智造#

    会议室顶的设计        

  • 九可JOKER / 设计师

    2024年11月01日 06:00:43

    + 关注
    #办公智造#

    豪装?        

  • 周金富 / 工长

    2024年11月01日 05:52:00

    + 关注
    #办公智造#

    待安装工程        

  • 周金富 / 工长

    2024年11月01日 05:50:12

    + 关注
    #办公智造#

    收尾阶段        

发布话题

公开