当前位置:首页 > 户型图分析

#办公智造#

阅读 954986 | 粉丝 954986

  • 瑾萱 / 设计师

    2024年11月05日 21:42:24

    + 关注
    #办公智造#

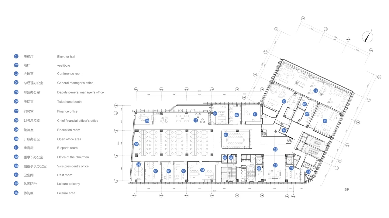
    建筑公司办公设计(2)        

  • 敏颜 / 设计师

    2024年11月05日 21:39:05

    + 关注
    #办公智造#

    明黄的活泼、暖黄的温馨、中灰的沉稳,这三者在空间中交织共舞,如同从晨光到黄昏的自然过渡,赋予场所以时间的流动感和生命力。休闲区成为了一种生活态度的具象化,它不仅仅是色彩与形式的组合,而是一种情绪的延伸,一个让心灵得以释放的庇护所。
    在重塑厦门帝恩思科技股份有限公司的空间时,我们追求的不仅是外在形态的革新与美学提升,更是对空间灵魂的唤醒与传承。
    我们致力于在技术与美学的交织中,挖掘并强化那些时间赋予的独特韵味,搭建起一座情感与功能共鸣的桥梁,让设计成为连结过去与未来的纽带,使设计成为一种叙述,讲述着品牌故事的同时,也映射出对生活本质的深刻理解。        

  • 敏颜 / 设计师

    2024年11月05日 21:35:55

    + 关注
    #办公智造#

    深蓝与灰调的碰撞,展现出一种硬朗而不失深度的美学态度,蓝色块的冷静沉着,与周遭环境形成鲜明对比,仿佛智慧与冷静的化身。而那橱窗内一抹绿意,恰如其分地融入,不仅点缀了视觉,更寓意着自然与人造环境的和谐共生,为空间添上一抹生动与温度,体现了设计对现代与自然融合的深刻理解,以及对生活品质与精神追求的高远情怀。
    紫色,这一融合了红色的热情与蓝色的冷静的神秘色调,在空间中扮演着灵动而深邃的角色。它不仅作为视觉的焦点吸引着每位踏入者的目光,更以其独特的气质。        

  • 敏颜 / 设计师

    2024年11月05日 21:33:36

    + 关注
    #办公智造#

    空间布局以方正为基,不仅象征着秩序与稳重,更是在无形中构建了一个开放的交流平台,鼓励着每一位参与者在严谨的框架内自由对话,满足多元化的会客需求,营造出既正式又不失温馨的互动氛围。        

  • Tina.baby / 设计师

    2024年11月05日 21:15:25

    + 关注
    #办公智造#

    通力电梯办公空间(1)        

  • Tina.baby / 设计师

    2024年11月05日 21:13:26

    + 关注
    #办公智造#

    通力电梯办公空间(2)        

  • 王丹丹 / 设计师

    2024年11月05日 20:59:42

    + 关注
    #办公智造#

    办公空间设计赏析(1)        

  • 王丹丹 / 设计师

    2024年11月05日 20:57:41

    + 关注
    #办公智造#

    办公空间设计赏析(2)        

发布话题

公开