装修案例
灵感美图
找设计
找工长
看工地
记住密码
我已阅读并同意注册协议
发布话题
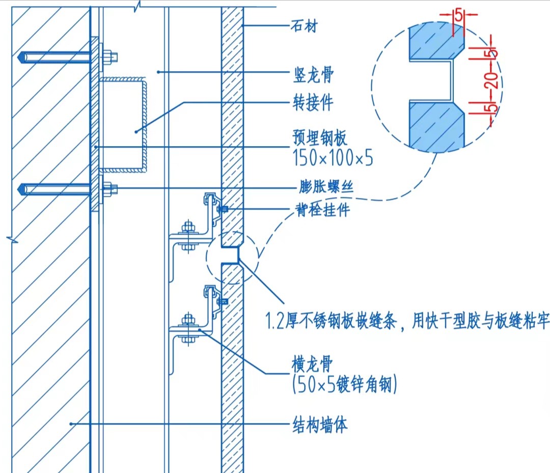
干挂拉槽节点大集合
艺术感拉满办公空间
红星路35号(1)
红星路35号(2)
红星路35号(3)
美丽田园办公空间
整体装饰保持经典、低调的风格充足的自然光营造出明亮宜人的环境接待区和会议区以更暗、更柔和的色调为特色与明亮、简约的工作区形成鲜明对比营造了一种和谐的氛围