装修案例
灵感美图
找设计
找工长
看工地
记住密码
我已阅读并同意注册协议
发布话题
构建(2)
办公室实景图(1)
办公室实景图(2)
New office in the park
好看...
玻璃隔断
办公大楼效果图
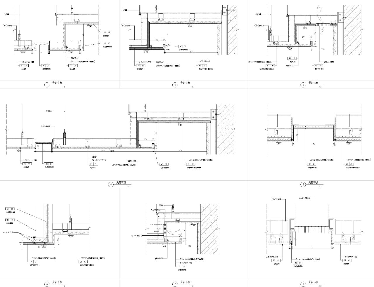
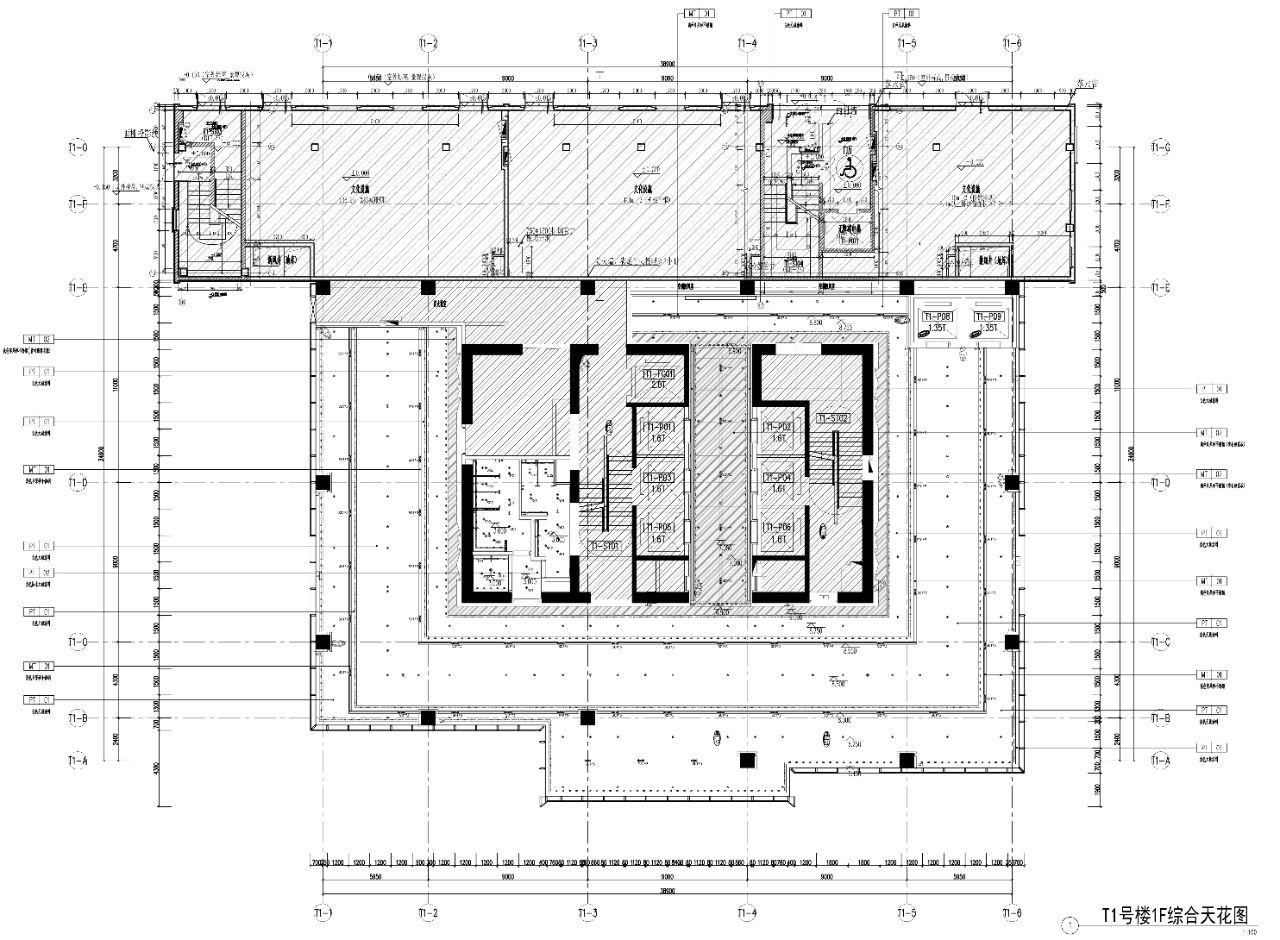
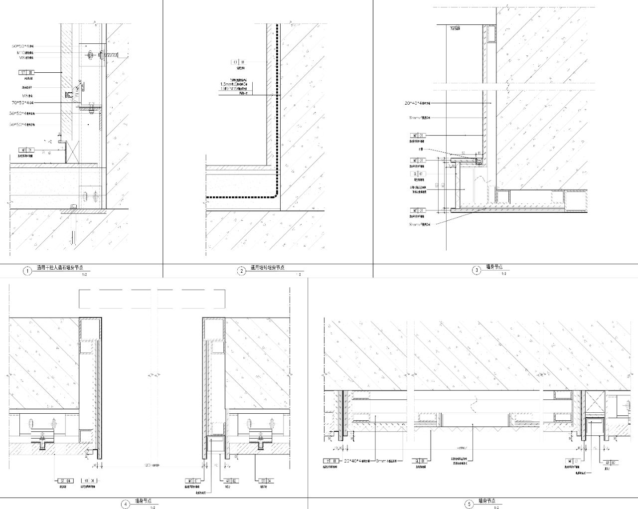
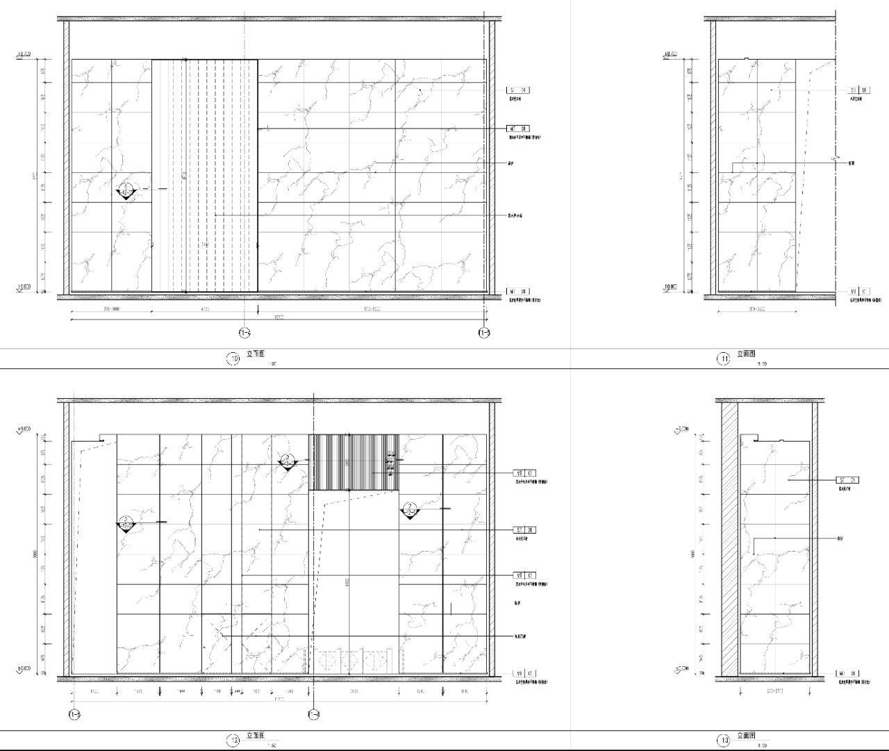
办公大楼大厅图纸