装修案例
灵感美图
找设计
找工长
看工地
记住密码
我已阅读并同意注册协议
发布话题
茶室与独立办公室
办公空间设计
绿色空间
一日一图
办公空间岩板墙面
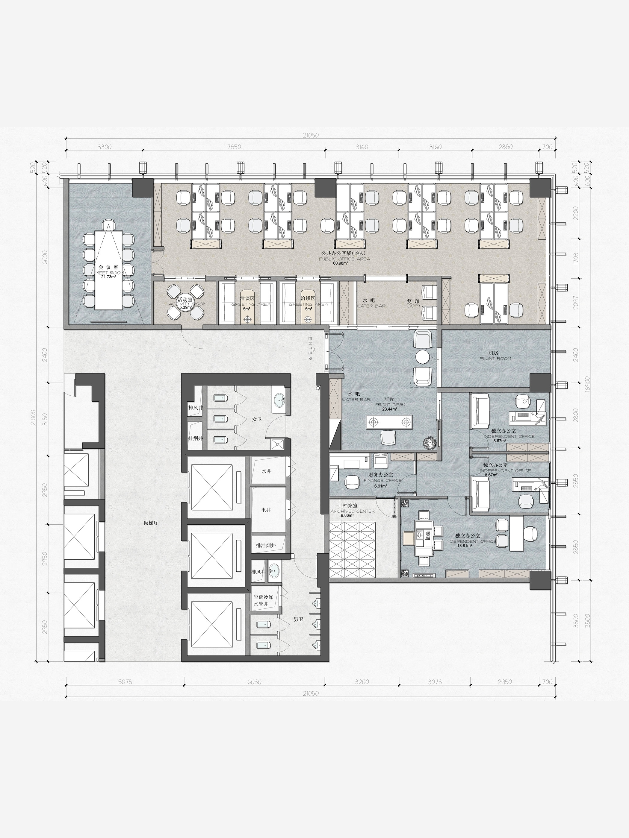
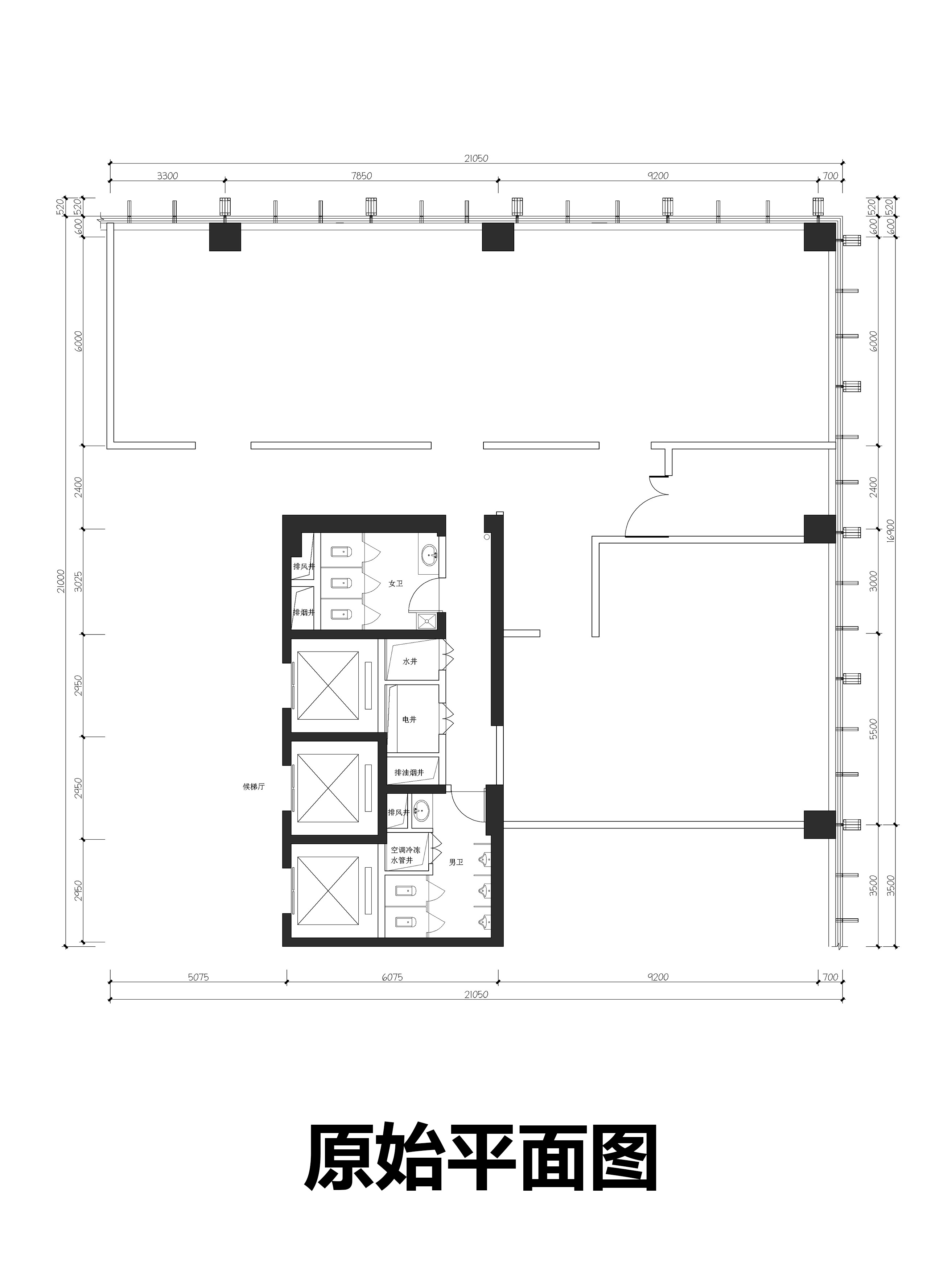
办公空间布局方案推演
超具透亮感的办公空间
拍摄剪影