当前位置:首页 > 户型图分析

#办公智造#

阅读 952696 | 粉丝 952696

  • Camille yu / 设计师

    2024年12月17日 08:48:06

    + 关注
    #办公智造#

    现代工业风办公室 | 空间与光线共舞
    空间布局采用开放式,去除多余隔断,空间显得宽敞通透。材质选择上,裸露的水泥柱和钢梁展现出原始粗犷感,是工业风的典型体现,而木质柜台和地板则带来温暖,缓和了冷硬感。
    色彩搭配以黑、白、灰为主,黑色家具与灰色墙面营造出沉稳冷静氛围。灯光设计巧妙利用自然光线,大面积窗户让光线充分进入,减少了白天对人工照明的需求。
    家具选择体现简约实用理念,如黑色皮质座椅和金属框架茶几。装饰细节上,没有过多繁杂装饰,保持简洁风格。这种设计让整个办公室散发出独特的现代工业风魅力,空间与光线完美融合,给人带来一种既时尚又实用的办公环境体验        

  • 饶阳 / 设计师

    2024年12月17日 06:22:06

    + 关注
    #办公智造#

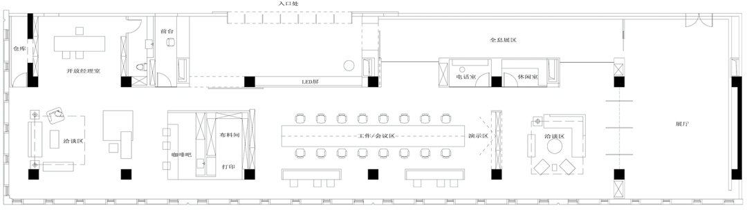
    考虑到海珀特公司的科技属性,空间的功能从设计之初就被分成两个部分——展示与办公。由于空间体量用来满足固定员工的办公需求绰绰有余,设计将空间划分为 1:3 的比例,前者用做设立科技展厅,旨在为来访者展示企业形象与技术产品的同时,为他们提供一处交流和探讨的场所。
    展厅整体风格以开敞明亮为主,贯穿的线条强调了思想上的前进与探索。较大面积的留白,满足了未来的发展需求,也方便随时增加展台新产品。玻璃和金属元素的加入,使室内平面与通透的立面相呼应,增加了空间的体量感,力求为空间的「科技」氛围再添一笔。在充分了解海珀特公司的背景和历史后,设计围绕其核心产品内容,对展厅区域的浏览动线进行了规划,使其呈现出具有导向性的适度线性路径:公司整体介绍—核心技术一对一介绍—核心技术的存储与运输展示—未来展望与合作企业介绍。这样的动线排布不仅能引领观众,也能让其对海珀特公司的高新技术建立更全面的了解。
    不同于常规仅靠灯源打光的避光展厅,设计从节能减排的环保原则入手,将展厅布局在两面临窗的区域,让自然采光得到了最大限度的利用。同时连接室外动线,将建筑景观纳入室内观众的视野。白色隔断墙和透明玻璃的穿插,延长了空间在白天的明亮时间,为参观者带来视觉上的开阔与通透感。        

  • 饶阳 / 设计师

    2024年12月17日 06:19:00

    + 关注
    #办公智造#

    设计在办公空间内大量运用沉稳的灰色和未来感十足的白色饰面,并加入木色元素,让空间更加亲近自然,变得简洁、大气。此外,将企业 LOGO 色应用到洽谈区域软装、办公桌隔板等空间细节中,为空间赋予企业文化的同时,增加了空间整体色调的统一性。
    为满足员工在工作不同阶段的需求,设计围绕一个空间的核心,在办公空间中进行了明确的动静区域划分。动式区域的设立,让员工可以在工作中随时交流和走动,以保证办公室的协同性;静式区域则以保护隐私和减少干扰为重,旨在提高每位员工的办公效率。        

  • Li hao / 设计师

    2024年12月17日 06:08:27

    + 关注
    #办公智造#

    办公室实景图        

  • 魏馨琪 / 设计师

    2024年12月17日 06:06:40

    + 关注
    #办公智造#

    115平方办公空间        

  • 尤曼吖 / 设计师

    2024年12月16日 23:12:03

    + 关注
    #办公智造#

    办公室实景图(1)        

  • 尤曼吖 / 设计师

    2024年12月16日 23:10:06

    + 关注
    #办公智造#

    办公室实景图(2)        

  • 月半三斤 / 设计师

    2024年12月16日 22:03:28

    + 关注
    #办公智造#

    橙色风暴 | 一个人见人夸的现代质感办公空间        

发布话题

公开