当前位置:首页 > 户型图分析

#办公智造#

阅读 949407 | 粉丝 949407

  • 杨梅酱 / 设计师

    2025年03月05日 06:42:45

    + 关注
    #办公智造#

    青松制药项目用地为扇形状,设计回应场地和周边,建筑围合成内向庭院空间,景观设计延续建筑设计的现代极简风格,营造平静自然有凝聚力的产业园区。水系、景墙、草地、元宝枫,形成空间的序列感和秩序感。        

  • 杨梅酱 / 设计师

    2025年03月05日 06:36:26

    + 关注
    #办公智造#

    室内延续室外现代极简风格,追求经典耐用的永恒之美,用金属玻璃混凝土大理石本身的质感,构筑简洁有张力的空间,有限成本内以克制的设计,赋予空间历久弥新的质感,timeless的体验。        

  • 饶阳 / 设计师

    2025年03月05日 06:34:51

    + 关注
    #办公智造#

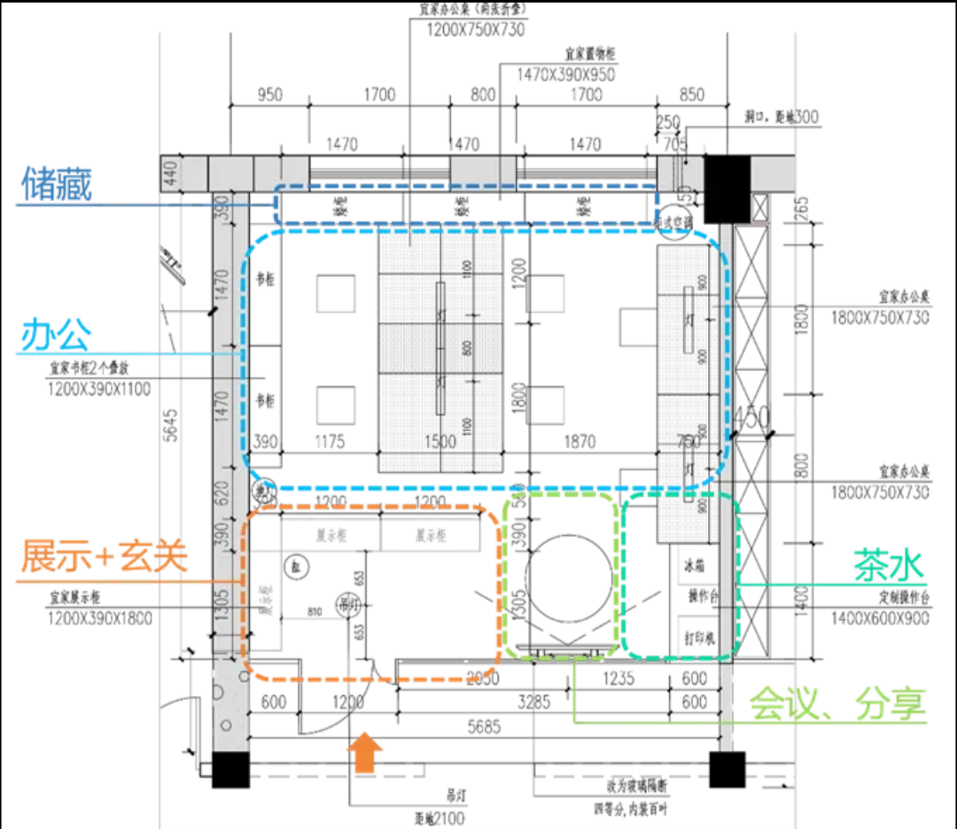
    入口处隔墙改为玻璃高隔+部分实体墙,增加呼吸感,实体墙部分为门窗开关提供位置。玄关由高度1.8米的展示柜半围合而成,作为内外过渡;简单的共享空间,以木质圆桌为中心,日常会议讨论、洽谈及聚餐等使用。圆桌紧邻茶水区,方便使用。办公区座椅三排,吊灯底距地约2米,垂直于窗布置,保证办公良好照度和侧向自然光的关系。与书柜墙相对的墙面挂三幅摄影作品,是色彩丰富的视觉点。
    与建筑设计不同,室内设计考虑的尺度更小,桌子尺寸、通道大小、灯位置、操作台高低、桌椅高度等,与人的使用息息相关。从大的功能分区开始,划分使用空间,布置家具,再从人尺度出发,反过来调整空间的细节,如此往复。        

  • Joan 王怡琼 / 设计师

    2025年03月05日 06:26:17

    + 关注
    #办公智造#

    案例展示        

  • 魏馨琪 / 设计师

    2025年03月05日 06:16:58

    + 关注
    #办公智造#

    序厅作为展厅的入口,不仅是企业的门面,更是参观者了解企业的重要窗口。整个序厅采用开放式空间布局,宽敞明亮。
    曲线的造型不仅增加了空间的层次感,还象征着企业不断发展的动态轨迹。在空间划分上,序厅与展厅的其他功能区域既相互独立,又通过合理的过渡设计实现了自然融合。入口处,习主席的话语是对新质生产力的重要论述,也与哈森秉持“三高、三新”理念相吻合,推动3D打印技术创新,转化科技为生产力。序厅背景墙则运用了大面积的高清 LED 屏幕,滚动播放着哈森智造的企业宣传片、核心技术成果以及经典项目案例。
    动态的画面与静态的话语相互映衬,在第一时间向参观者传递了哈森智造的品牌理念与发展成就,有效强化了品牌的视觉冲击力,让每一位踏入展厅的参观者都能迅速被吸引。
    序厅的中央位置,一面巨大的圆形柱子矗立其中,柱子表面采用了点阵式的灯光设计,闪烁着科技的光芒。这些灯光点阵不仅为序厅增添了科技感,还象征着企业在智能制造领域的核心地位。天花板的设计采用了流畅的曲线造型,白色的主色调搭配柔和的灯光,营造出一种现代而优雅的氛围。多层次的灯光布局,包括基础照明、重点照明和氛围照明,共同营造出丰富的光影效果,让参观者在感受科技魅力的同时,也能享受到舒适的视觉体验。
    走过序厅,就是展厅的主要区域,通过动线将其划分为导入区、设备厅和材料厅。觉木团队在设计理念统一前提下,根据展厅不同特性将其呈现多元化风格,充分展现觉木团队对于卓越设计的不懈追求。导入区设计简洁且富有科技感。墙面采用浅灰色调,搭配黑色线条,营造出一种现代、专业的氛围。天花板上的圆形吊灯与条形线条相结合,增添了空间的层次感。展示墙上以时间轴的形式呈现3D打印发展简史,从1983年开始,有序地展示了各重要年份的图片,彰显出企业的历史底蕴和发展脉络。另一侧则通过灯箱展示内容,体现了公司的技术特色。整体设计在简洁中透露出哈森智造的专业与创新。        

  • 魏馨琪 / 设计师

    2025年03月05日 06:11:12

    + 关注
    #办公智造#

    互动区是整体设计中的亮点部分,其采用了环绕式造型。通过中间富有科技设计的互动装置,能够将材料的发展历程与应用历史以直观且生动的方式呈现于大屏幕上,极大地增强了观众的参与感和体验感,让观众仿佛置身于材料科技的奇妙世界中。与此同时,屏幕的灯光与下方圆形的黑色地面相互映衬,营造出沉浸感十足的氛围。天花板上的环形灯带和墙面的灯光设计,为整个互动区提供了充足且柔和的照明,进一步突显了该区域的科技氛围。真正实现了科技与设计的完美融合,为展厅增添了无限活力与吸引力。
    荣誉墙区域彰显的是企业的成就与实力。荣誉墙本身采用了弧形设计,内嵌一个蓝色的地球图案,上面有 “HARSON” 字样,强化了品牌信念,也与哈森智造在“绿色智造引领未来"的理念不谋而合。左侧的灯箱进一步丰富了展示内容,也避免了左侧过于单调的局面。时光隧道是展厅的一大亮点,设计上采用了极具创意的时空穿越概念,让访客在参观过程中仿佛置身于时间的长河之中。隧道的入口设计成一个充满科技感的拱门,内部则通过灯光和多媒体展示,营造出一种神秘而引人入胜的氛围。隧道内部的展示内容以企业的发展历程和未来展望为主题,通过动态的灯光效果和多媒体展示,生动地展现了企业的成长故事和未来愿景。
    会客区整体设计大气庄重不失温馨,房间内铺设着带有中式传统花纹的地毯,搭配上排列整齐的米白色沙发和深色木质茶几,尽显典雅氛围。背景墙上气势磅礴的长城壁画,既凸显出中国元素,予人雄伟壮观之感,更体现了汉森智造勇攀高峰、再创辉煌的企业精神。
    两侧的窗帘采用了浅棕色,柔和了整体空间色调,天花板上的嵌入式灯光提供了充足而柔和的照明。大面积的玻璃隔断上带有条纹装饰,在保证空间通透感的同时,也增加了视觉上的层次感。整体设计游刃有余,彰显了觉木团队高超的设计理念与对卓越的不断追求。        

  • 刘静 / 设计师

    2025年03月05日 06:06:28

    + 关注
    #办公智造#

    进入大门后,映入眼帘的是我们崭新的大堂,空间比以往更加阔达大气,既体现专业严谨的行业特质,又融入多种温暖元素,为客户带来更加优质、尊贵的到访体验。全新打造的会议室,以智能化设备与科学布局为核心,配备多功能显示屏、远程会议系统及高速网络,满足团队协作、客户洽谈、案件研讨等多种需求。在这里,时间与效率被重新定义。          

  • JoJo / 设计师

    2025年03月04日 16:46:53

    + 关注
    #办公智造#

    收尾工作        

发布话题

公开