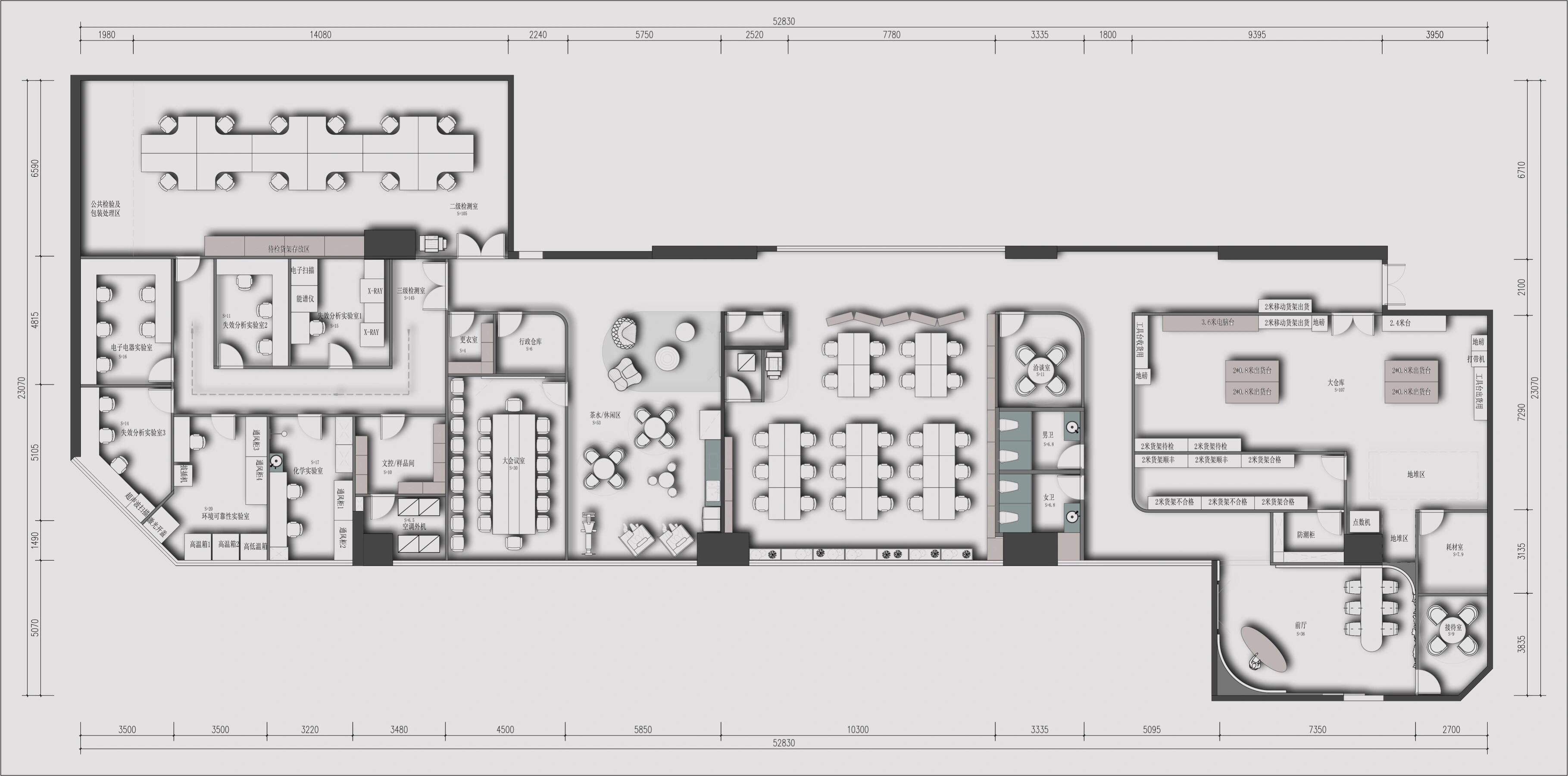
当前位置:首页 > 户型图分析

#办公智造#

阅读 948451 | 粉丝 948451

  • Diana / 设计师

    2025年03月17日 11:34:44

    + 关注
    #办公智造#

    办公空间设计赏析(1)        

  • Diana / 设计师

    2025年03月17日 11:33:01

    + 关注
    #办公智造#

    办公空间设计赏析(2)        

  • 王丹丹 / 设计师

    2025年03月17日 11:25:46

    + 关注
    #办公智造#

    棕、木、灰三色构建空间的自然基调。浅灰理性而轻盈,剥离了纯白的冷冽,呈现独特的现代感,结合柔和的原木色,形成轻松、舒适的空间视觉。棕色沉稳而有气质,用于局部空间之中,丰富空间的层次与体验。
    在材质的选择上,以原生质感为语言,利用木饰面的温润与海洋板的流动性,营造自然且具有生活化的办公环境。细腻的涂料与水泥的粗粝在冲突中达成共生,诠释了理性与感性的共存哲学。

  • 王丹丹 / 设计师

    2025年03月17日 11:22:36

    + 关注
    #办公智造#

    开放式的办公区遵循着去繁从简的原则,通过立面体块的开合,遮挡与局部的穿插,构建出多层次的视觉与空间体验。海洋板的流动纹理,清新盎然的绿植,良好的采光,将自然与空间和谐相容,呈现舒适、轻松、具有呼吸感的办公环境。
    独立办公室延续着空间的统一性,没有过多的设计元素,仅留下必要的,构建一个纯粹而简洁的空间。
    老板办公室融合东方美学与现代功能,兼顾会客、工作于一体,少了几分严肃、多了几分宁静。山水诗画、隐逸闲趣,贯穿其中。温润沉稳的木质、写意的装饰画以及拙朴的陶艺,营造出了含蓄内质而不失礼序的气度。        

  • 王丹丹 / 设计师

    2025年03月17日 11:20:08

    + 关注
    #办公智造#

    餐厅设计延续东方美学基因,简化装饰层次,注重留白设计,将商务宴饮转化为更具亲和力的东方雅集,在木香与墨韵间达成功能与意境的微妙平衡。餐厅洗手间采用黑色水磨石,深木色柜体嵌入其中,无任何其他装饰,维持干净整洁的同时,呼应着餐厅静谧的气质。
    直播间内以墙面陈列架实现产品展示,纯色基底确保视觉舒适度。这里没有冗余复杂的材质,只有秩序无声的语言,为直播场景构建零干扰的沉浸式场地。
    洗手间运用讲究且利落的设计语言,通体细颗粒水磨石地面延伸至墙面,搭配白色一体式台盆,简约而不失格调。        

  • 陆子野 / 设计师

    2025年03月17日 06:44:58

    + 关注
    #办公智造#

    办公室实景图        

  • 张小葵 / 设计师

    2025年03月17日 06:43:40

    + 关注
    #办公智造#

    AMPLE        

  • 张小葵 / 设计师

    2025年03月17日 06:40:48

    + 关注
    #办公智造#

    AMPLE        

发布话题

公开