当前位置:首页 > 户型图分析

#办公智造#

阅读 939501 | 粉丝 939501

  • 庆东 / 设计师

    2022年08月31日 08:44:48

    + 关注
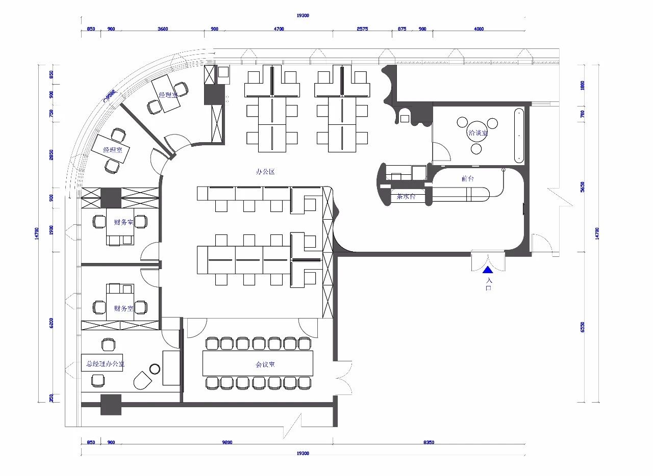
    #办公智造#

    大气款办公室设计        

  • 易壮壮 / 设计师

    2022年08月30日 19:53:58

    + 关注
    #办公智造#

    易筑案例                

  • 无忌 / 设计师

    2022年08月30日 16:57:51

    + 关注
    #办公智造#

    大匠激光办公室        

  • 刘静 / 设计师

    2022年08月30日 15:10:08

    + 关注
    #办公智造#

    设计师在有限的空间中塑造了相对无限的精神世界,让时间超越空间。空间内所有的情景节点伴随着光影变幻、融合。概念、空间与人之间相互触动,让置身其中的工作者在工作的同时充分享受空间的无限延伸,点燃设计所需的无限想象。
    设计的工作性质决定了他们需要更加解放思维,在办公位上肆意挥洒灵感之光。为此,他们选用锈迹斑驳的金属板与玻璃般透明的球体、粗糙的原墙面与光洁的镜面天花,几种相互矛盾的材质并置其中,让空间产生微妙的自由感。        

  • 匡志贤 / 设计师

    2022年08月30日 12:12:20

    + 关注
    #办公智造#

    为了在150平方米的空间中满足顾客的使用需要,在平面布局中对功能的分区做了以顾客为中心的规划。
    相较之前,动线更加流畅,空间功能的布局更加合理充分。体现 Italian Smart Office 结合社交性、多模式、移动的、结合科技于一体的规划。        

  • 匡志贤 / 设计师

    2022年08月30日 12:09:31

    + 关注
    #办公智造#

     走廊的另一侧延伸是会议室与样品展示区,做到客户活动区域与工作区域的分离,保证洽谈环境的独立性。        

  • Sue / 客服

    2022年08月30日 10:36:18

    + 关注
    #办公智造#

     今天是个好日子…        

  • 俊泽 / 设计师

    2022年08月30日 08:30:02

    + 关注
    #办公智造#

     今天的任务就是修改…修改…再修改…        

发布话题

公开