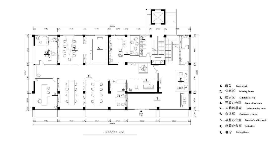
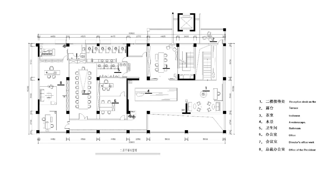
当前位置:首页 > 户型图分析

#办公智造#

阅读 939208 | 粉丝 939208

  • Siri / 设计师

    2022年09月09日 09:12:43

    + 关注
    #办公智造#

    办公室也要颜值(2)        

  • 木子李 / 设计师

    2022年09月09日 07:40:56

    + 关注
    #办公智造#

    灰色水磨石,对立而统一
    打破边界,探知未来
    开放自由的动线布局
    赋予空间“生长”性
    打破刻板拘束的工作环境
    实现更具想象力与生命活力的留白空间        

  • 李明 / 设计师

    2022年09月08日 23:30:40

    + 关注
    #办公智造#

    最寬闊的開放場域為夥伴們的主要辦公空間,緊鄰大面落地窗,白天日照充沛,將自然縈繞空間,陽光穿梭在縫隙的氣息,使空間不受束縛,讓空間在不同角度,有著不同的感受!        

  • 大鹏 / 设计师

    2022年09月08日 18:57:58

    + 关注
    #办公智造#

    颜色上以高级灰作为主,配合落地玻璃,整体简洁大方的同时,还囊括窗外的美景。其设计保留石库门的包容、含蓄、大度、创新的内在精神,而风格上则是形成浦江两岸,新与旧的呼吸与融合的风格特征。        

  • 大鹏 / 设计师

    2022年09月08日 18:55:54

    + 关注
    #办公智造#

    灰度玻璃盒子半透的方式,让置身其中的人奇妙的拥有了一层保护色。而品质感极优的玻璃,赋予绝佳使用体验感,以莫名提升协作的磁场默契。        

  • 王倩 / 设计师

    2022年09月08日 11:00:28

    + 关注
    #办公智造#

    专注控股的核心目标是为公司及其工作人员打造一个既振奋人心,又彰显企业在专业领域地位的办公空间。前台造型以半椭圆截面,构造无棱,弧曲圆浑之势,将动感的“流线”引入静止的空间,墙面造型以简洁流畅的线条蔓延,一种无垠广阔的空间感悄然生发。用简洁的表现形式来满足人们对办公空间环境感性的、本能的和理性的需求,将空间构成与灯光应用相互结合,极简的设计语言和家具所营造的氛围,打造出一个具有个性又内敛的办公环境。        

  • 魏馨琪 / 设计师

    2022年09月08日 10:17:26

    + 关注
    #办公智造#

    易筑案例 | 赛柏特办公室实景图        

  • 毛均峰 / 设计师

    2022年09月08日 09:01:12

    + 关注
    #办公智造#

    出图        

发布话题

公开