当前位置:首页 > 户型图分析

#办公智造#

阅读 941186 | 粉丝 941186

  • 无忌 / 设计师

    2022年11月19日 16:43:10

    + 关注
    #办公智造#

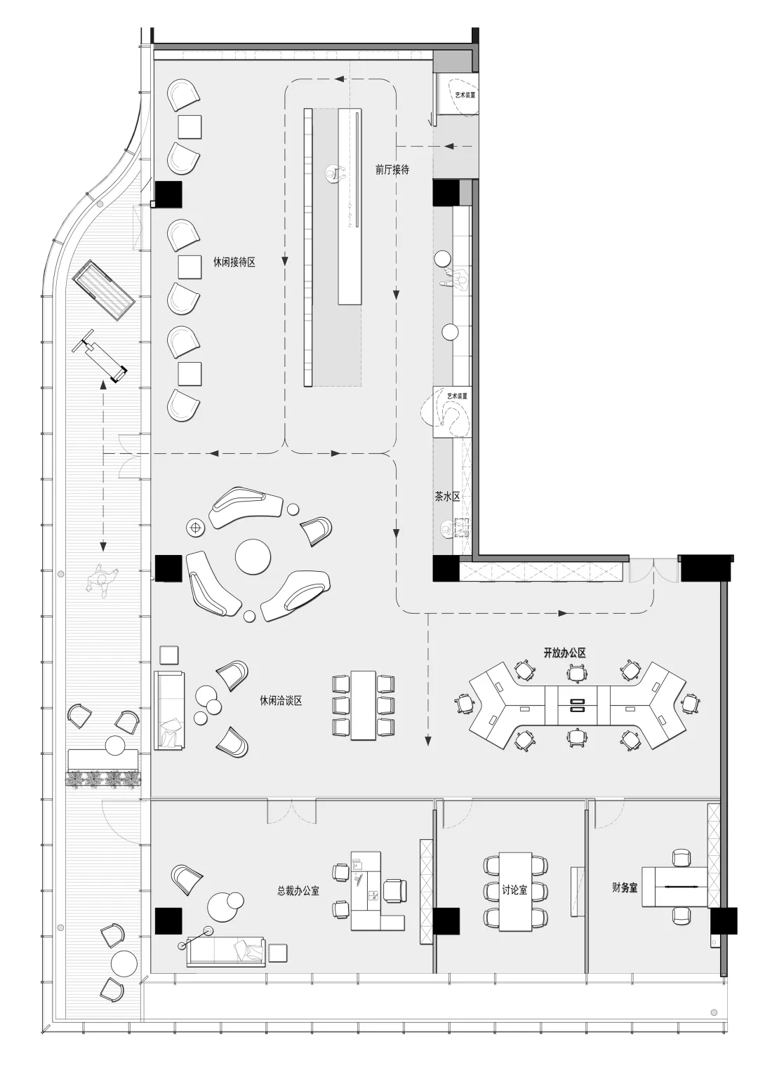
    前程无忧办公室(2)        

  • 大鹏 / 设计师

    2022年11月19日 16:34:08

    + 关注
    #办公智造#

    我们在前厅设计中没有采用过多复杂的造型,只有简洁的线条与体块的搭配;整体色调以白黑色为主,搭配主LOGO的红色,省略了繁复的装饰手法,一切回归到点线面的基础处理,给人干练、严谨的感觉。也体现了律所公平、公开、公正的理念。        

  • 大鹏 / 设计师

    2022年11月19日 16:32:05

    + 关注
    #办公智造#

    休闲茶水区延续现代简约风范,选材和用色与外部空间也有关联,灰白基调打底,红色点缀,让员工带着积极乐观而热情的情绪,兼顾办公、待客、小型讨论的多样化用途。
    色调淡雅地毯,配合温暖的木质家具。突出了办公室的亲切,和睦,轻松的氛围。整个空间稳重大方,具有质感的胡桃木色系材料的运用延续了大方庄重的时尚感。        

  • / 设计师

    2022年11月19日 16:16:33

    + 关注
    #办公智造#

    西安中投融城地产企业总部(1)        

  • / 设计师

    2022年11月19日 16:14:39

    + 关注
    #办公智造#

    西安中投融城地产企业总部(2)        

  • 李明 / 设计师

    2022年11月19日 16:05:46

    + 关注
    #办公智造#

    设计希望通过场地的打造,让空间更加舒适、灵动、便捷,良好的办公氛围,对于工作效率及人员情绪都有着积极的影响。        

  • 李明 / 设计师

    2022年11月19日 16:04:30

    + 关注
    #办公智造#

    设计打破传统办公色彩,接待台采取亮色作为空间主色调,突出新时代氛围的同时,感受独特的办公体验与多元化的社交生活场景        

  • Camille yu / 设计师

    2022年11月19日 15:57:43

    + 关注
    #办公智造#

    通过表格系统性地整理、分析办公空间中不同人群的行为活动及工作状况数据,得出员工的本质需求,通过完整理性的表格和数据分析制定出办公空间的规划策略。根据数据和矩形结构的场地空间情况,设计师以楼板中心为发散点,作出「十字交叉」的结构组织规划,统筹主要交通空间,让其成为连接一层各个功能空间的枢纽地带。因此,横向置入使用频率最高的会议空间模块,纵向为接待台及其他次主要功能分区模块,不同区位的办公人员可以灵活快捷地穿梭在连接路径上,让员工以最短的动线解决工作与诉求实现高效办公和协作。        

发布话题

公开