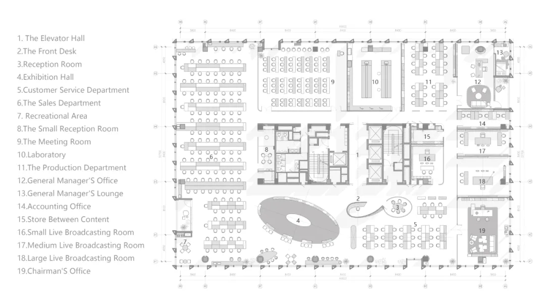
当前位置:首页 > 户型图分析

#办公智造#

阅读 938187 | 粉丝 938187

  • 毛均峰 / 设计师

    2023年01月06日 09:06:01

    + 关注
    #办公智造#

    利用镜面扩展空间
    use a mirror

    利用镜面扩展空间,是以镜面中的虚设空间来扩展实体空间。通常镜面运用得当,可以达到扩展空间的效果,但镜面不宜大面积使用,否则会令人感到眩晕,最好与其他材料结合使用,或直接使用装饰镜。        

  • 毛均峰 / 设计师

    2023年01月06日 09:04:30

    + 关注
    #办公智造#

    灯饰照明效果
    lighting

    可以利用灯饰照明产生宽阔感,特别是原本阴暗的角落,安置一些柔和的装饰灯,不仅让空间显得宽敞,还可以起到日常照明的作用,让办公室看起来更加通透开阔。        

  • 思琪 / 设计师

    2023年01月06日 07:57:13

    + 关注
    #办公智造#

    办公室实景图        

  • Camille yu / 设计师

    2023年01月06日 07:14:06

    + 关注
    #办公智造#

    空间主要由大面积的白色和渐变的蓝紫色系组成。白色是纯净简约的,同时象征着科技与未来,渐变色让整体充满了时尚简约的特性。
    前台和洽谈室均选择了流线形的设计,简单的线条与充分留白之间的层次运用,丰富空间视觉感受。
    展厅部分拥有开放式的格局,尽可能减少墙体和隔断,全方位展示集团产品的同时也使得空间更加开阔包容,从设计手法上展现企业的战略前瞻性。
    展厅中部的主题色渐变的展示台和天花的设计相呼应,让视线得以聚焦,配色契合产品调性与空间调性,也让展厅空间更具现代时尚感。
    用于前台、展示柜等选择富有质感的香槟色提升空间气质,符合美业公司品牌的时尚调性
    会议室的风格延续了空间整体风格,设计上具有可变性,将中间折叠门拉开即变为两个小会议室,方便多功能使用。设计师在设计上注重线与面的关系,天花高低错落的板块赋予空间节奏感,半透明的玻璃贴点时尚简约。        

  • Camille yu / 设计师

    2023年01月06日 07:11:11

    + 关注
    #办公智造#

    生产部办公区域以蓝白为主,与柔和的木质办公桌搭配,营造一种清爽干练的办公环境。玩偶元素的融入为有秩序的空间增添一抹趣味性。        

  • Camille yu / 设计师

    2023年01月06日 07:09:21

    + 关注
    #办公智造#

    中直播间通过更加纯粹的设计手法,来表达极简现代的概念,通过对灯光线条的运用让背景更加灵动,突出产品品牌名称,让视线得以聚焦。
    总经理办公室从色彩上带来年轻新潮的感觉,天花的弧形元素呼应了柱子的线条,整个办公空间时尚与柔和并济。简约的亚克力格子搭配明亮的灯光,更好地展示出收藏的各类手办。        

  • 大鹏 / 设计师

    2023年01月05日 22:26:22

    + 关注
    #办公智造#

    根据“未来工作场所”的概念,整体空间布局开放、灵活、动静穿插、复合多元,以支持个人与团队不同的工作风格。全面开敞的落地窗带来震撼的城市景观视野,设计团队最大化利用自然采光,并让景观视野成为工作场所无与伦比的空间背景。宁静而简约的室内空间与喧嚣繁华的活力城市形成精彩的对话。        

  • 大鹏 / 设计师

    2023年01月05日 22:25:15

    + 关注
    #办公智造#

    设计团队在工作区设计了部分金属网天花装饰,以简洁的元素打破了平面吊顶的单一性。同时竖向垂直线性装饰即有助于整体的简约一致性,又丰富了空间视觉,以微妙的设计语言构筑一个精致优雅、且时尚活力的工作场所。        

发布话题

公开