当前位置:首页 > 户型图分析

#办公智造#

阅读 940141 | 粉丝 940141

  • 小海 / 设计师

    2023年01月28日 21:16:18

    + 关注
    #办公智造#

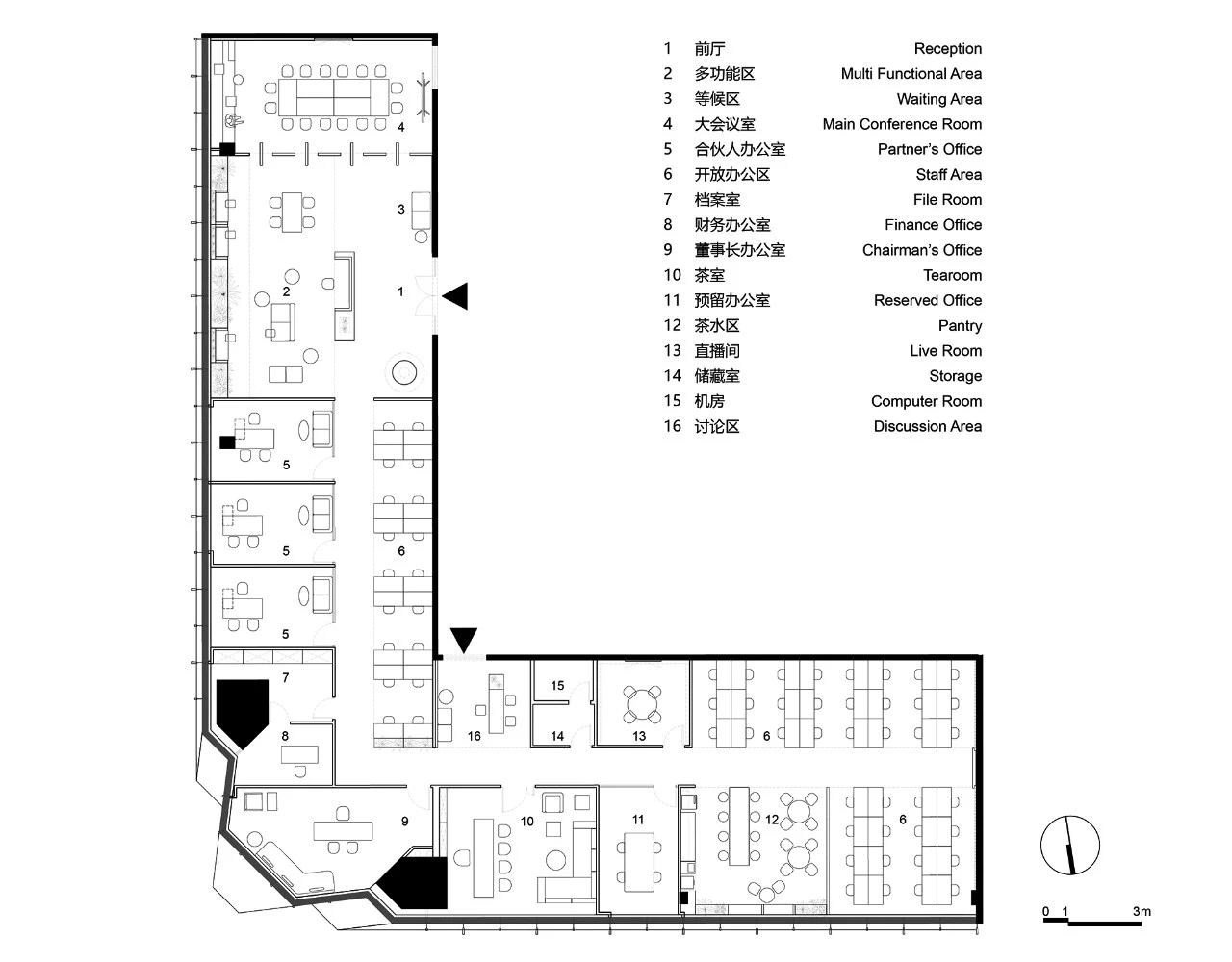
    杜康控股办公室(2)        

  • 俊泽 / 设计师

    2023年01月28日 20:15:31

    + 关注
    #办公智造#

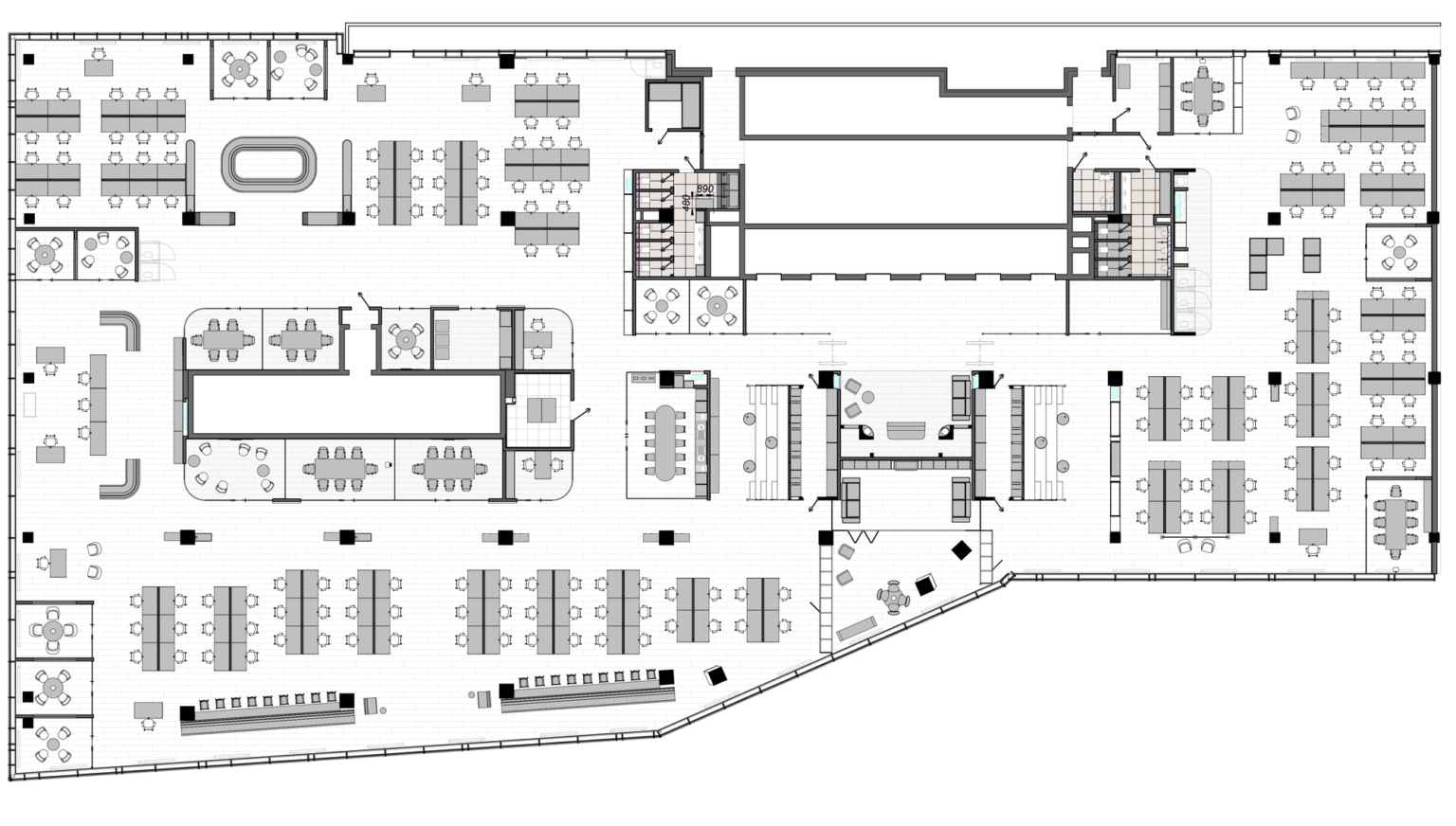
    办公室实景图        

  • Camille yu / 设计师

    2023年01月28日 20:11:41

    + 关注
    #办公智造#

    化妆品办公室        

  • Diana / 设计师

    2023年01月28日 14:50:04

    + 关注
    #办公智造#

    元素:金属、石材、企业元素、艺术藏品等等,我们尝试将所有的元素解构堆叠到一起,去寻找本次项目的空间感觉,“艺术化办公室”的概念孕育而生。        

  • Diana / 设计师

    2023年01月28日 14:48:43

    + 关注
    #办公智造#

    概念结合空间形态及功能需求,我们将各个关键元素进行了空间重构,利用有限的公共及交通空间打造一个游览式的艺术空间。空间整体以稳重的中性灰为基调,墙面采用了自然木纹饰面结合深色金属面板,地面采用纹理鲜明的大理石,以企业色深红色和黑色作为线性元素构成空间。        

  • 阿峰 / 设计师

    2023年01月28日 14:34:02

    + 关注
    #办公智造#

    办公室实景图        

  • 木子李 / 设计师

    2023年01月28日 14:05:37

    + 关注
    #办公智造#

    年轻化是洛克资本给我们的第一印象。我们思考如何能在本次的空间设计上打破对于传统金融公司的固化形象,塑造一个能够体现洛克资本气质的办公空间。
    投资公司给人的固有印象往往是老练、内向的,而在第一次与洛克资本团队见面时,我们感受到了不一样的年轻活力,这与我们印象中的形象是矛盾的,顺着这种矛盾的冲突感,我们与洛克资本进行了更深入的沟通,提取了一系列我们希望共存的空间特性。        

    筑先生

  • 木子李 / 设计师

    2023年01月28日 14:04:02

    + 关注
    #办公智造#

    希望这个空间既充满人文的严谨,又具备自然的活力;既可以严肃的工作,又可以活泼的玩耍;既可以效率的办公,又可以闲适的休憩,尽可能地模糊掉工作与生活的边界。        

发布话题

公开