当前位置:首页 > 户型图分析

#办公智造#

阅读 940235 | 粉丝 940235

  • 饶阳 / 设计师

    2023年02月01日 21:31:21

    + 关注
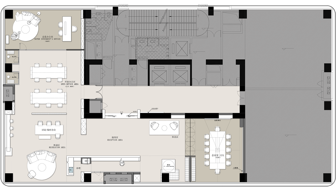
    #办公智造#

    平面布置图        

  • 饶阳 / 设计师

    2023年02月01日 21:26:57

    + 关注
    #办公智造#

    由光构筑的体块贯穿米色墙面的温暖冷静,成为一种氛围媒介界定空间,在镜面反射下散发克制而深邃的柔光,点亮并引导步入者的视线转移,美学下的功能逻辑由此洞现。
    绿色烤漆木制榫卯结构以建构主义独具的雕塑感矗力于空间之中。

  • 饶阳 / 设计师

    2023年02月01日 21:20:28

    + 关注
    #办公智造#

    少种类、色调统一的材料选择与光合二为一,桌椅同色形成的白色体块,在光影的构成下形成空间、改变空间、塑造空间、诠释空间。
    办公空间不是刻板而无趣的生产线,人性化、智能化、可编辑的空间设计原则鲜明地在此体现。        

  • 饶阳 / 设计师

    2023年02月01日 21:18:01

    + 关注
    #办公智造#

    形制不一的家居以温润姿态与现代建筑玻璃幕墙的冷硬形成全新的视觉碰撞。透光百叶帘以其柔美的姿态塑造朦胧的光影空间。
    拼色地毯、同色调的黑白设色及艺术装饰品表达空间的当代雅意,造就静思商谈的静谧之所。        

  • 敏颜 / 设计师

    2023年02月01日 21:12:30

    + 关注
    #办公智造#

    办公室墙面与家具        

  • 小海 / 设计师

    2023年02月01日 15:13:49

    + 关注
    #办公智造#

    现代风格办公室设计        

  • 杨梅酱 / 设计师

    2023年01月31日 18:19:35

    + 关注
    #办公智造#

    空间体验始自办公室前厅,旨在打造出眼前一亮的接待区。员工和访客抵达之后,首先映入眼帘的就是醒目的天花板设计,灵感来源于 Revantage 的“R”。“R” 设计元素也富于创意地应用于其他空间,例如隔音板。设计广泛应用了新加坡风格元素,从土生华人风格的瓷砖,到藤制家具和剪式折叠门图案的墙面,凸显出该办事处的独特身份,同时又传达了与其他办事处一致的设计语言。大型苔藓墙、悬挂式绿化网格等自然植物元素的应用,使环境变得更加柔和,将室外元素引入至室内空间。
    从颜色、纹理到材料都经过精心挑选,既彰显出社交中心的无限活力,又比普通工作区在色调氛围上更加柔和轻快,为员工从前厅移步至工作区打造了无缝过渡的空间。该多功能协作空间在设计时充分考虑了使用灵活性和未来发展需求,令 Revantage Asia 能够轻松改造空间,满足当前和今后的业务需求。
    整个办公室的天花板设计十分独特,不仅能激发视觉兴趣,而且还可作为导向工具,巧妙地划分办公室的不同空间,为用户作出指引,使他们能轻松前往不同的功能区。        

  • 拾柒 / 设计师

    2023年01月31日 10:05:25

    + 关注
    #办公智造#

    办公室实景图        

发布话题

公开