当前位置:首页 > 户型图分析

#办公智造#

阅读 941261 | 粉丝 941261

  • 饶阳 / 设计师

    2023年02月10日 14:23:53

    + 关注
    #办公智造#

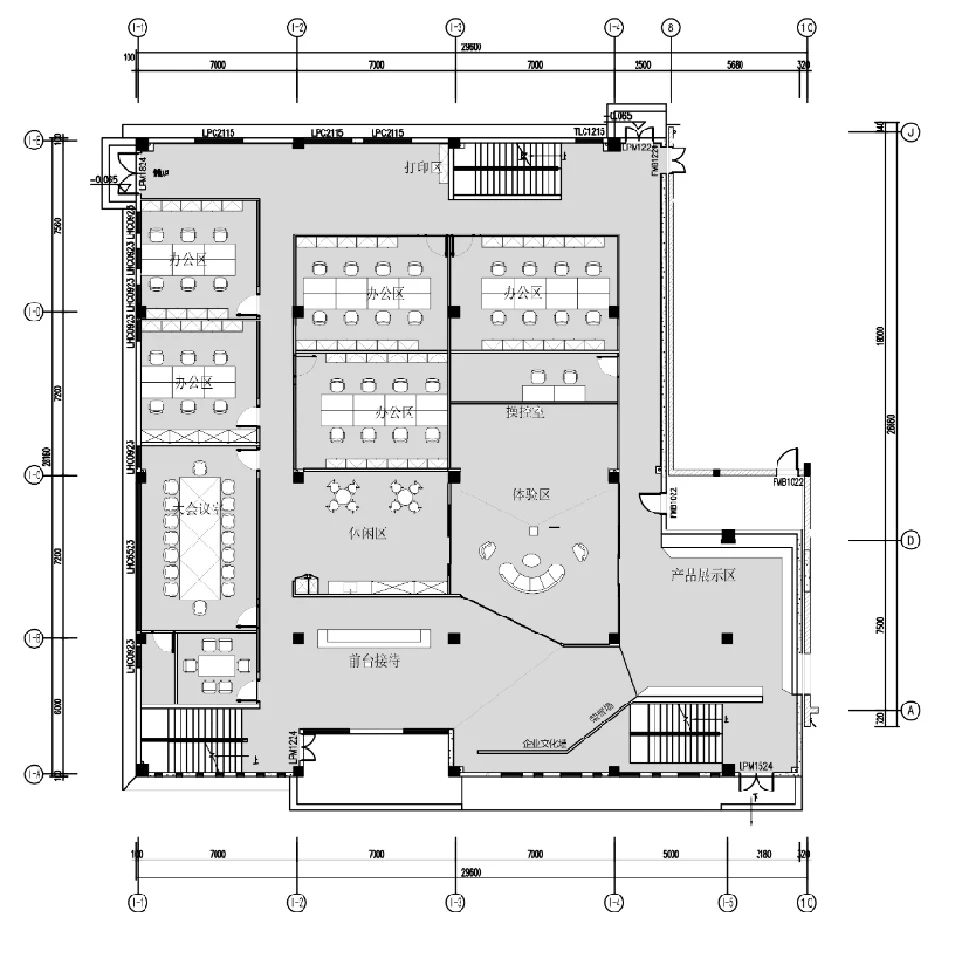
    本次设计服务的对象——OTN智能科技,办公室整体的氛围和装修是传递给客户的一张名片,所以本次设计的重点是智能化×科技感,整体的设计围绕高科技元素展开,严谨锚点,呈现物联网科技发展面貌,体现企业文化与业务重心。
    从体验感和使用感来看,OTN智能科技的办公空间,像是一艘蓄势待发的宇宙科技飞船,使用了PVC、不锈钢、雾化玻璃、白色烤漆玻璃、烤漆铝板、线型灯、人造石等材料,整个风格充满了浓厚的科技感与智能感。
    由前台接待区至体验区,银色的灯带伴随着透明的电动雾化玻璃,以动衬静,将空间动态起来。大量的玻璃镜和烤漆铝板墙面,在感应过道灯的银辉下,反射出高级感。银色元素和灯光配合,凭借最直观的方式塑造简约形象。
    脱离传统的矩形通道和门型,不规则形状的玻璃门,以活泼打破陈规,黑色包边和白色灯带配合,以玻璃显著的通透性,使空间感倍增,将原本不宽裕的空间映衬得非常舒朗。明黄色、鲜橘色、深灰色交织成休憩的沙发,有利于发散思维。   

  • 饶阳 / 设计师

    2023年02月10日 14:21:29

    + 关注
    #办公智造#

    递进的银白灯带,将整体白色的空间划分出层次。黄色、灰色、蓝色的椅子,围靠在一起,使得空泛的空间有了鲜明的跳跃感。黑色的转椅齿轮,仿佛是太空漫步的启发。不远处的玻璃墙,以“透明和开放”为界,区分出休闲区与大会议室,达到既聚合又分离的状态。
    打破沉闷色调或严肃氛围,理想的办公区域让人眼前一亮。玻璃元素隔而不断,将空间的限制感打破,给人无暇的温暖和明亮的希望,既强调空间实用性,又注重色泽及透明感的美学性。有利于激发员工灵感,实现工作计划和目标。
    笔直的长廊,以光线分割出空间,营造出递进感。智能感应灯带,将科技感和雄鹰展翅的向上理念,深深渗透在设计之中,给普通的廊道增添了一抹别致的视觉韵味。光线在空间内自由流动,毫不压抑,十分通透且有未来感。        

  • 大鹏 / 设计师

    2023年02月10日 09:44:43

    + 关注
    #办公智造#

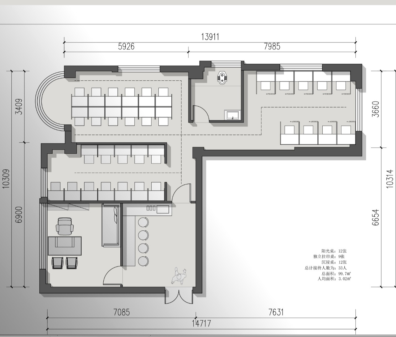
    异形办公室设计        

  • 李明 / 设计师

    2023年02月10日 08:09:05

    + 关注
    #办公智造#

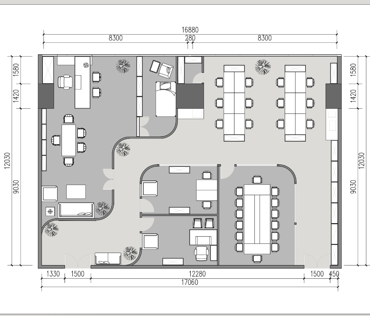
    现代风格实景图        

  • 木子李 / 设计师

    2023年02月10日 06:44:55

    + 关注
    #办公智造#

    办公室设计        

  • 筑先生 / 客服

    2023年02月10日 06:39:03

    + 关注
    #办公智造#

    【众生皆苦   唯有自渡】        

  • Jia L / 设计师

    2023年02月09日 17:00:46

    + 关注
    #办公智造#

    方案设计        

  • Jia L / 设计师

    2023年02月09日 16:58:14

    + 关注
    #办公智造#

    四组方案设计        

发布话题

公开