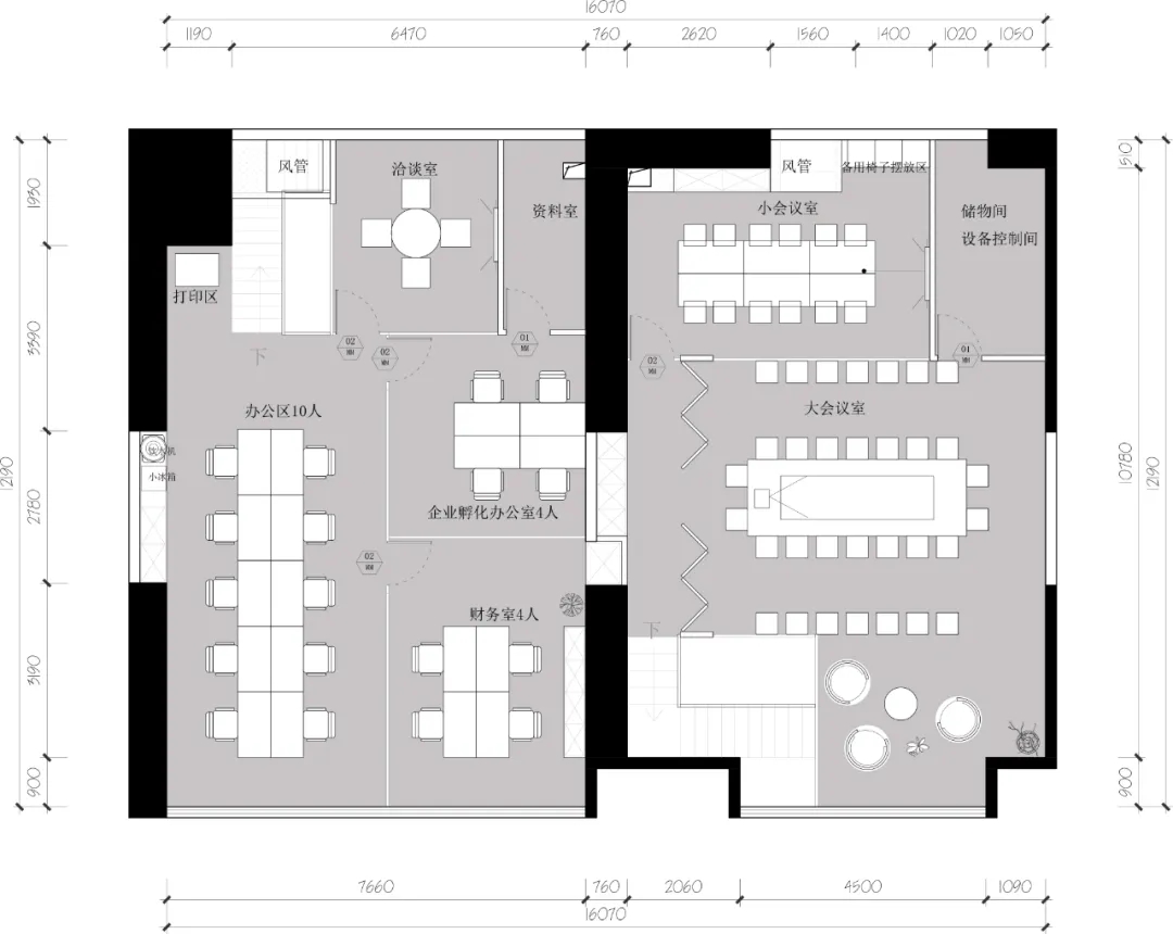
当前位置:首页 > 户型图分析

#办公智造#

阅读 944276 | 粉丝 944276

  • Diana / 设计师

    2023年02月14日 20:55:53

    + 关注
    #办公智造#

    办公设计赏析        

  • 俊泽 / 设计师

    2023年02月14日 20:41:01

    + 关注
    #办公智造#

    办公室实景图        

  • 毛均峰 / 设计师

    2023年02月14日 20:37:57

    + 关注
    #办公智造#

    门厅的设计造型是个通过提取出思倍大写字母(SIB)做抽象艺术化的处理,再体现形的同时融入到整体背景造型中(跟logo的对应关系),石膏板造型的处理上提取了主LOGO的型,造型尖角和弧度的处理都是从主LOGO提取而出,在功能处理上,通过长虹玻璃即表现了大写字母(I)又能够让行政办公室能看到门厅,美观和实用并重。
    一楼办公区考虑到整体采光和层高,在材质选择上以白色乳胶漆为主,局部点缀LOGO色。让空间从视觉效果上表现的干净明亮。
    大会议室在设计考量上对空间赋予了多重功能,折叠移门封闭的时候可作为大会议室使用,折叠移门打开的时候整个空间就变成了大的活动室,可以作为生日会、公司联欢等使用,作为一个休闲活动空间,极大增加的空间的利用率。        

  • 匡志贤 / 设计师

    2023年02月14日 20:33:23

    + 关注
    #办公智造#

    本案整体风格,设计师通过黑白简色的极致运用,营造出严谨开放,灵活稳重的多维可能,团队气场由此散逸,强势流转。
    落脚于空间的始端,前台展现出稳重严谨之姿态,无需繁杂装饰,明晰清朗的线条组合引导而成视觉动向,置身于此,使命之感油然而生,聚焦起磁场宏大的精神场域。
    自信与坚决,职业与气度,跟随着空间的明暗律动延绵起伏。
    连接局部的公共区域以弧线形式布局,外立面采用玻璃材质,暖色调顶灯将自由随性进一步呈现,行步其中,觅得心灵与精神的张弛舒缓。
    走廊是顺承各局部单元的共享之地,多重维度的关联赋予其多重价值体现。以质感灰白色结构堆叠艺术呈现,各部分体块为衍生空间审美有序铺陈,留痕于此,孕育个人价值茂然新生。        

  • 匡志贤 / 设计师

    2023年02月14日 20:30:12

    + 关注
    #办公智造#

    木质墙面隔断代表了源自于东方深邃的智慧,现代的软装座椅深藏着效率时代的收获,在对立之间,巧接当代质感与东方美学。
    透过玻璃外力面的渗透与折叠,洽谈区域更显开放自然。稳定的灯光环绕将陌生隔离,在这里,任性的自我认同亦或群体间的统一趋同,皆可代表万物之法则,任由其在空间飘逸,内心驻留美妙的相逢瞬间。
    空间的排列组合,让我们通过视觉、触觉与感官去体会多元的空间性格。立面的书架与曲线沙发相互映合,传统与现代的交融摆脱了固化的环境模型,将具有流线型的格局体会大胆运用,是对职业精神与严谨态度的尊崇敬意。        

  • 匡志贤 / 设计师

    2023年02月14日 20:26:25

    + 关注
    #办公智造#

    办公新体验        

  • Siri / 设计师

    2023年02月14日 20:18:36

    + 关注
    #办公智造#

    以开放透明 无等级观 高效沟通
    不互扰作为出发点
    使用科技 航海 宇宙为主题元素        

  • Siri / 设计师

    2023年02月14日 20:17:11

    + 关注
    #办公智造#

    以蒂芙尼蓝为空间主题色
    避免空间色调太多单一
    采用对比撞色进行局部点缀        

发布话题

公开