当前位置:首页 > 户型图分析

#办公智造#

阅读 947720 | 粉丝 947720

  • Camille yu / 设计师

    2023年02月26日 17:32:34

    + 关注
    #办公智造#

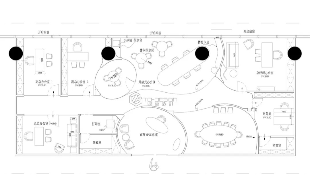
    有两面墙是儿童白描手绘了这里的梦想,洽谈室是表达企业文化的茁壮大树向上的主题,办公区则是表达企业未来无限可能的游乐王国的主题。
    以“白、灰、绿”的色调融合简洁的线条呈现了现代办公美学空间的格调,在有形的场所中领悟无形的精神“喜悦、乐趣、宁静”。
    这里是梦想的开始,一个绿色的梦。        

  • 俊泽 / 设计师

    2023年02月26日 17:24:17

    + 关注
    #办公智造#

    办公室实景图        

  • 张小葵 / 设计师

    2023年02月26日 17:19:13

    + 关注
    #办公智造#

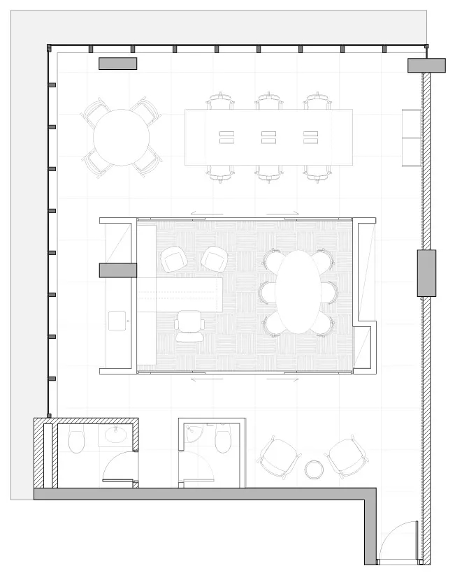
    项目最大的挑战是房间中央区域作为支撑中心体量和划分空间组织的中心柱。而余下的挑战是客户需要一间封闭的会议室和一间封闭但同时具备开阔视野的办公空间。解决方案是利用沿周长设定的交通空间串联起整个项目的空间。
    设计师在现有柱子的位置建造了两堵平行的墙壁,墙中包括储藏空间、档案空间和一个位于中央的既作为办公空间又充当会议空间的玻璃盒子。凭借这种开明的解决方案,项目不仅保留了面朝整个公园的广阔视野,并且还保证了房间内充足的自然光线。        

  • 张小葵 / 设计师

    2023年02月26日 17:17:54

    + 关注
    #办公智造#

    中央空间由轻质玻璃隔断围合而成,无论在房间任何地方都能获得较好的视野和充足的光线。该项目作为一个“陈列室”的最大亮点是对胶合板的使用,设计以包括家具、装饰板材以及内饰等不同的形式展示了公司产品的优良品质和灵活性。与天然木材的色调相比,地板采用了黑色、白色和灰色,因而更加凸显了丰富的色彩和纹理。        

  • 匡志贤 / 设计师

    2023年02月26日 17:00:23

    + 关注
    #办公智造#

    办公室设计        

  • RIDICULOUSNESS / 设计师

    2023年02月26日 16:54:09

    + 关注
    #办公智造#

    携手千挂科技Autra.tech , 打造极具辨识度的科技企业形象(1)        

  • RIDICULOUSNESS / 设计师

    2023年02月26日 16:52:35

    + 关注
    #办公智造#

    携手千挂科技Autra.tech , 打造极具辨识度的科技企业形象(2)        

  • 李明 / 设计师

    2023年02月26日 14:18:07

    + 关注
    #办公智造#

    黑色墙面与线性灯…        

发布话题

公开