装修案例
灵感美图
找设计
找工长
看工地
记住密码
我已阅读并同意注册协议
发布话题
轻奢办公室(1)
轻奢办公室(2)
周末等甲方爸爸…
会议室与独立办公室
办公室中玻璃元素
效果图阶段
完工后效果
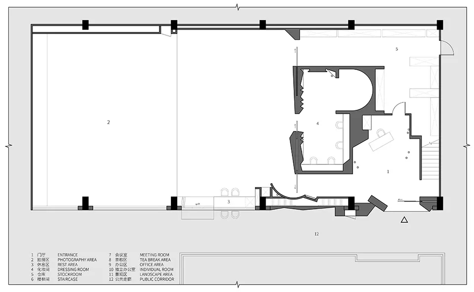
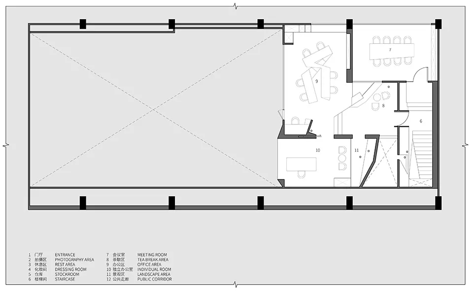
办公桌形态对空间场力的回应The response of desk form to spatial force内部办公分为三个部门,每个部门有两人,并提出了两两一组的工位布置需求。设计师在有限的空间内实现既紧凑又分离的状态是办公区的设计重点。