当前位置:首页 > 户型图分析

#办公智造#

阅读 948624 | 粉丝 948624

  • 李明 / 设计师

    2023年03月05日 08:17:37

    + 关注
    #办公智造#

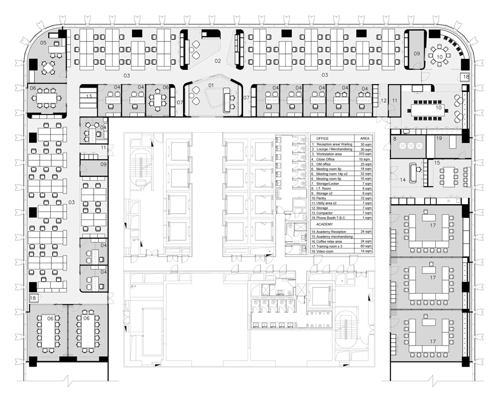
    办公室        

  • 饶阳 / 设计师

    2023年03月05日 07:54:48

    + 关注
    #办公智造#

    整个办公空间的焦点在主前台及客休区,它们被做成两个金属模块造型,与周边独立开来。
    这一设计元素意在致敬玛莎拉蒂的汽车款型:内饰的柔软舒适与丰富的材质,选用实木木皮与Alcantara软包布料,外部用不锈钢板包覆,凛冽的质感搭配蜿蜒的造型,让人回想起汽车车身。        

  • 饶阳 / 设计师

    2023年03月05日 07:52:36

    + 关注
    #办公智造#

    在这样一个功能完善且组织缜密的办公空间,任何员工都能通过配置的前沿科技设备满足日常工作所需。形式丰富、大小各异的辅助空间可以为独立工作和团队协作的员工提供支持,并保有所需的不同程度的私密性。
    咖啡吧布置怡人,是一个利于拉近访客与员工社交距离的好去处,在这里,他们可以忙里偷闲或者觅得一个办公室外的舒适位置继续工作。        

  • 王倩 / 设计师

    2023年03月05日 07:40:00

    + 关注
    #办公智造#

    企业的效率来自于团队协作的效率最大化 ,共享、科技、绿色低碳、人文、创新,人们对现代办公生活的需求,从第一张草图构思开始,全方位考虑,合理整体规划布局,让每一个工作其中的员工都成为空间的主角。        

  • 王倩 / 设计师

    2023年03月05日 07:37:52

    + 关注
    #办公智造#

    空间色彩来自企业与自然的颜色,运用米白与暖灰色作为整个空间的主色调设计,浅蓝色作为整个空间的点亮色,深蓝与橙黄色作为空间的对比辅助调和色彩,营造干净明亮、高效、舒适,具有企业特色的的办公空间。        

  • 张小葵 / 设计师

    2023年03月04日 22:56:57

    + 关注
    #办公智造#

    办公室设计        

  • 戴宁 / 设计师

    2023年03月04日 22:54:44

    + 关注
    #办公智造#

     办公室效果图        

  • 夏毅 / 设计师

    2023年03月04日 22:49:55

    + 关注
    #办公智造#

    300㎡办公室        

发布话题

公开