当前位置:首页 > 户型图分析

#办公智造#

阅读 949030 | 粉丝 949030

  • 毛均峰 / 设计师

    2023年03月08日 12:28:28

    + 关注
    #办公智造#

    嘉实基金办公室        

  • 毛均峰 / 设计师

    2023年03月08日 12:25:16

    + 关注
    #办公智造#

    幻方量化办公室门厅        

  • M / 设计师

    2023年03月08日 10:28:34

    + 关注
    #办公智造#

    黑白办公空间        

  • 易壮壮 / 设计师

    2023年03月08日 09:17:07

    + 关注
    #办公智造#

    以大面积的白通过形态的不同在灯光下形成多元层次,辅以细微变化的灰色以及简单的金属色线条造型,建立空间秩序
    大面积的落地窗户,极好的采光加之足够的高度,开阔明亮的氛围不会左右调动任何情绪,更自由更开放大型开放式空间提升视线和流通效果,让空间更为透彻,不显压抑,为使用者营造了更舒适、更加协同合作和促进社交沟通的工作环境。
    打造开放空间,注重过程中的交流和分享,促进更大的進步。设计师以此作为核心要素,从体验感出发,落实到工作的真切感受。营造出这个和谐共生的“办公室+”概念,办公室+洽谈、办公室+学习,办公室+休闲等场景,将它微缩成一个契合人文情感的环境样本,助力重新启程。        

  • Camille yu / 设计师

    2023年03月08日 09:08:02

    + 关注
    #办公智造#

    503办公室设计        

  • 毛均峰 / 设计师

    2023年03月08日 09:06:28

    + 关注
    #办公智造#

    中欧基金接待大厅        

  • Camille yu / 设计师

    2023年03月08日 09:02:37

    + 关注
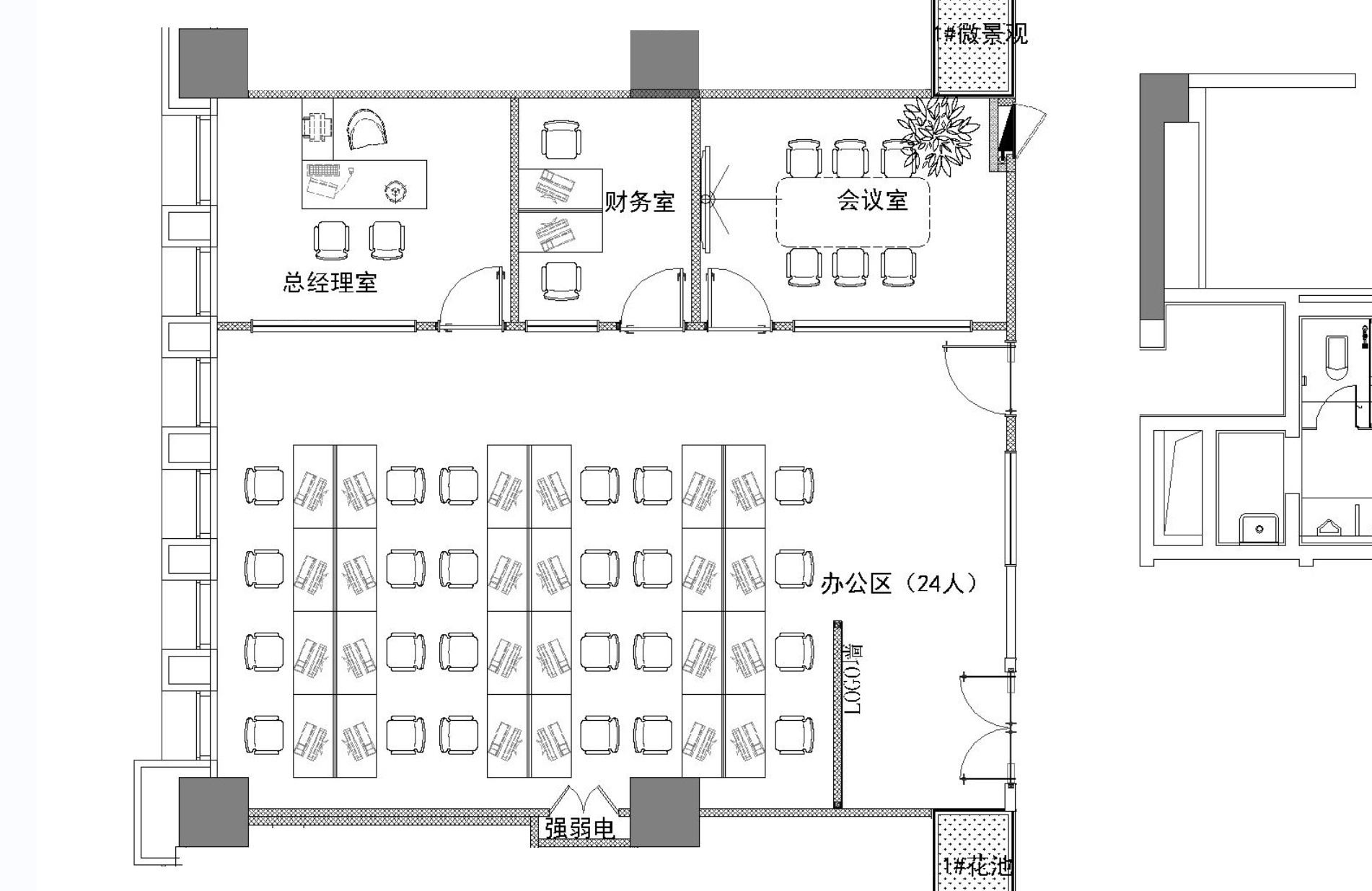
    #办公智造#

    平面布置图        

  • Camille yu / 设计师

    2023年03月08日 09:00:46

    + 关注
    #办公智造#

    办公室家具进场图        

发布话题

公开