当前位置:首页 > 户型图分析

#办公智造#

阅读 949637 | 粉丝 949637

  • Camille yu / 设计师

    2023年03月12日 08:57:30

    + 关注
    #办公智造#

    二楼会议室利用整面的蓝色玻璃墙体,也给整体空间增加了一种色彩以及质感上的亮点。
    二楼办公区域,因为层高较矮采光较弱的缘故,采用了大面积的平面灯,用整面的发光膜结合原始梁体,最大限度的弱化顶部给办公环境带来的压迫感。        

  • 大鹏 / 设计师

    2023年03月12日 08:46:09

    + 关注
    #办公智造#

    办公空间        

  • Diana / 设计师

    2023年03月12日 08:44:05

    + 关注
    #办公智造#

    方案图        

  • Siri / 设计师

    2023年03月12日 08:03:02

    + 关注
    #办公智造#

    设计中『装饰』的意味被降至最低,极简的框架、全白的基调、裸露的管线、温文的肌理,似乎都在试图将空间的本质乍泄给你看。
    整体平面是一个较为规整的长方形房屋结构,内部空间主要为敞开式,几乎每面可以用来取光的墙壁都做成了落地大窗,设计师希望透过窗,让 “盒子里的人”捕捉到更多外部的信息和感受——因时令变换的不同空气、风动、鸟鸣,体感丰盛。
    同时,考虑到甲方所处的行业特性与工作模式,设计的方向是在空间里做减法,用一种类似家庭社区的形式,对传统的幽闭分隔的格子间式办公环境进行改善,以此增进团队成员之间的交流与沟通。
    关于办公室的理想模样,每个人都有不同的要求,但共通的一点大概是要令人感到舒适。在这个项目中,设计师以现代主义原则为基础,用最简单的形式和材料为极简概念塑形,白色墙壁、灰色地砖、浅木色桌面的色彩搭配与材质选择让空间静默而内敛,每个区域看起来都非常整洁有序,不聒噪,不拘谨,不累赘。        

  • Siri / 设计师

    2023年03月12日 08:00:47

    + 关注
    #办公智造#

    线条灯光的使用带来一种异形的科技感,给空间以蓄势待发的张力和动感。
    在极简框架内,通过色彩对不同功能区加以识别与分离,添加部分人文主义表现,提升空间的可亲度与自由意识。
    光面装饰球如同某种装置,为空间注入艺术感和叙事性,球面的反射效用在视觉上深入到空间内部,仿佛与空间以及空间中行走的人进行趣味对话和互动。        

  • Siri / 设计师

    2023年03月12日 07:58:26

    + 关注
    #办公智造#

    简单的几何结构,大片的连续留白,鲜明的跳跃色彩,有机的形态变换,这个办公室最终呈现出丰富的层次变化与空间构成。        

  • Siri / 设计师

    2023年03月12日 07:55:55

    + 关注
    #办公智造#

    繁与简也好,多与少也罢,设计师希望设计落到实处,由人的行为和习惯来决定空间的尺度与纹理。        

  • Siri / 设计师

    2023年03月12日 07:42:16

    + 关注
    #办公智造#

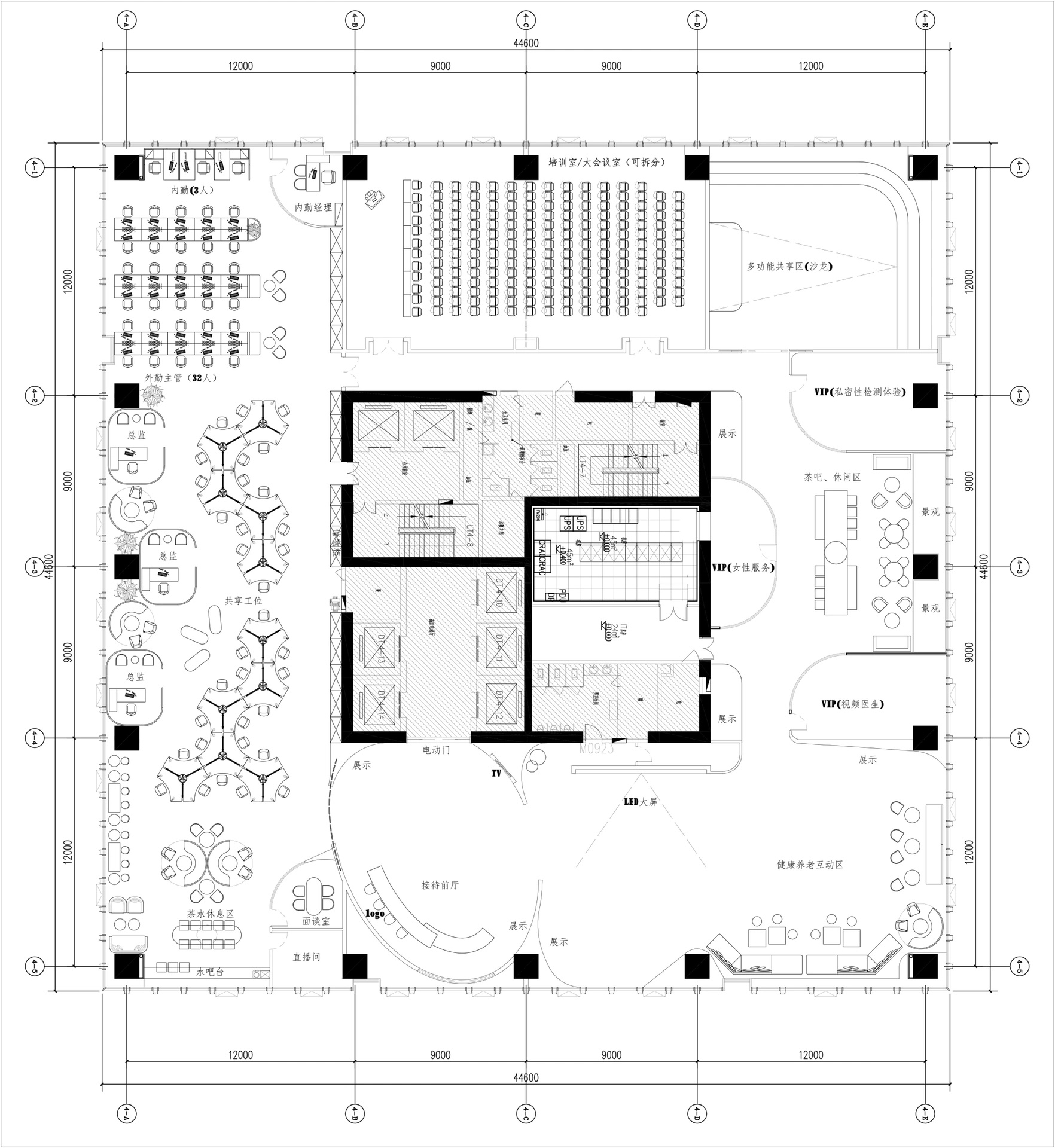
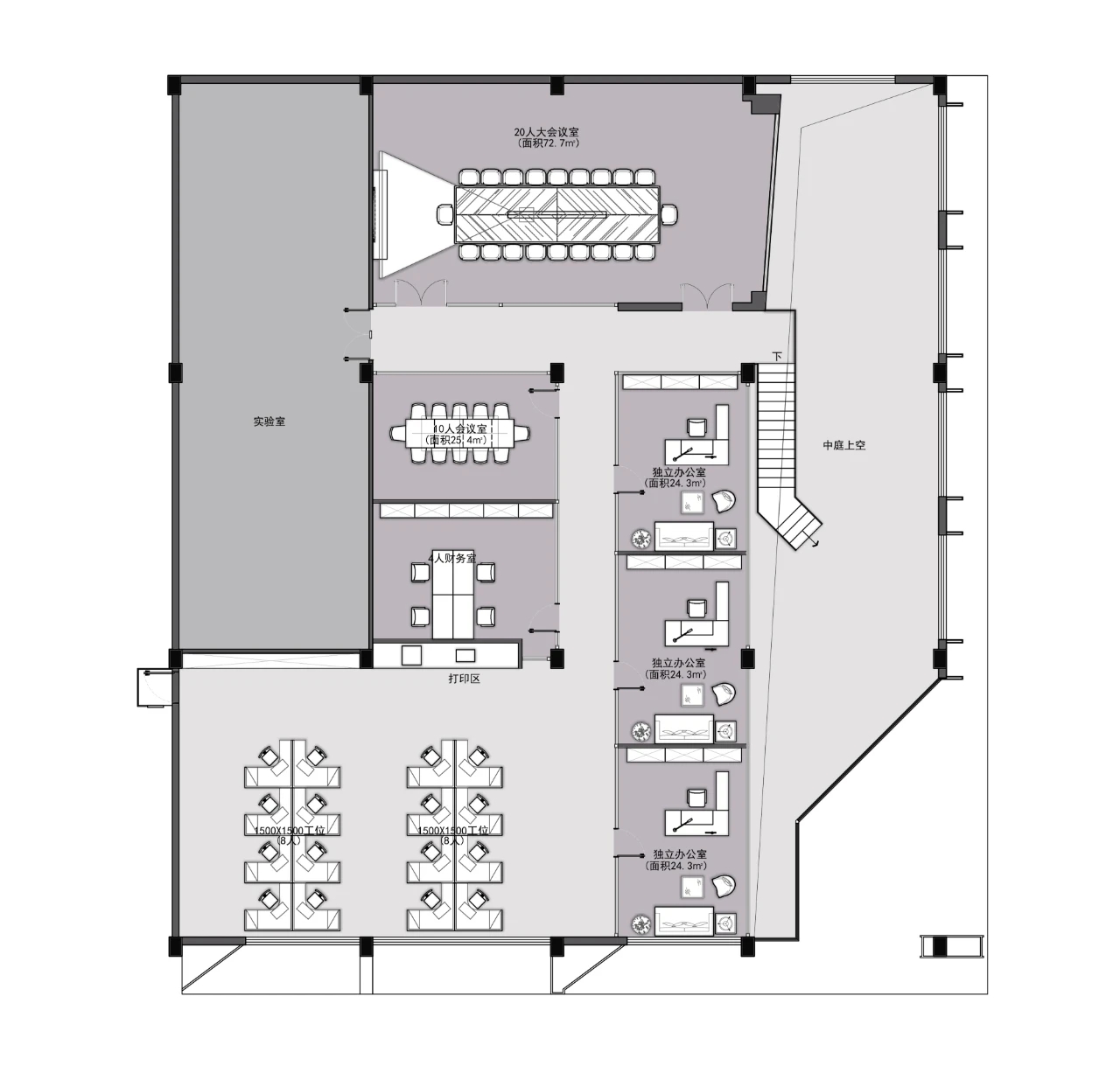
    细节 平面图 效果图        

发布话题

公开