当前位置:首页 > 户型图分析

#办公智造#

阅读 939688 | 粉丝 939688

  • 夯大力 / 设计师

    2025年10月14日 09:58:54

    + 关注
    #办公智造#

    CAD你赢了。。。 几十页的图纸看得我脑子晕        

  • Tina.baby / 设计师

    2025年10月10日 19:40:22

    + 关注
    #办公智造#

    律所空间        

  • Camille yu / 设计师

    2025年10月10日 07:08:51

    + 关注
    #办公智造#

    项目面临的挑战在于如何将其谦逊朴素的内核与实力雄厚的金融机构形象相融合。室内设计恰到好处地平衡了这些要素,并为空间注入诗意韵味。为营造温馨宜人的体验,设计师通过舒适惬意的等候区、亲生物元素与艺术陈设,为访客构筑沉浸式空间体验。最终营造出既空灵优雅、富有当代感,又不失沉稳内敛的整体氛围。
    第39层围绕保留的核心区域进行重新规划,化身为采光充沛的迎宾楼层。这里既接待贵宾与德雅尔丹斯高管,还配备行政厨房满足餐饮需求。通过设置多个娱乐空间、休闲厅、分组讨论室以及兼具会议功能的行政餐厅,这个大型金融合作社得以高效顺畅地开展运营。        

  • Camille yu / 设计师

    2025年10月10日 07:06:36

    + 关注
    #办公智造#

    40层的设计确保所有高管办公室均能直接享受自然光照,这一理念成为贯穿设计的统一原则。安静的会议区则并置于建筑外角。为顺应灵活办公趋势,该楼层设置了非固定工位,且办公室均采用多功能设计,可随时转化为会议室。沿着专属走廊深入,高管办公套间为企业核心决策的开展提供了高度私密的环境。        

  • Camille yu / 设计师

    2025年10月10日 07:05:07

    + 关注
    #办公智造#

    一条精心打造的艺术步道贯穿室内空间,用户的行走路线沿途点缀着Desjardins的艺术藏品中以及绿植景观。高效节能的LED灯光精心打亮了风格各异的艺术品,在展现丰富馆藏艺术魅力的同时,亦强化了高管楼层建筑肌理与内部通道的视觉表现。        

  • Diana / 设计师

    2025年10月10日 06:55:21

    + 关注
    #办公智造#

    溪木源办公总部:编织自然与创新的办公乌托邦 走进溪木源的办公空间,仿佛踏入了一个精心打造的自然乐园。这是一场品牌与自然共鸣的中式美学之旅,我们共同探索在现代办公空间如何融合自然、绿色与健康,回归到建立人与人良好关系以及提升办公效率和互动体验的道路上。
    品牌窗口:美学的探索
    现代的办公空间,不仅需要满足基本办公需求,通过多功能空间的设计,打造了一个开放舒适与自然共生的环境。前区不仅承载着团队协作的功能,更是品牌对话的展示窗口。在这里,每一次交流都是对品牌理念的传递与深化。
    共享中庭:自然的纽带
    独特的中庭设计实现的空间感,如同大自然的怀抱,让人瞬间感受到开阔与自由。共享的中庭空间由一个大阶梯组成,如同一条自然的纽带,连接着上下楼层,除了员工日常的通行,更是一个可以用于临时办公、讨论交流的垂直场域。
    交互办公:友好协作的关系
    开放与灵活的办公环境,让团队之间的合作更加紧密与高效。功能区之间通过灵活的隔断与布局相互连接,既保持了独立性,又实现了资源共享与功能互补。员工们可以在这里自由切换工作与休息模式,享受更加多元与丰富的办公体验。        

  • Mr.Wang / 设计师

    2025年10月10日 06:51:02

    + 关注
    #办公智造#

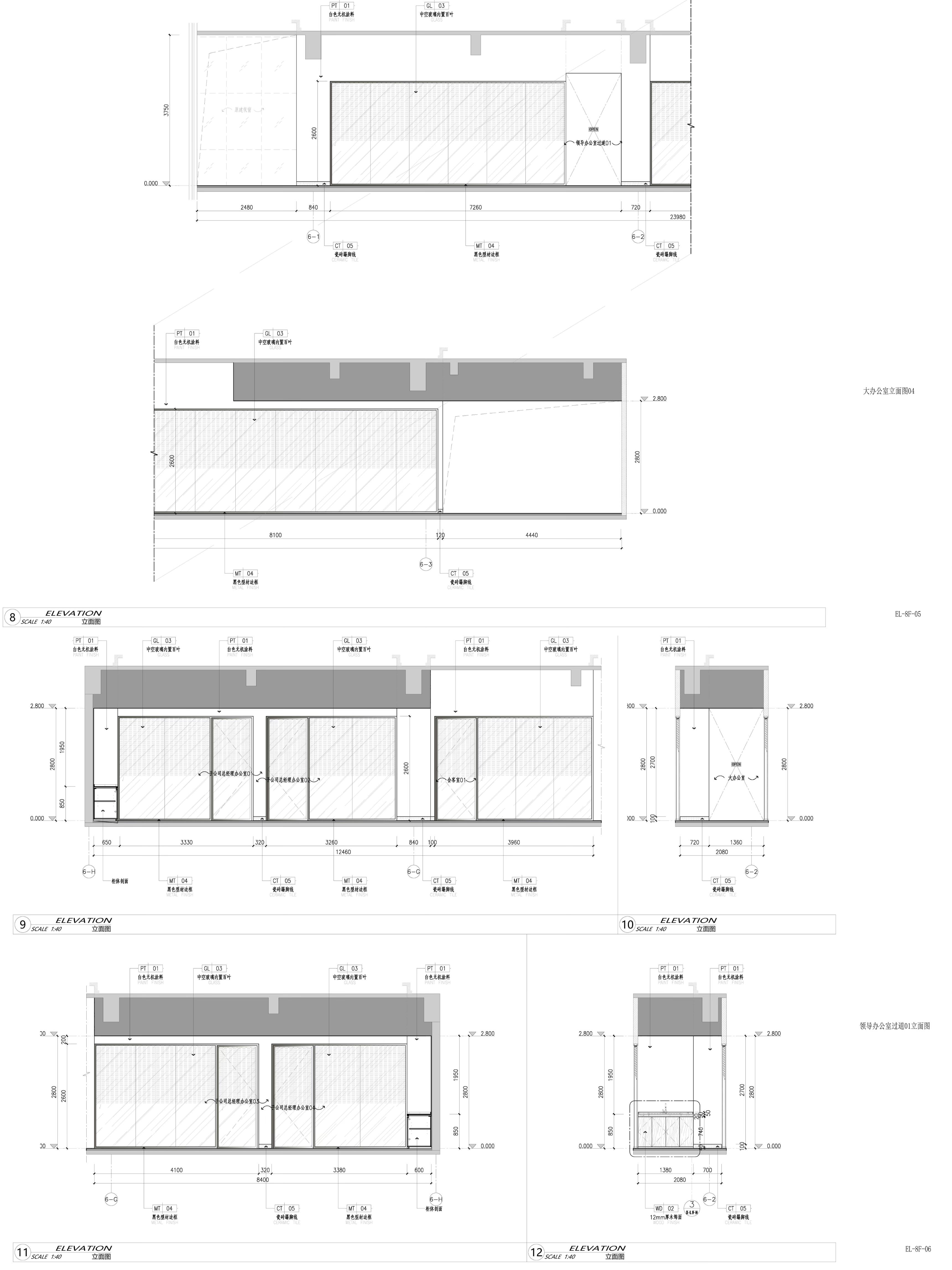
    办公空间过道        

  • Diana / 设计师

    2025年10月10日 06:48:05

    + 关注
    #办公智造#

    作为护肤品牌,溪木源传达出的品牌理念不仅仅是自然护肤,更是“自然”与“艺术”。整个门店揉和了理念和设计,在大面积的TONG MUD砼泥天花墙面中加入绿色植物元素,在这个空间里,你能真实感受到的,是她的“本真”。
    斑驳的光影照射在大面积白色墙面上,无遮挡的透明玻璃让空间力量得到释放,营造了让人安静惬意的氛围,漫步其中,就像是走进一片森林,自然的力量无法估量,但是她的魅力一直都在吸引着每一个好奇的人。        

发布话题

公开