装修案例
灵感美图
找设计
找工长
看工地
记住密码
我已阅读并同意注册协议
发直播
重复排列的方块和对称的结构线条组成了这个大空间,在这里,到来的朋友可以安静的聆听她的故事,聆听我们内心的本真。抛弃了复杂多变的设计,保留最原始的线条结构,大面积白色砼泥和层次光影变化传达出地是她的“真”和“纯”。
工地实录|沉浸式看办公室装修现场
极简设计的尽头是细节
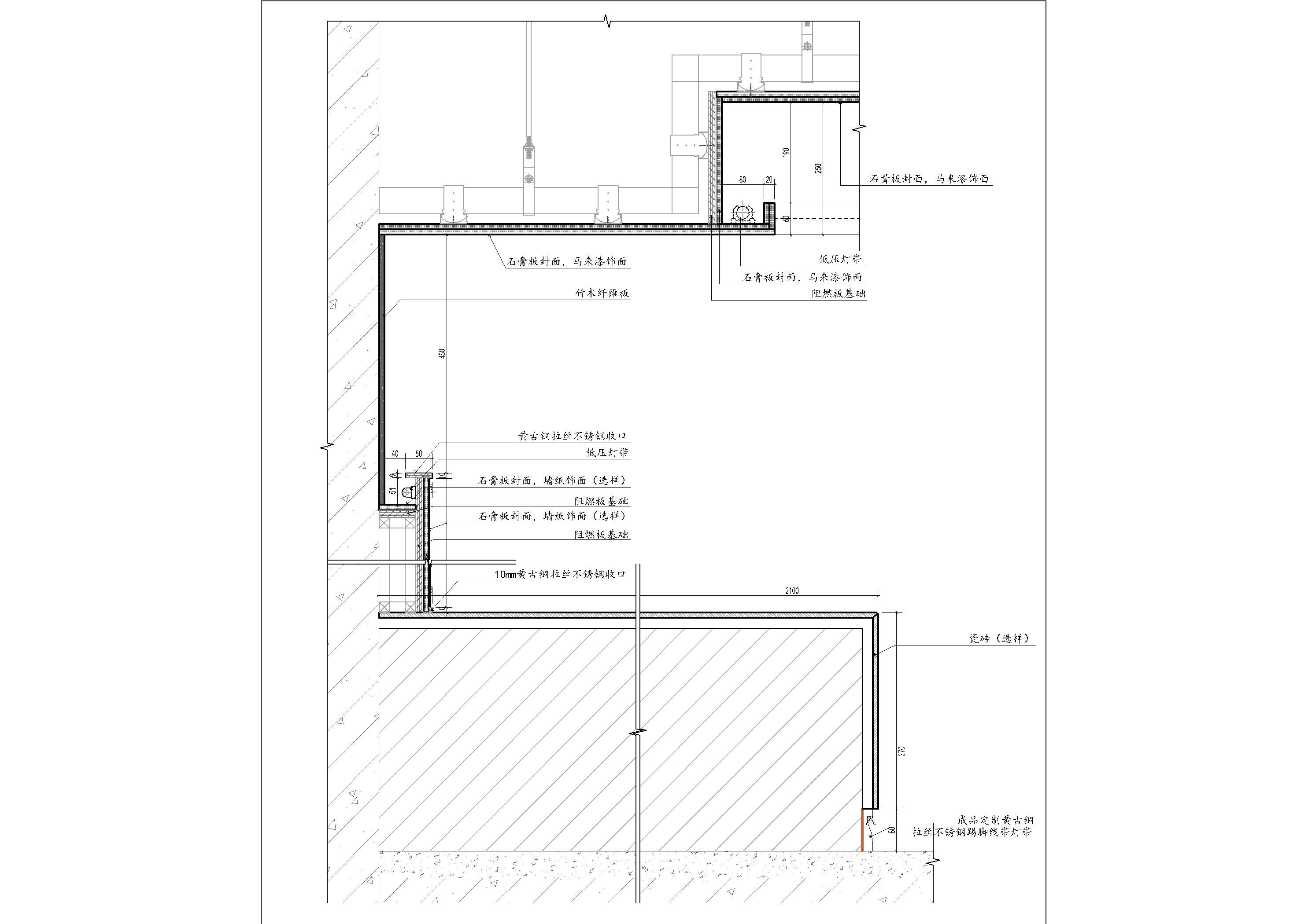
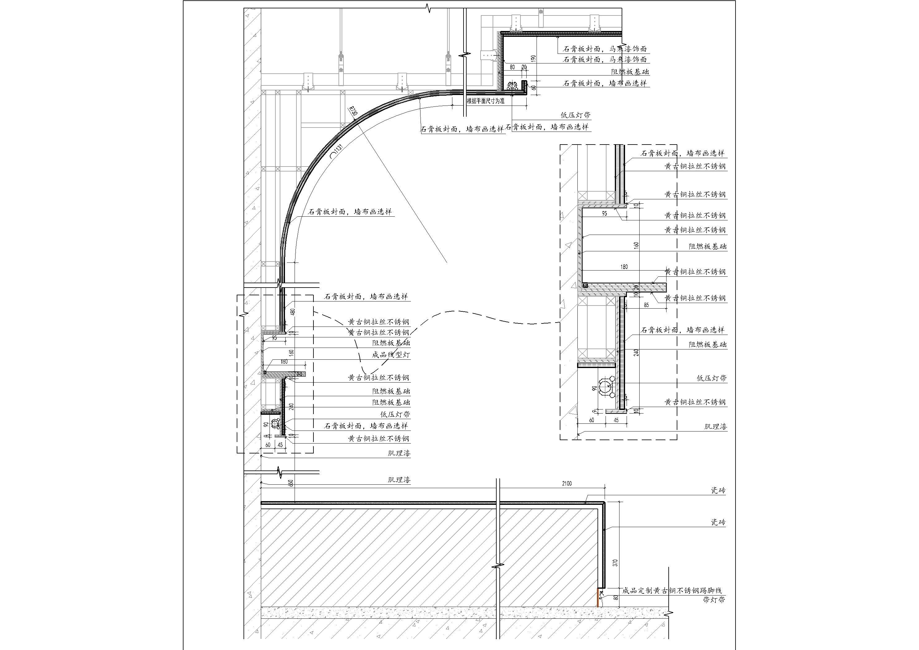
穹顶节点
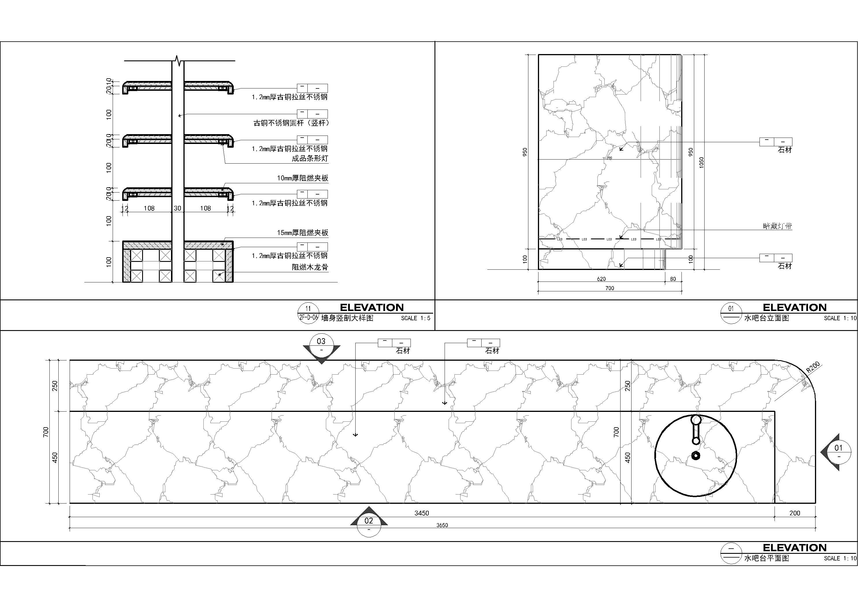
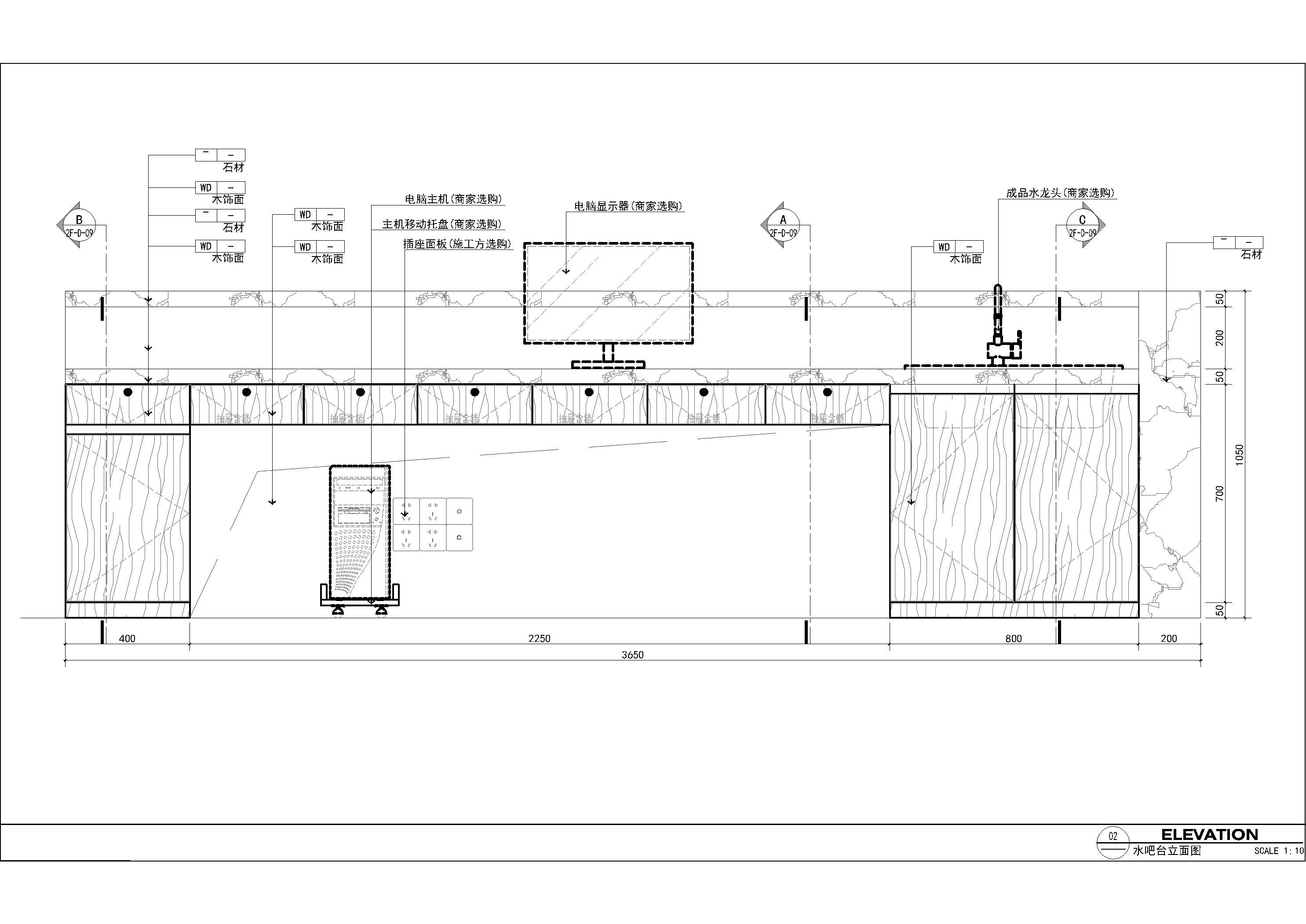
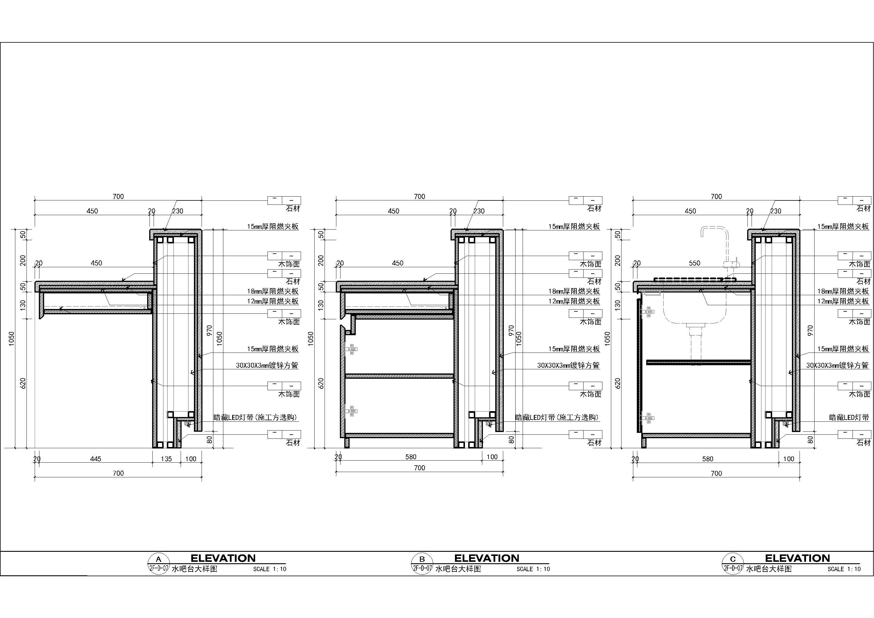
服务台节点
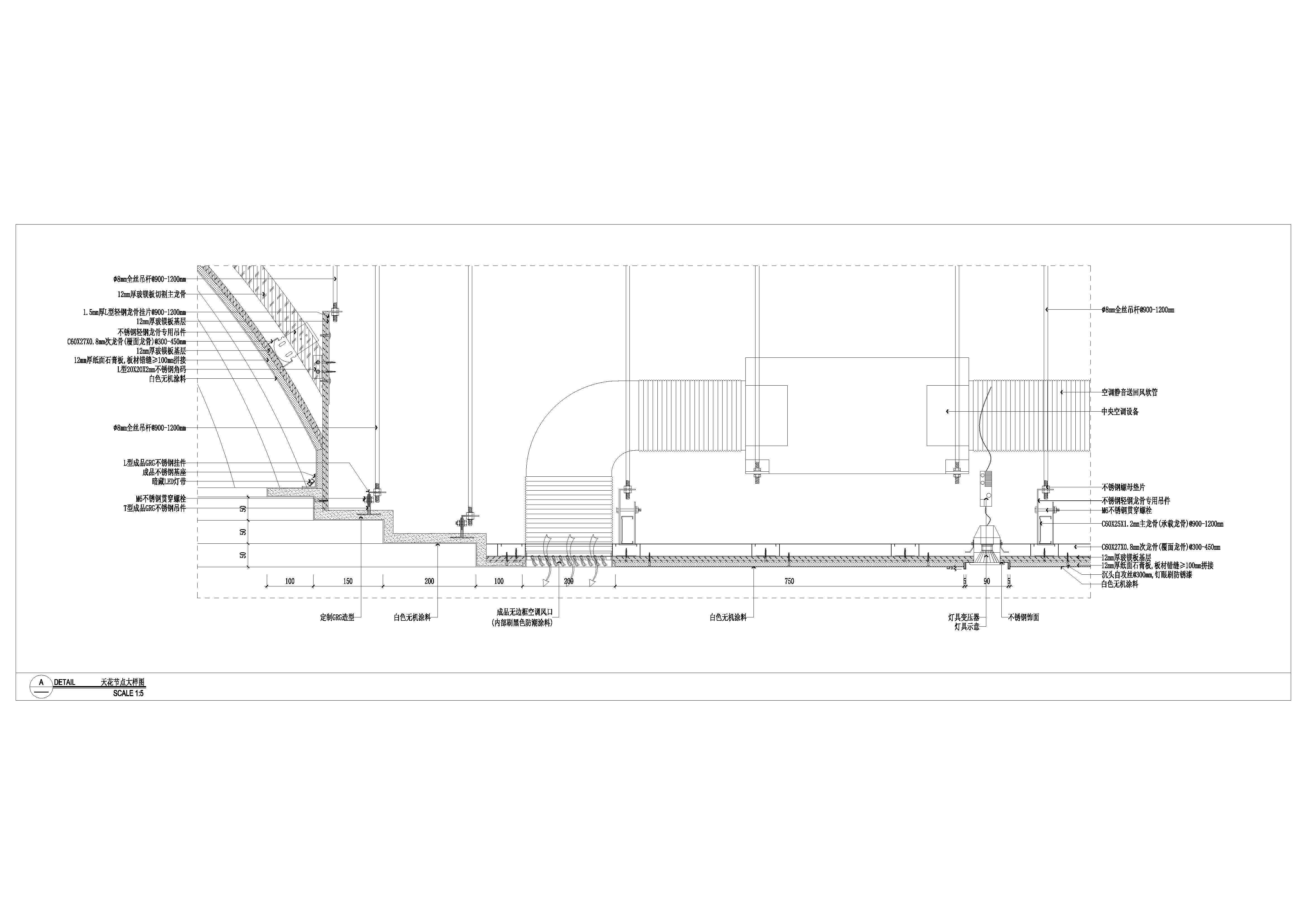
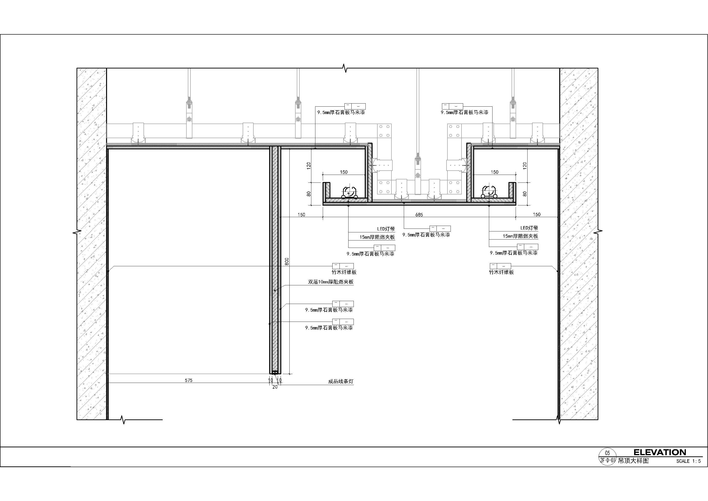
顶面节点
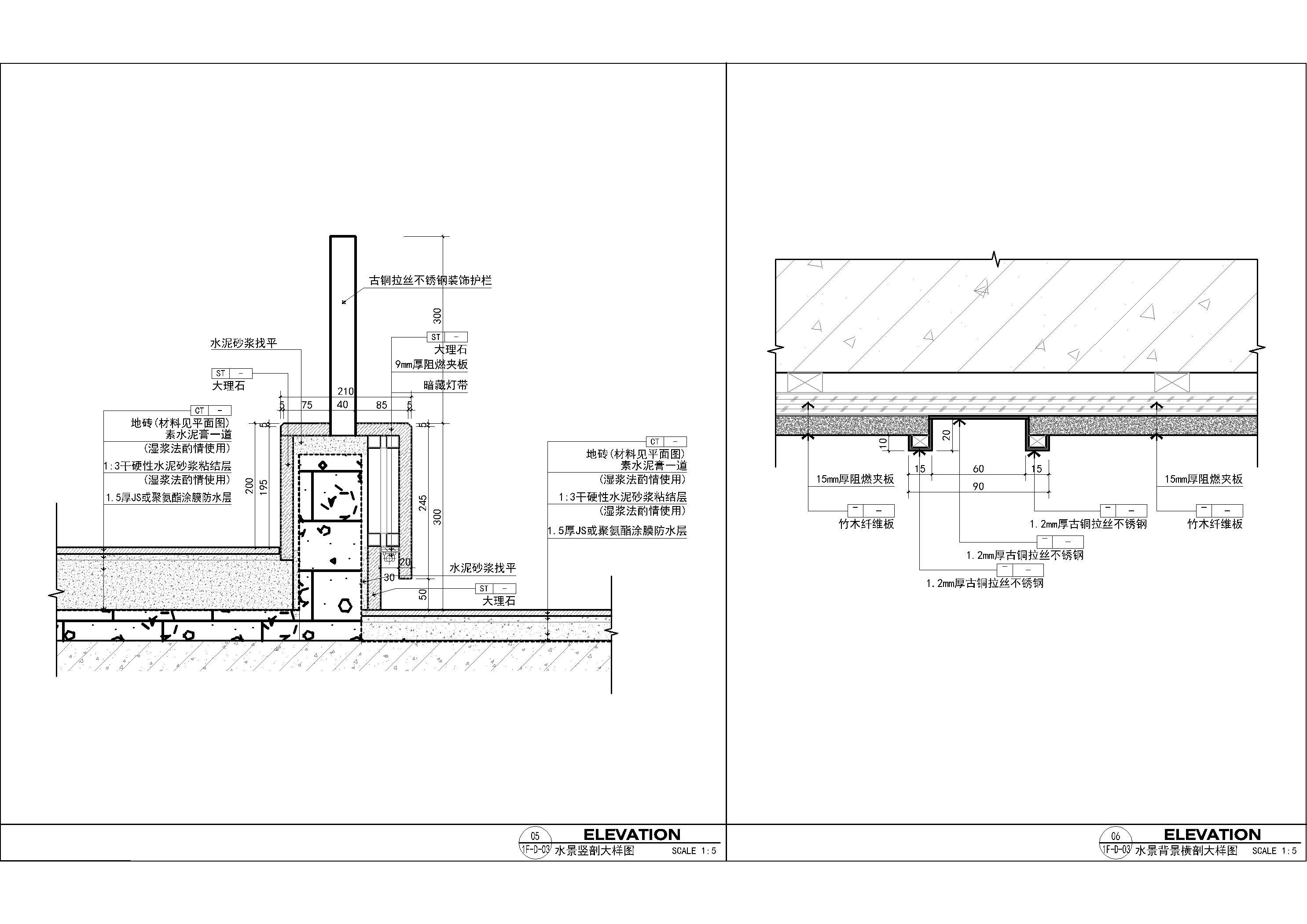
天花窗帘盒节点图
小米