当前位置:首页 > 设计圈

  • #办公智造#

    PH7 氢度七办公室(2)        


  • #办公智造#

    办公空间实景图        

  • 张小张 / 设计师

    2024-11-24 07:37


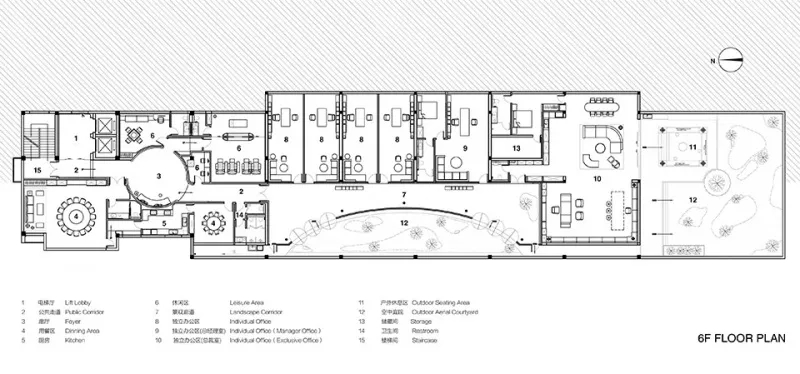
    #办公智造#

    由酒店内部电梯上至顶层,电梯厅里暖色的光感开启了整个酒店式情景办公的开始。公共空间大面积运用了普拉达绿大理石,巧妙的与古铜色哑光金属,以及暖色木质和柔和的间接照明进行组合,营造舒适,沉稳低调又不失雅致的空间氛围。从接待空间,到用餐空间,到休闲空间,再到办公区域。设计师在动线上通过开放式环形廊厅和景观廊道的公共动线,用以连接空间中不同的功能需求,并以此高效抵达不同的使用场景当中。        

  • 张小张 / 设计师

    2024-11-24 07:35


    #办公智造#

    独立办公空间融合了办公,洽谈,茶桌,陈列吧台等多重功能。空间从功能与美学两方面,诠释办公场所的格调。空间上,金属、石材、木质、皮质、布艺等丰富材质的精确运用,结合家具上不同色度的灰棕色丰富层次,强化现代与品质办公空间的感官体验。        

  • 张小张 / 设计师

    2024-11-24 07:34


    #办公智造#

    窗外微妙的光线向室内流动,微风穿过垂坠的百叶帘,让光影自由穿梭其中。细腻的光感,为空间带来更为原始美感的同时,也为办公日常增添几分松弛。在这里,空间引导ANSAN团队惬意的在各个空间中处理酒店的日常事务。        


  • #办公智造#

    行政接待厅采用蓝白相间的地毯以及米白色的沙发相呼应,整体呈现官方接待的庄严以及商务洽谈。就餐接待处以水墨画为墙面,与木色柜体一起,呈现中国传统笔墨山水,也让来访客人能够体验具有文化、创意与大方的接待环境。会议室通过顶面灯光设计区分,呈现一个多功能会议厅,实现大型会议与中小型会议相结合,空间中大量运用木纹色作为点缀,黑色金属线条作体块分区,体现国企的磅礴大气。
    过道走廊突出展示企业文化,白色墙体与灯光配合设计,提供明亮整洁的工作环境,同时打破传统走廊设计的束缚。董事长与董事长夫人办公室用黑色皮质沙发与大理石地板相结合,会议桌与茶桌兼容,追求对每一寸的品质与格调,精致不失大气。        

  • 乌拉西 / 设计师

    2024-11-23 17:25


    #办公智造#

    实业公司实景图        

  • David / 设计师

    2024-11-23 12:39


    #办公智造#

    红灯笼高高挂        

发直播

公开