当前位置:首页 > 设计圈

  • #办公智造#

    洽谈区很好的沿用整个空间弧形造型,每个拐角位置没有出现直角,带给我们一种亲近柔和感。把手的精心定制,利用爵士白大理石及铜的碰撞,很好的对话与前台,体现细节的巧妙。        

  • 刘君雅 / 设计师

    2024-11-27 19:42


    #办公智造#

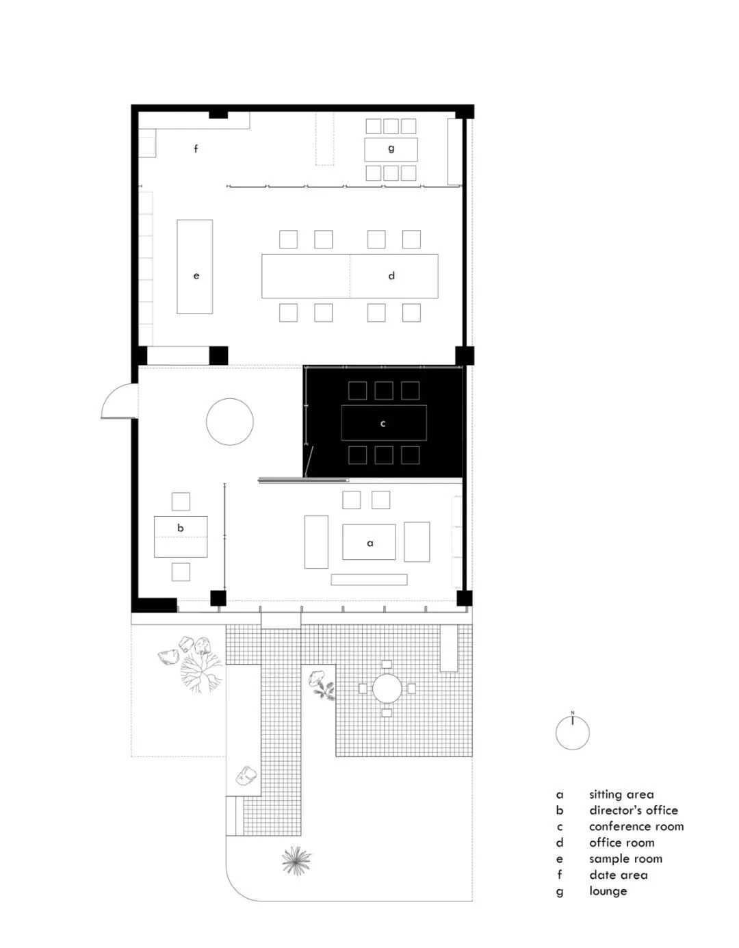
    庭院向外敞开,植物搭配景观石散落其间,形成柔性边界(Flexible Boundaries),引入自然语境,道路界面选用架空铺设的金属格栅板,以降低对地景的干扰。平面采用开放式空间布局,会客室和主理人办公室设置于南侧,大片落地玻璃窗,框入流转的窗外视野。地面高差将空间前后区隔,结合吊顶,压低纵向尺度,消解“盒子”体块的单调格局。白色花灯垂挂而下,老式柚木茶几、皮革沙发、再生海绵的色调纹理——平衡了建筑结构的几何线条,带来折衷意趣。由Unknown团队独立设计的多功能杂志墙,安装于会客区一侧,玻璃层板和金属搁架的数量及高度均可根据需要调整。
    隔墙以清水混凝土板装挂,内置一扇树瘤木口袋移门,拉开可作为隔断,围合多个空间,收起时引入自然天光,形成通透视野。“Unknown design”发光字样的背后,将是工作室的灵感创作地。办公区遵循去繁从简原则,我们铲除梁架天花及部分墙面抹灰,留下粗糙的刮擦痕迹,管线沿梁柱之间交错搭接,富有旧工业美感的原始框架,化身承载工作室日常的空间容器。长达6米的不锈钢长桌,可容纳多人共享办公,与银灰冷调的金属灯具搭配得宜。工字钢骨架搭建起后区隔断,表面以乱纹不锈钢拼接软木饰面,用于张贴展示设计图纸。整面开放式USM模块立架与之齐平,材料小样有序摆放其间,呼应场地的工业特质。        

  • 刘君雅 / 设计师

    2024-11-27 19:38


    #办公智造#

    会议室延续了空间的质朴统一性及设计思路——“去掉层层不必要的元素,只剩下一个纯粹而简洁的构造”,一侧采用玻璃隔断,与公区保持视线共通。        

  • 小麦庆 / 设计师

    2024-11-27 15:30


    #办公智造#

    律所办公空间(1)        

  • 小麦庆 / 设计师

    2024-11-27 15:28


    #办公智造#

    律所办公空间(2)        

  • 敏颜 / 设计师

    2024-11-27 14:12


    #办公智造#

    小面积办公空间        

  • 魏馨琪 / 设计师

    2024-11-27 14:10


    #办公智造#

    办公空间设计        


  • #易筑展陈#

    展厅空间        

发直播

公开