当前位置:首页 > 设计圈
  • 乌拉西 / 设计师

    2024-12-05 06:43


    #办公智造#

    办公空间效果图        

  • 王丹丹 / 设计师

    2024-12-05 06:41


    #办公智造#

    木纹办公空间赏析(1)        

  • 王丹丹 / 设计师

    2024-12-05 06:40


    #办公智造#

    木纹办公空间赏析(2)        


  • #标准施工#

    旋转楼梯施工图 | 优雅弧线背后的精密构建
    每一级台阶,每一处弧度,都是精心计算与设计的结晶。从精准的尺寸标注到材料的选用规划,这张施工图就像是旋转楼梯的“出生证明”,决定了它将以怎样的姿态在空间中绽放魅力。看那流畅的线条,仿佛在纸上就开始了它的优雅“舞动”。施工时,工匠们将依照此图,把钢筋、木材或其他材料巧妙组合,让旋转楼梯不仅是连接上下的通道,更是空间里的艺术焦点。无论是简约现代风,还是古典奢华风,旋转楼梯施工图都为打造独特家居风格奠定坚实基础。它承载着安全与美观的双重使命,见证着一个家的品味与格调逐步提升。        

  • 敏颜 / 设计师

    2024-12-05 06:25


    #办公智造#

    设计师提取企业LOGO色,经过多次测试,最终调和出与企业属性十分吻合的“美达红”,并大面积用于公司的外墙。“美达红”与深灰的色调组成颇具张力的几何形态,使得整个办公空间极富个性和张力。设计师将门头、门框连体,通过起承转合构建出多个功能区,接待区、茶水间、文印区并存于此,务实整洁。   通透的水晶墙隔断有效连接了前厅与办公区,暖色直射灯光与“美达红”墙面遥相呼应。在透明的介质里,在光线的作用下,在人的斜线位移中,叠印幻化出晶莹斑斓的景象。        

  • 敏颜 / 设计师

    2024-12-05 06:23


    #办公智造#

    开放办公区采用原始木色与纯白色调,配以绿植,在整体暖色调的背景下更显其利落整洁。常规会议室设计之外,考虑到客户会在会务过程中有大量的服饰样品展示需求,设计师利用一侧墙体辅助色彩与灯光做成橱窗效果,形成功能融合。        

  • 魏馨琪 / 设计师

    2024-12-05 06:19


    #办公智造#

    本项目以原木为主要材质,当温暖舒适的原木色彩遇见克制冷静的轻工业风,一冷一暖,碰撞出独特的简约高级感。
    入眼即是欧式白色烤漆Logo背景墙,顶部洁白的灯膜与黑色格栅吊顶结合,令整个空间延伸呼应,营造灵动敞亮的视觉体验。前台造型干净利落,线条感十足。完美地诠释了捷成企业作为一家百年企业,沉稳低调中带着暖意的品牌形象。木格栅吊顶,流畅而精致的线条贯穿休闲区;设计师打造了一个会议桌兼餐桌的茶吧区域,搭配同色系木地板。极具质感的空间氛围,加上错落有致的灯带,仿佛有种置身于家中的温馨惬意感。
    当空间的边界逐渐趋于模糊,一处具备理性逻辑、可支持不同办公模式的办公空间映入眼帘。固定办公空间与灵活办公空间结合,除了满足日常工作所需,亦践行捷成企业精神,促进合作、创新和交流,并最大化利用灵活的办公空间。
    捷成向来重视员工体验感,人性化设计,让办公室时刻充满活力。新办公室增加了人脸识别门禁系统、全屋智能化配置。设置了多合一充电线以满足“随身快充”需求,各工位均设有符合人体工学的单屏显示器支撑臂与电动升降办公桌、办公椅,避免久坐办公所带来的劳损。        

  • 张小葵 / 设计师

    2024-12-05 06:16


    #办公智造#

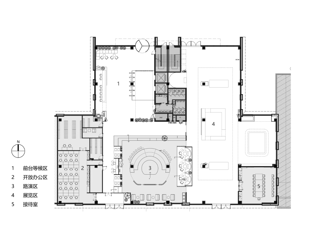
    办公楼一层西侧主要功能为大堂、展示中心、售后服务区、茶水区、多功能服务区。大堂设置等候区一站式服务前台,便于客户接待以及入职员工办理各项事宜;格栅与木板,虚实转换,空间形态转折、融合,丰富了空间,并使各体块更好的融合。多功能服务区以路演区为中心,兼具洽谈、面试、会议等功能。地面抬高、虚实对比、体块穿插,丰富了空间层次,使空间转换同功能区域错落融合。
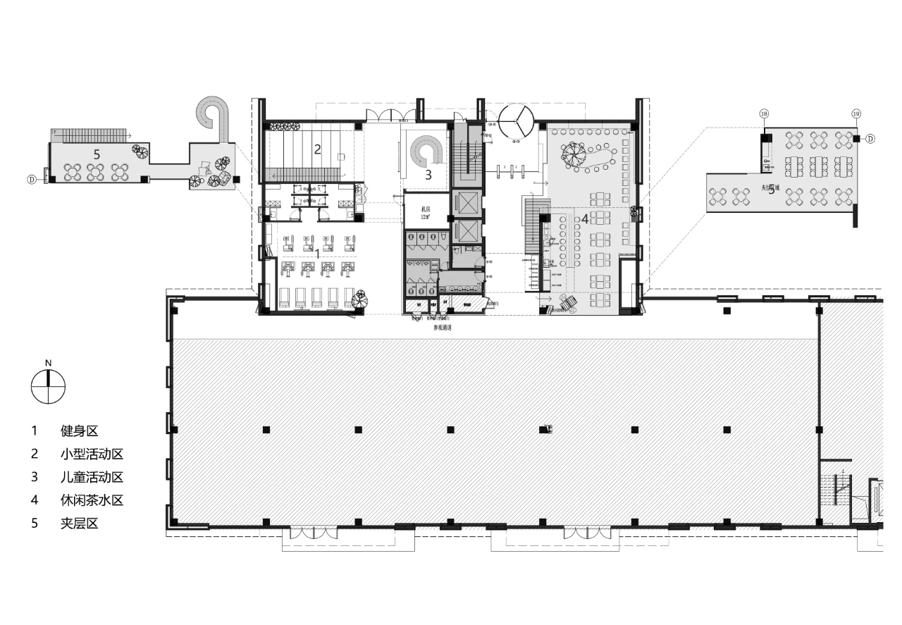
    展厅主要是转转对外形象展示的窗口,涵盖公司概况,公司历程,公司产品等。多功能服务区的卡座木质盒子延伸到展厅,水平交叉的空间关系极大提升了空间的戏剧性;内部会议室用于客户洽谈、业务交流。前厅空间主要采用白色、木色搭配,局部橙色调节整个空间氛围;员工通过闸机进入内部,左侧茶水休闲区是主要交流和餐饮场所;楼梯可以到夹层休闲区,增加空间层次;通道向后可参观转转的立式仓储及自动生产线。室内大台阶靠窗设置,一侧设置通往夹层的楼梯,另一侧加入绿植元素。‍‍‍‍‍‍‍‍‍‍‍‍‍‍‍‍员工可以在此处办公、休息、娱乐、交流。儿童活动区中的橙色滑梯,将一层与夹层连接,墙面的书架及涂鸦令空间充满轻盈灵动的气息。        

发直播

公开