当前位置:首页 > 设计圈

  • #办公智造#

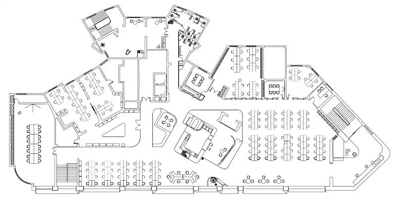
    转头步入办公场地,YOUNG团队将主通道移至北面,在结构允许范围内,横向拉伸窗口,用超大玻璃封窗取代常规尺寸的型材窗,抬高窗台至最适合入座的高度。每个窗口既是人与景互动的场所,亦是人与人沟通的天地。以建筑内部结构为基础,YOUNG将公共办公区放置于相对规整的区域。南面以柱分隔,根据部门人数划分为若干相对独立的办公间或小型会议室。        


  • #办公智造#

    中部区域因承重结构复杂,YOUNG团队将其整合为复合功能的中央小岛,内部依墙划分为水吧,电话间及小型会议室等空间,为东西两边的工作人员提供便利。由于日常产品宣发过程中,需要在不同场景下对产品进行拍摄,老办公场地仅能满足日常办公需求。因此在新办公场地的布局中,YOUNG团队在规划了若干封闭的摄影棚外,预留了相对开放的区域,方便灵活搭建不同场景,为拍摄提供便利。而在一些通道也是使用了不同于办公区的材料,构筑更多样的拍摄空间。        


  • #易筑展陈#

    企业展厅(1)        


  • #易筑展陈#

    企业展厅(2)        

  • 木子李 / 设计师

    2024-12-16 21:28


    #办公智造#

    木纹与白(1)        

  • 木子李 / 设计师

    2024-12-16 21:26


    #办公智造#

    木纹与白(2)        

  • 小筑 / 设计师

    2024-12-16 21:23


    #标准施工#

    大理石表面处理工艺        

  • 小筑 / 设计师

    2024-12-16 21:21


    #标准施工#

    大理石小知识        

发直播

公开