当前位置:首页 > 设计圈
  • 边洪镇 / 监理

    2024-12-21 09:12


    #办公智造#

    赶在元旦前交付        


  • #易筑展陈#

    八局展厅        


  • #办公智造#

    临摹模版—功能分区泡泡图(附详细绘图步骤)
    通过空间与空间的划分,让前期设计想法更加清晰明确,便于日后的设计制作
    步骤一:将空间的几个体块进行划分,根据空间功能的大小以及位置简单在图纸上表示;
    步骤二:确定好位置和体块大小后进行空间动线和箭头的指引;
    步骤三:进行空间规划内容的标注,可包含进出口的位置;
    步骤四:附上标题文字点缀,可附配色表;        


  • #办公智造#

    打破常规,以弧形去布局这个空间,办公室的趣味性爆棚        


  • #办公智造#

    空间设计泡泡图,是设计行业内最常听到的词,一般用它来划分格局配置;
    无论什么类型的空间,拿到空间平面的那一刻,设计的第一步就是规划空间功能分区,泡泡图就是设计师的“脑图”。
    首先,先在整体大空间中画出两个大的泡泡,先区分出最大的两个功能区,再从大的泡泡里分出小的泡泡,更细化每个分区。
    通过这样的设计过程,业主也可以参与进来提出需求,可以达成双方最合适的空间规划。
    我这边接到任何设计需求,最初都会给业主提供一些概念参考图和空间泡泡图,让业主能在其中对自己的“房子”有一定的概念和想像,大方向能达到统一,这样在后续的深化设计中,可以避免很多沟通和理解的误差。        

  • 饶阳 / 设计师

    2024-12-20 20:51


    #办公智造#

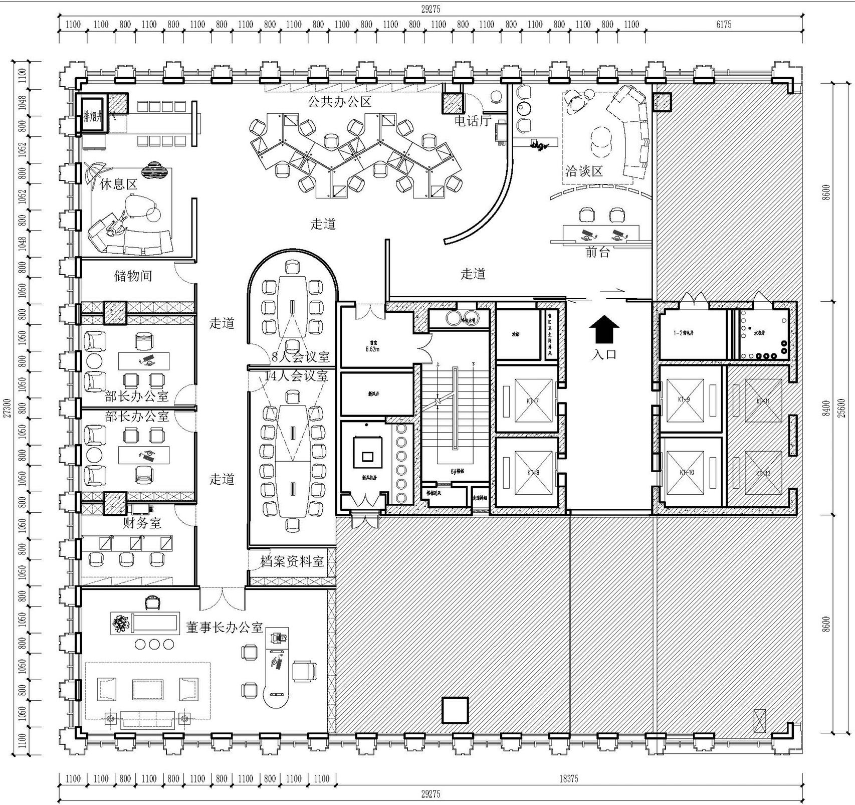
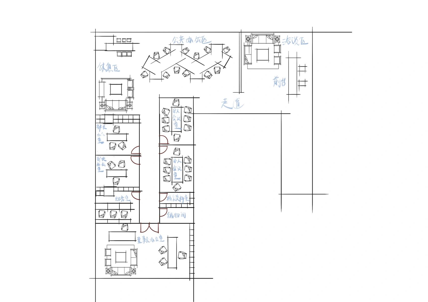
    案例展示(1)        

  • 饶阳 / 设计师

    2024-12-20 20:50


    #办公智造#

    案例展示(2)        

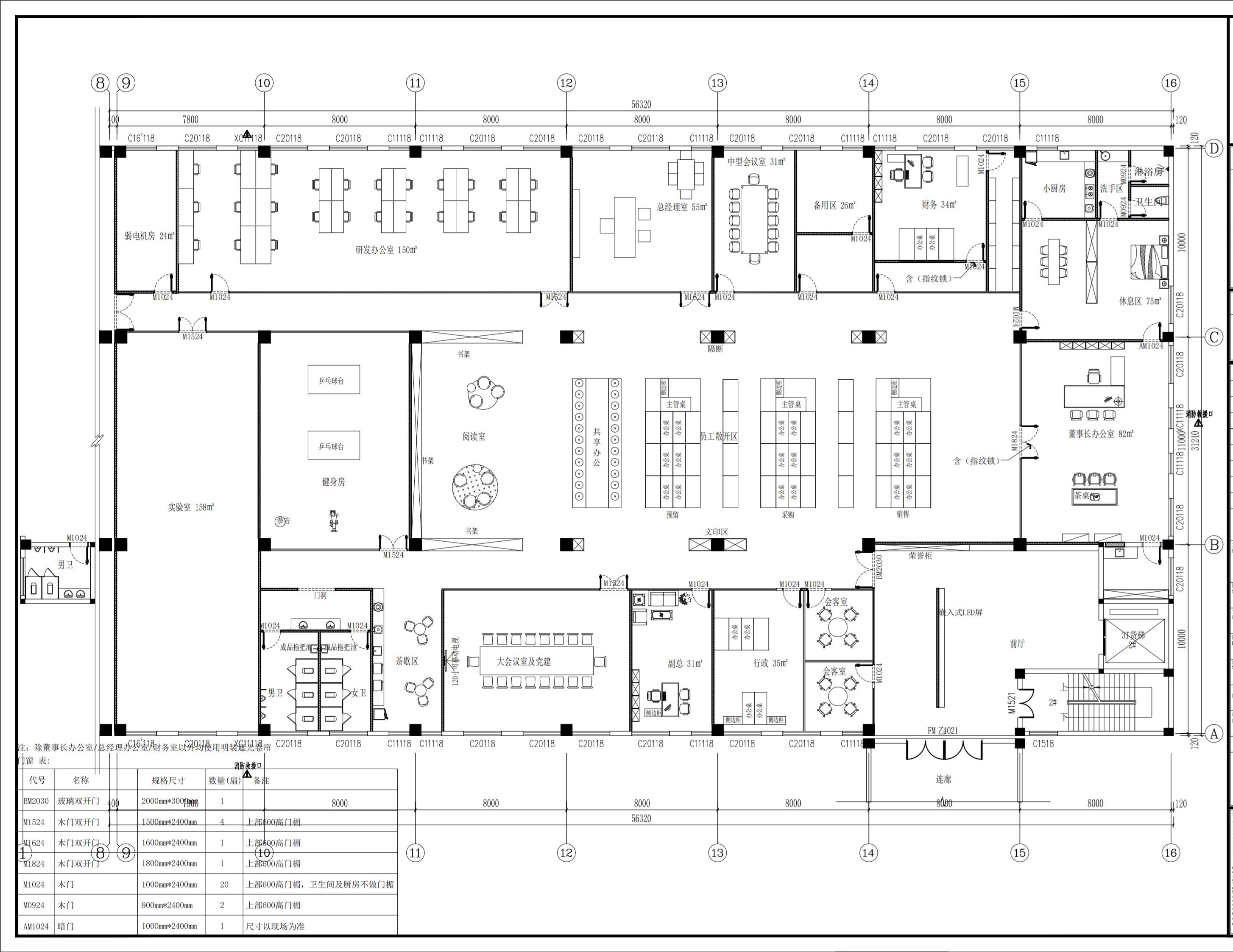
  • 毛均峰 / 设计师

    2024-12-20 20:14


    #办公智造#

    拓福科技办公室        

发直播

公开