当前位置:首页 > 设计圈
  • 魏馨琪 / 设计师

    2024-12-28 20:49


    #办公智造#

    “大”“者”“上善若水”;“匠”者工匠之精神。接待前厅放置的玻璃钢大型蚂蚁艺术装置,象征着团结向上的精神和勤劳忠实的品质,小力量成就大事件,为我们带来一个更高效、归心的办公场所。洽谈区是一个稍显严肃的商务空间。设计师用利落线条创造立体感,黑色大气的皮质沙发和浅灰色花纹的单人椅相结合,显得大气沉稳,红色内饰的柜体突显出别具一格,窗外的景湖景色和室内的造景相呼应,在传统色调上赋予现代空间的活力。        

  • 魏馨琪 / 设计师

    2024-12-28 20:45


    #办公智造#

    多元化和去风格化带来更自在的深度和广度。半透明的玻璃与大理石搭配,用光线让玻璃表面的云雾细节呈现,给予普通材质生命力,打破呆板,渲染了空间气韵,构建出一副闲适下午茶的惬意绘卷。大面积落地玻璃使得空间视觉最大化向外延伸,用光影、明暗的更替去表达空间的纯粹,用最简单的形式、元素、色彩去塑造空间的气质,突出了光影、外景及人与空间的关系。米白色主调的休闲沙发和饱和度低的橙色坐塌相搭配,使得整个休闲空间更加放松,在观赏窗外的美景时,心也能够静下来。缥缈又具体的艺术品在天花上翻转,充满灵动与活力,赋予其空间层次感。        

  • 魏馨琪 / 设计师

    2024-12-28 20:40


    #办公智造#

    方正序列的空间感带来庄重的气息,一盏灵动的吊灯,简单朴素之外内藏底蕴。无须匆忙奔赴山水,山水便已在眼前。在这个空间中无论是洽谈要事还是和友人品茗之时,都能看到窗外的景色,自然在这里将心理上的芜杂净化。        

  • 乌拉西 / 设计师

    2024-12-28 18:37


    #办公智造#

    PAKSEN OFFICE 升级改造        


  • #办公智造#

    办公室实景图(1)        


  • #办公智造#

    办公室实景图(2)        

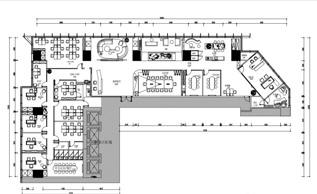
  • 杜飞 / 设计师

    2024-12-28 15:27


    #办公智造#

    平面布置图        

  • 猪猪侠 / 设计师

    2024-12-28 15:16


    #办公智造#

    办公空间设计赏析        

发直播

公开