当前位置:首页 > 设计圈
  • 乌拉西 / 设计师

    2025-02-12 20:43


    #办公智造#

    办公空间设计        


  • #办公智造#

    KUMOKUMO总部办公室
    在解决层高问题上采用了三种方案,分别为:1、大厅天花采用镜面处理,结合墙面局部镜面反射,营造出盗梦感接待空间;2、二层选择裸顶,对功能性设备走线及寻找结构关系作为设计要点,如会议的照明设计采用多折弯射灯与结构钢梁融为一体;3、三层顶面则是在拆除老旧后给设计最惊喜的地方,原始杨松结构内屋面坡顶及金属人字梁渗透着1922年至今的厚重历史气息,这股气息成为了三层设计的衍生点,选择部分裸露坡屋顶后,在空间中还寻找了6个点位,设计了6根半圆柱来支撑人字梁,形成了一股能牢牢托住这个气息的力量。        


  • #办公智造#

    KUMOKUMO总部办公室        


  • #办公智造#

    KUMOKUMO总部办公室        

  • 王丹丹 / 设计师

    2025-02-12 20:25


    #办公智造#

    融入KUMO KUMO品牌元素、价值观,围绕创始人追求与自然和谐的对话,让工作融入自然中,采用清水混凝土的视觉表达,回应创始人心中的感性展开设计,KUMO KUMO橙成为重点沉淀设计,theRoll‘ING蓝作为集团年轻蓝画龙点睛,塑造具有强烈品牌识别度的办公氛围,增强员工归属感与认同感。
    前台接待区:以简洁流畅的线条和富有质感的材料打造,搭配品牌标识墙,营造专业、大气的第一印象。接待台选用微水泥,与整体风格相呼应,旁边设置阶梯式等候沙发与LED形象屏,同时融入1:1门店实体为访客提供专业贴心服务。
    办公区:开放式办公区配备围合式卡座、独立电话会议间,满足员工不同工作状态需求,提升工作舒适度。办公桌椅选用符合人体工程学设计的产品,减少员工疲劳。        

  • 王丹丹 / 设计师

    2025-02-12 20:23


    #办公智造#

    保证会议的私密性与安静环境,洽谈区设置在靠窗位置,营造轻松、舒适的交流氛围。配备可调节高度的会议桌,满足员工不同状态的会议需求,提升工作舒适度。        

  • 王丹丹 / 设计师

    2025-02-12 20:22


    #办公智造#

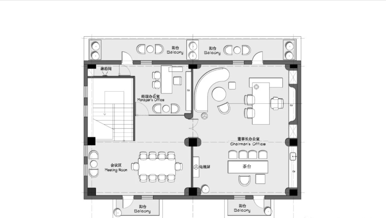
    不同于传统办公空间,由超长茶台与升降办公桌融为一体的功能设计简洁明了,空间注重收纳与开放展示的平衡设计,接待兼董事风暴区沿用弧形沙发围合式布置,柱体柜融入壁炉设计成为视觉核心,更象征着董事们拧成一股火的力量,不断砥砺前行。        

  • 王丹丹 / 设计师

    2025-02-12 20:20


    #办公智造#

    融入人文哲学,通过结合空间视觉,在不同的功能区甄选哲理名言、名词作为传播途径,推动培养员工形成一致的人文价值观,提升工作品质和幸福感。        

发直播

公开