当前位置:首页 > 设计圈
  • 猪猪侠 / 设计师

    2025-02-28 20:45


    #办公智造#

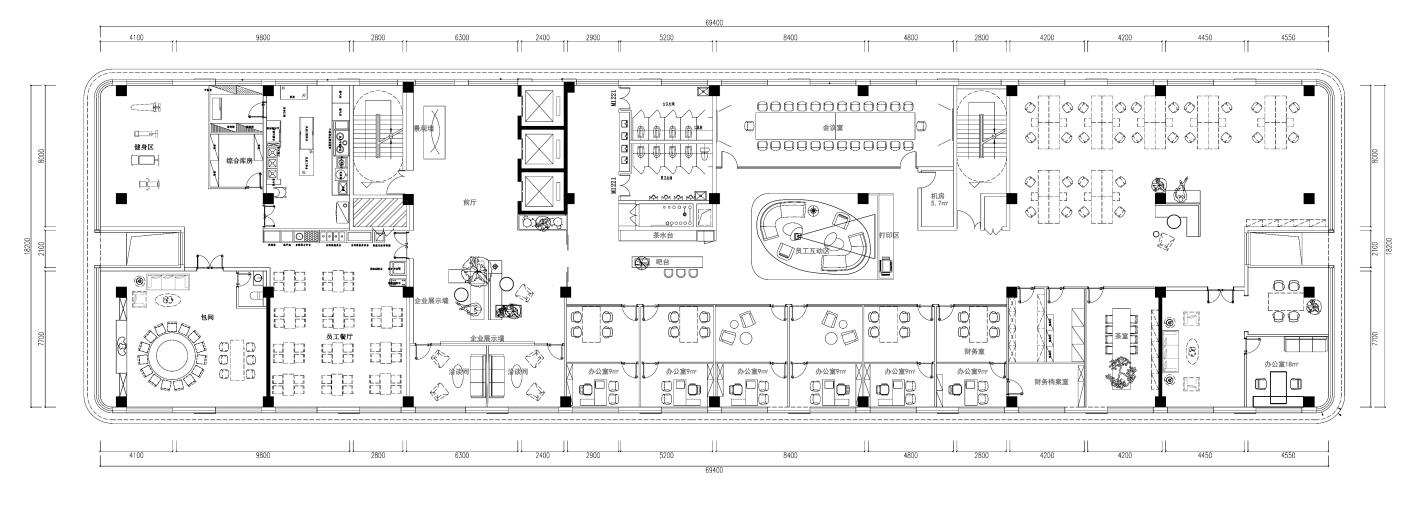
    金融公司的接待区是客户的第一印象区,也是展示企业形象的重要窗口。在这里,设计师大胆运用金色作为主色调,搭配上红色的装饰和大理石材质,营造出一种喜乐多金的氛围。利用公司的logo作为空间设计的起点,客户一走进接待区,就能感受到金融公司的专业与实力,仿佛置身于一个“财富的殿堂”洽谈室是金融公司决策和交流的重要场所,红色在这里被赋予了更多的意义。红色的吊灯、红色的窗帘、红色的会议桌,这些红色元素不仅让会议室充满了活力,还象征着金融行业的激情与创新。不仅是一个会议空间,更是一个充满能量的“金融智库”。

  • 猪猪侠 / 设计师

    2025-02-28 20:43


    #办公智造#

    经理室满足个性化的展示需求的同时,还结合空间关系采用了定制了独特的适应性办公桌,并与顶上的吊灯形成了呼应关系,形式与功能的完美结合。休息区域,设计师巧妙地将红色融入空间设计,从接待区的红色背景墙,到会议室的红色吊灯,再到办公区的红色装饰线条,红色元素贯穿始终。这种设计不仅让整个空间充满了高级感,更形成了空间的场域;开放办公区,因为层高的问题,设计师局部做了裸顶的形式,空调的出风做了侧面出风的处理,避免对着头部吹风;办公桌选择了红色桌腿的款式,与顶部的金属网做了呼应,用色彩与走廊做了空间划分;

  • 毛均峰 / 设计师

    2025-02-28 13:26


    #办公智造#

    圆在办公空间设计中的运用        

  • 小筑 / 设计师

    2025-02-28 11:41


    #标准施工#

    柜机空调尺寸        


  • #办公智造#

    办公空间设计        

  • 饶阳 / 设计师

    2025-02-28 07:06


    #办公智造#

    明月镜片办公空间(1)        

  • 饶阳 / 设计师

    2025-02-28 07:05


    #办公智造#

    明月镜片办公空间(2)        

  • 喀秋莎 / 设计师

    2025-02-28 07:03


    #办公智造#

    文化墙        

发直播

公开