装修案例
灵感美图
找设计
找工长
看工地
记住密码
我已阅读并同意注册协议
发直播
需解决需求 :1.前台背景 、柜子保留 、天花更换(增加照明)、前台更换 企业logo重新制作• 企业的前台接待处,墙面采用了造型进行平衡左右二侧的关系 、天花拆除重新吊顶 提升空间统一性 增加天花灯光趣味性 、更换前台使之在空间没有那么笨重感,原有的木纹墙板 进行设计企业文化墙进行装饰。
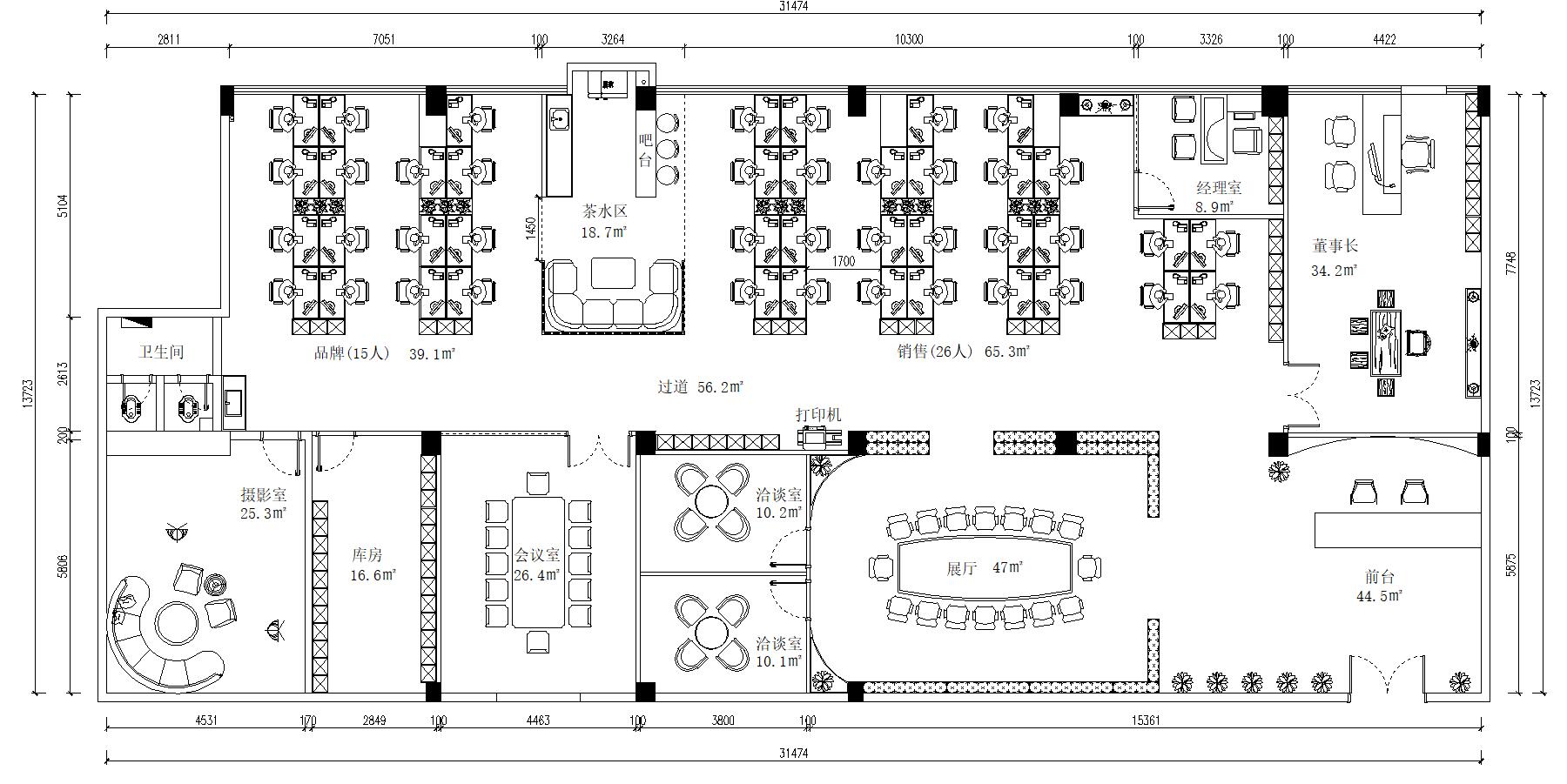
办公空间设计
这个世界上根本就没有正确的选择,我们只不过是要通过努力奋斗,使当初的选择变得正确。—— 村上春树
办公空间设计落地
律所办公空间
艾禾办公空间