当前位置:首页 > 设计圈
  • 陈澄 / 设计师

    2022-08-23 17:10


    #办公智造#

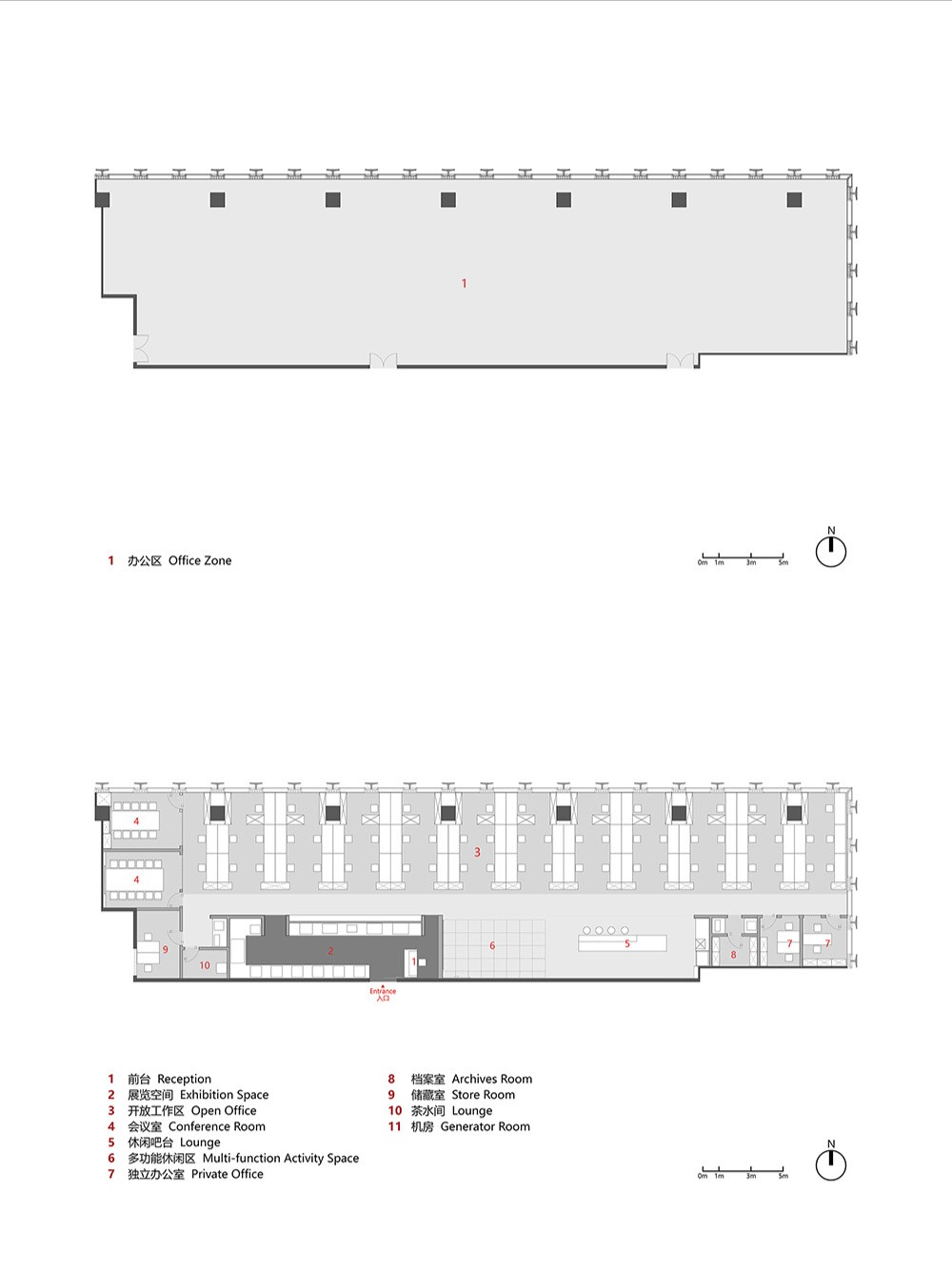
    穿过黑色盒子,人们即可到达开放办公空间,通过明暗与尺度对比,开放办公区域在视觉上更宽敞与明亮。写字楼原始设计与建造工艺精美,设计将连续的L型幕墙立面全部给开放办公,同时将服务空间压缩为内侧长条,优化开放办公区域的平面比例,使每个工位都沐浴在自然光线中。        

    毛均峰

  • 小筑 / 设计师

    2022-08-23 16:33


    #标准施工#

     一体洗衣柜细节        

  • 蓦兰 / 设计师

    2022-08-23 16:27


    #醉美庭院#

    庭院溪流造景        

    筑先生

  • 刘静 / 设计师

    2022-08-23 15:21


    #办公智造#

    点石无界(1)        

  • 刘静 / 设计师

    2022-08-23 15:19


    #办公智造#

    点石无界(2)        


  • #标准施工#

    石材施工工艺        

    筑先生

  • Mr.Wang / 设计师

    2022-08-23 12:04


    #商业空间#

     创业为了自由,真正开始创业的时候就被锁住在这一点一线一面了…        

  • 丽旻 / 设计师

    2022-08-23 11:43


    #办公智造#

    国外办公室赏析        

发直播

公开