当前位置:首页 > 设计圈
  • 敏颜 / 设计师

    2022-10-22 08:46


    #办公智造#

    天花的橙色网状多边形造型是呼应前厅“飘带”语言的顺应和延展。橙色点缀是企业色的强调,给空间赋予了主题性。
    首层西翼为标准培训中心,培训教室分置两侧,中间的会服中心可供学员休息、洽谈。廊状休闲区可同两侧的培训教室分段对应,使用场景灵活而又有秩序。        

  • 凌凌易 / 设计师

    2022-10-22 08:43


    #办公智造#

     办公室实景图…        

  • 凌凌易 / 设计师

    2022-10-22 08:30


    #办公智造#

    办公室实景图…        

  • 杜飞 / 设计师

    2022-10-22 08:25


    #办公智造#

     奇丽砂陶瓷总部


    设计共有五层,首层集设计、美食、产品销售等跨界整合。打造视觉、味觉、嗅觉、触觉与听觉五重精神体验。白天,大量自然光涌入落地玻璃幕墙,以中和光雕的视觉冲击力,落窗外的景观有意可为引入室内。Q-time茶道及美食渗与其空间之中,强调场景体验,餐厅特邀知名主厨及她的品牌餐饮团队掌勺。香港香薰堂LEBARAGRANCE专门调制的独特的香味,为大家开启非一般的艺术味蕾体验,饱尝到美食给带来的艺术体验生活美感。将一座当代建筑植入这片传统展厅的街区。        

  • 杜飞 / 设计师

    2022-10-22 08:23


    #办公智造#

     —

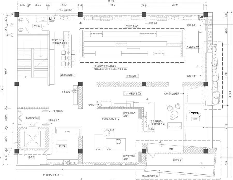
    二层以产品选材区和设计师交流区为主。而当推门开启,顺着楼梯视觉的延展,形成不被阻隔的开放动线,展示区有犹如画廊展示,欣赏丰富立体空间层次之馆,赏景心情浏览磁砖之美。在建筑外观到一楼内部延伸的中空位置,使得二楼空间还是有着室外的氛围,与强调质量和环境的花园里外相合,在洽谈区品茶道之间,让观者悦心。
    三层为国内终端商业模块标准.总部的展示主要的商业连接有二个核心。其一为品牌;其一为商业模式标准。二层整体架构不仅是一个展场形式,有如集合各使用机能的大型体验空间,透过每一个区块所诠释的展示位置,或许可发现其对象的灵活性,分别运用于空间与机能之中 , 提供另外不同展示的形式可能。
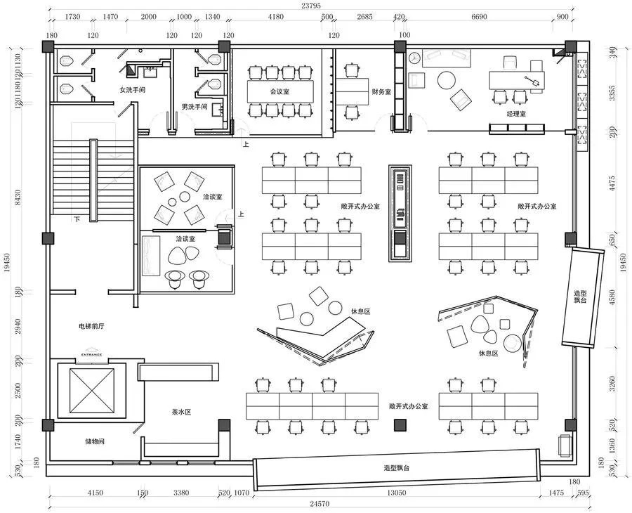
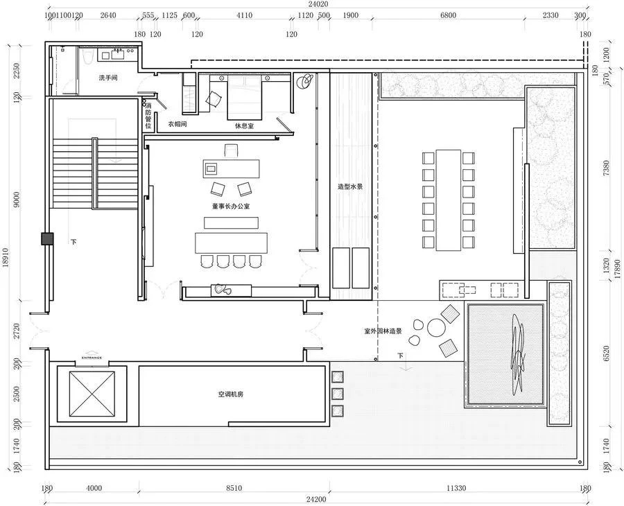
    四五层为办公空间及户外体验式花园。        

  • 杜飞 / 设计师

    2022-10-22 08:20


    #办公智造#

     —

    整个设计的过程亟须审慎,新旧文化碰撞、融合而成的视角,在块与块错落有致的转化中呈现品牌识别,改变积淀而成的传统观念,而于更新的品牌体验,建材商态的变革不再以几年为单位,而是时时刻刻面对挑战,对于传统和未来,重新定位对奇丽砂陶瓷总部而言不失为以恰当的落墨。        

  • 杜飞 / 设计师

    2022-10-22 08:18


    #办公智造#

    奇丽砂陶瓷总部

    细节与图纸        

  • 陈澄 / 设计师

    2022-10-22 08:12


    #办公智造#

    会议室中的会议桌与墙面…        

发直播

公开