当前位置:首页 > 设计圈

  • #办公智造#

    年迈的副董事长坐享的办公空间,更彰显沉稳气质。空间以木皮、皮革、金属的拼接组合构建出深浅有度、层次分明的感官体验。艺术品的置入,渲染出空间的份量感之余,构成视线的引导和虚化的空间分割节点。此起彼伏的空间节奏,构成一幅精致耐看的平面,适宜使用者长时间逗留。        

  • 毛均峰 / 设计师

    2022-11-19 15:31


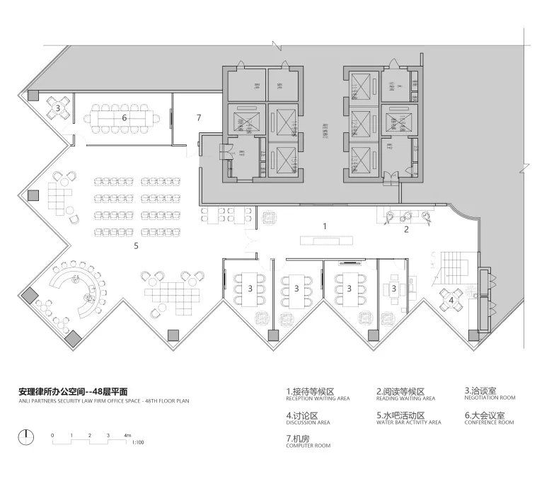
    #办公智造# 【办公空间】安理律师事务所深圳荣超经贸中心办公室

  • 毛均峰 / 设计师

    2022-11-19 15:29


    #办公智造# 【办公空间】安理律师事务所深圳荣超经贸中心办公室

  • 刘君雅 / 设计师

    2022-11-19 15:22


    #办公智造#

    透过落地玻璃窗,将云卷云舒尽收室内,黑白灰色调加上大面积的自然木纹奠定经典干净的调性。简洁的颜色总是给人无尽的想象力,适度的放空思维有利于身心的调理;钴蓝色亚克力装饰柜与光影结合,使休闲空间轻盈通透。        

  • 刘君雅 / 设计师

    2022-11-19 15:19


    #办公智造#

     简洁利落的黑色钢板则带给人冷静的现实感,形成包容而实在的交互空间。冰点蓝、稳重黑、轻奢白为主、思想灰为辅的色系,加之地毯、软装的营造,烘托出似有云层、有河流的丰富自然空间.....        

  • 刘君雅 / 设计师

    2022-11-19 15:17


    #办公智造#

    置身于这样的办公空间,质感和尺度得到合理控制,节奏和韵律自然清晰,秩序与纪律,创造与思考都在这里融合交汇。整个办公室材质选择低碳,节能,环保的概念,大量使用郎盛生态板,玻璃,金属材质等最质朴的建材,最大程度降低建造成本,于原有的空间和尺度中,赋予其更有张力的空间美感,从而成就一个创意感很强的办公空间。        

  • 张小葵 / 设计师

    2022-11-19 13:23


    #办公智造#

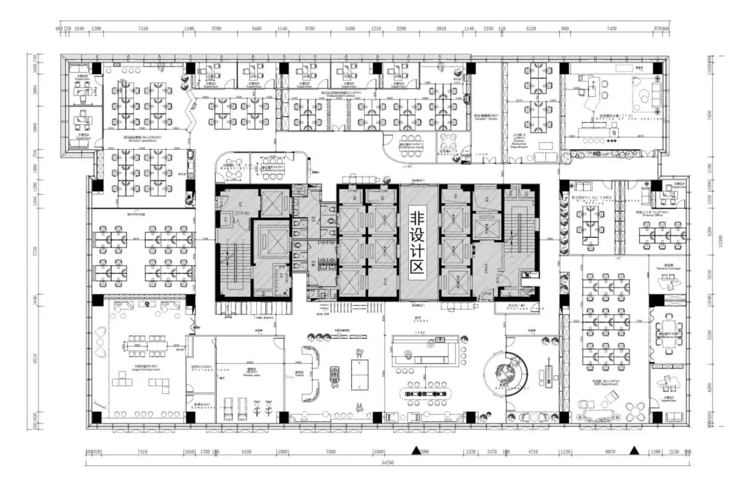
    浦发硅谷银行办公室设计提案(1)        

  • 张小葵 / 设计师

    2022-11-19 13:18


    #办公智造#

    设计提案(2)        

发直播

公开