当前位置:首页 > 设计圈
  • Diana / 设计师

    2022-11-28 07:05


    #办公智造#

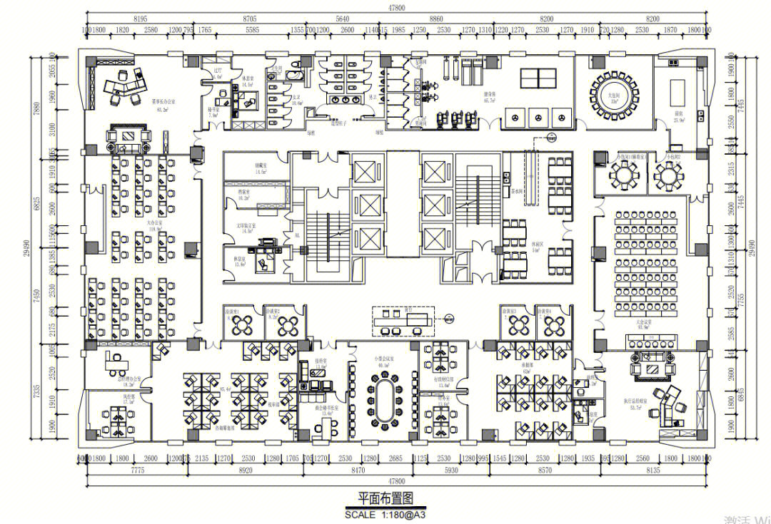
    电梯间作为第一印象门面,在线性灯带与白色格栅的通透感下配合打造光影质感空间,将大理石花纹地面最大体现出质感,智能门禁系统后背景墙发光LOGO彰显品牌标识。
    茶水间/接待室满足内外需求,最大化利用空间节约置地成本。访客拜访和员工自用的区域,与工作区域动静分离,高桌形式的座位满足员工就餐、休憩放空的需求。        

  • Diana / 设计师

    2022-11-28 07:02


    #办公智造#

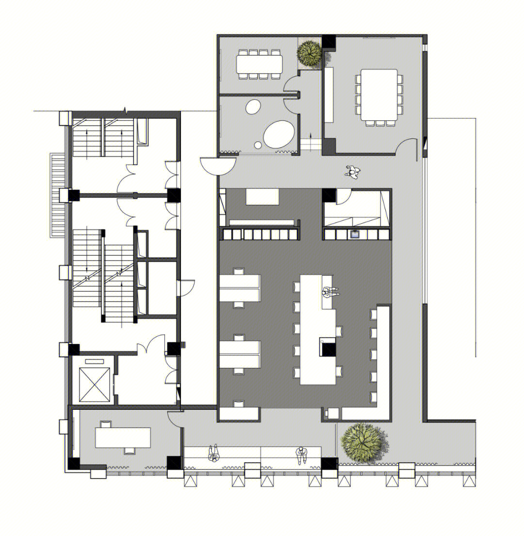
    造型吊顶与地面色块相互呼应,轻松有趣的气质穿梭在人员协作之间,中性色彩办公家具在细节上增加耐用和降低视觉刺激导致的疲劳感。真正舒适的空间做到与功能需求一致,提供给使用者专心的设施和敏捷的思路。        

  • 饶阳 / 设计师

    2022-11-28 06:57


    #办公智造#

    CMC瓷砖是一家专注于瓷砖和瓷砖产品设计过程中的技术投入的企业。在设计的语言中,我们希望采用一个表达我们客户所追求的精神的空间——一个具有“未来感”的空间。
    “未来主义”元素通过天花板和地板照明系统之间对应的微曲线的使用来可视化,这既创造了亮点,也引导了参观展厅的客户。在展示空间中,产品是空间的主体,因此需要在色彩上进行调和,以突出产品。我们使用03个基本的,中性的颜色:黑-白-灰,干净的空间。尤其是带有砖纹的黑色,让人联想到宇宙空间,展现出设计的“未来感”。
    这个项目中,我们专注于灯光设计,运用分层的方法,形成了许多光层。利用展示产品(瓷砖)的光泽效果,为空间创造和谐的光线反射。


  • 毛均峰 / 设计师

    2022-11-27 20:26


    #办公智造# 设计团队为此次项目设计的主题命名为“城市丛林”,希望引景入室,以自然为媒介,探索后工业时代的空间表达形式,修复在当下的建筑语境里面,人与自然的关联。
    天花垂吊绿植、会议室以植物作为隔墙造型、地面选用特定造型感花槽、经理位定制圆形隔档以绿植为屏风分割……多层次立体的“丛林”形态,消解空间的存在,与户外的公园相呼应,打造出有机的生命体空间。

  • 毛均峰 / 设计师

    2022-11-27 20:24


    #办公智造# 在空间功能分区与动线规划上以建筑结构柱轴网作为部门分区,每组工作站在柱子边设小组讨论吧台,半开放圆形造型经理位穿插于工作区,作为分区枢纽、便于高效沟通。功能分区不是恒久不变的,随办公空间的需求而变化,展现了空间的开放、包容、充满创造力和高效能的特质。

  • 猪猪侠 / 设计师

    2022-11-27 19:57


    #办公智造#

    办公室效果图…        

  • MING / 设计师

    2022-11-27 19:37


    #办公智造#

    极简风格办公室…        

  • 木子李 / 设计师

    2022-11-27 19:33


    #办公智造#

    金融大佬办公室…        

发直播

公开