当前位置:首页 > 设计圈
  • MING / 设计师

    2022-12-02 17:09


    #办公智造#

    出图…        

  • 小海 / 设计师

    2022-12-02 12:59


    #标准施工#

    工地推进…        

  • 敏颜 / 设计师

    2022-12-02 12:58


    #办公智造#

    办公室设计…        

  • 木子李 / 设计师

    2022-12-02 10:50


    #办公智造#

    效果图…        


  • #办公智造#

    办公室实景图…        


  • #办公智造#

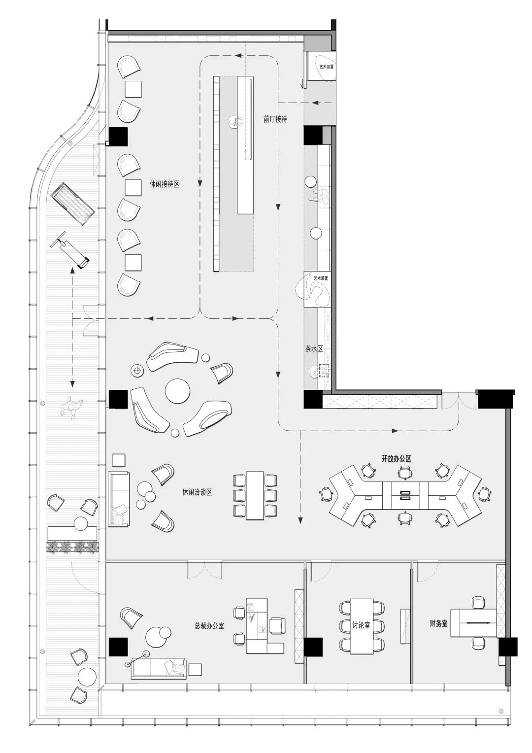
    极简而大气的当代设计语汇成为空间的定格之笔。从空间的动静界分,到储物收纳和空间功能的灵活转变,设计上兼顾了稳重舒适的质感,简明的线条、精致的光影、当代的材质,由表及里地将空间的商务气息调动起来,在这个触动深度沉浸的思考境域里,映射出使用者对办公、洽谈、会议、休闲场域的自由感知。
    在弧面线条的延伸中,深入办公室的内部空间,过道是衔接功能转变的长廊,将空间一分为二呈相对对称的分布格局。透明玻璃与百叶帘的互动,呈现“空间是一种关系”的隐喻,在内外间隔的区分中,明确不同区域属性的多维度交集。
    整个办公空间的格局呈“半回字”状,公共办公区分别位列空间的两翼处,设计师依据不同工作属性,在两个公共办公区配备不同的辅助空间。


  • #办公智造#

    在曲面与弧线延展开的景观界面中,远眺视野无限开阔,俯瞰视角繁华尽在,总裁室整体呈现为系统性与逻辑性、商务性与艺术性、独立性与互动性的融贯一体。                

  • 饶阳 / 设计师

    2022-12-02 09:45


    #办公智造#

    进行了风格多样化设计与深度沟通之后,设计师决定以橙白灰为主色调,logo橙白渐变作点缀,用方正利落的栅格条诠释以实用为目的理性美。        

发直播

公开