当前位置:首页 > 设计圈

  • #办公智造#

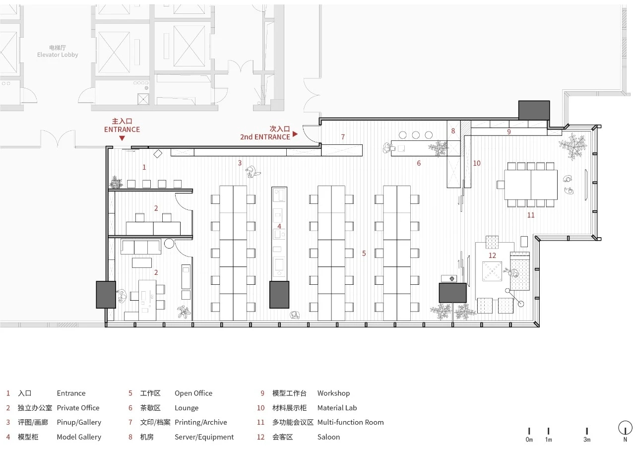
    我们在设计上运用了很多组合空间,将整个接待区域打造成一个集接待、会议、洽谈、展示、培训为一体的多功能空间。通过活动折叠门,将三个原本独立的空间连接起来,在会议室不使用的时候可以通过打开折叠门的方式让整个接待区域空间感提升三倍。在进行公司例会时,接待区域又可以作为例会空间的一部分,让空间的利用率大大提升。        

  • MING / 设计师

    2022-12-13 14:36


    #办公智造#

    效果图…        

  • 刘君雅 / 设计师

    2022-12-13 14:22


    #办公智造#

    新办公室的灯光系统设计,是针对智慧科技对生活品质的影响,以及健康、绿色和节能等多方面相互作用的一次实验性探索。智能化设计的多种可能,慕达建筑将在后续的办公生活中继续探索。        

  • 刘君雅 / 设计师

    2022-12-13 14:19


    #办公智造#

    至繁归于至简,材料设计与功能设计,感性与理性的和谐统一,温暖、纯粹、宁静的氛围基调得以彰显。当夜幕来临,环境光的冷色与室内的暖色自然过渡衔接,半透明的木百叶窗帘使得空间节奏变得不确定,变得暧昧,空间的诗意在此刻显露无疑。        

  • 刘君雅 / 设计师

    2022-12-13 14:17


    #办公智造#

    设计以空间的舒适性为出发点,温润柔和的木色成为了空间的整体底色,以不同的材料形式在顶面、地面、立面得以呈现。白色的办公桌赋予空间明快轻松,剔除掉乳胶漆表皮的混凝土立柱彰显力量感与时间感,精心设计的家具体系,灵活的空间隔断,构成了全部的空间表征,宛如一幅当代城市山水画卷。        

  • 木子李 / 设计师

    2022-12-13 14:04


    #办公智造#

    办公空间设计…        

  • Diana / 设计师

    2022-12-13 14:02


    #办公智造#

    特拉斯上海办公室…        

  • 大鹏 / 设计师

    2022-12-13 14:00


    #办公智造#

    传统与现代办公室设计…        

发直播

公开