装修案例
灵感美图
找设计
找工长
看工地
记住密码
我已阅读并同意注册协议
发直播
KT锦悦311木纹砖莱姆石
国庆八天乐
常规铝板门头施工图深化-测量复核:现场精准测量门头尺寸,误差控制在±3mm内。- 基层处理:采用热镀锌方钢做骨架,焊接后防锈处理,用膨胀螺栓固定,保证骨架平整牢固。- 铝板安装:选用厚度≥2mm铝板,用专用干挂件安装,拼接缝均匀,做好密封防水。- 成品保护:施工中避免铝板表面磕碰、刮花,完工后及时清理。
背景墙
办公空间的植物
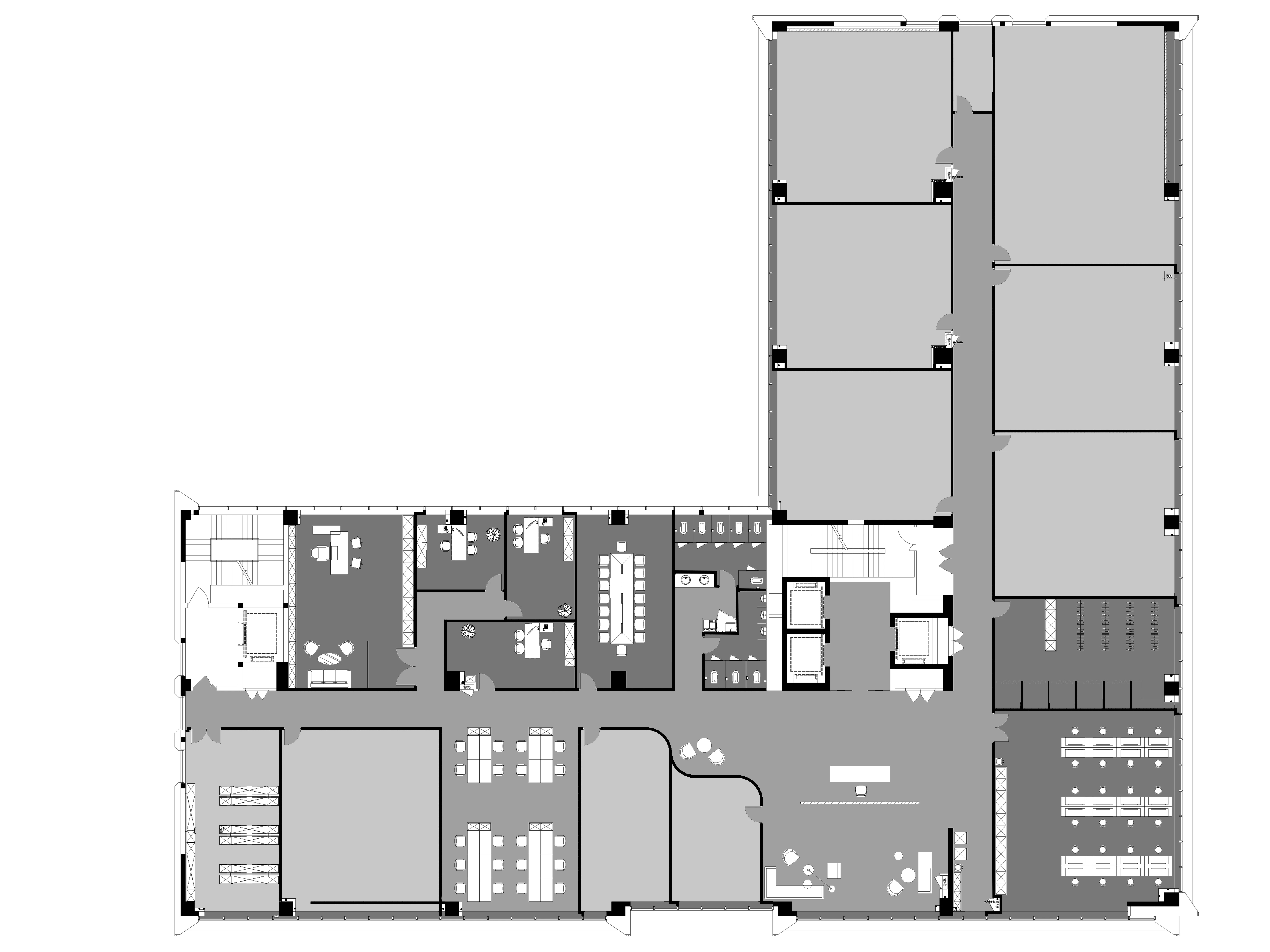
办公空间设计创意
顶面造型节点
发光树影背景墙图纸