当前位置:首页 > 设计圈
  • 小筑 / 设计师

    2023-03-16 15:12


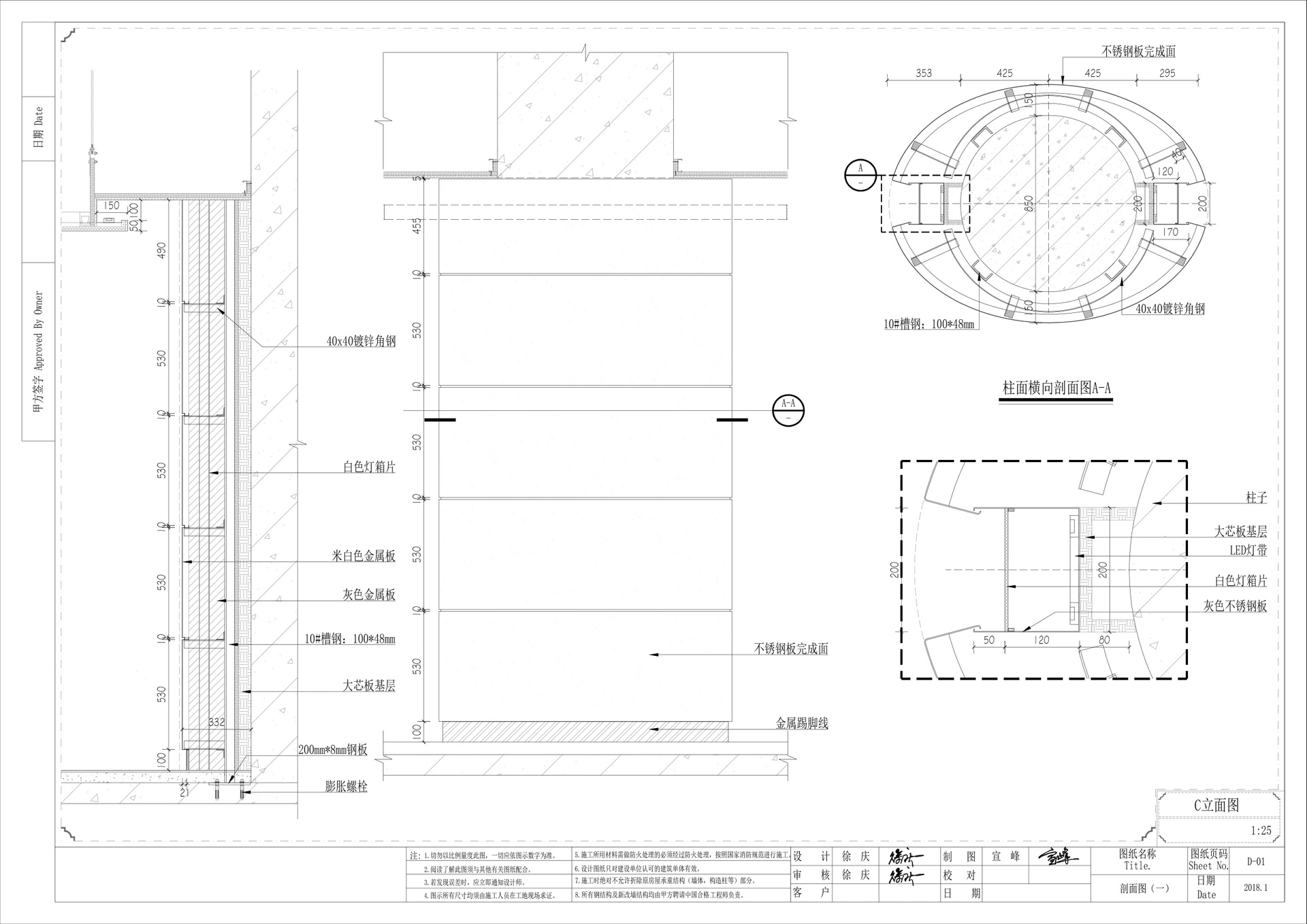
    #标准施工#

    楼梯踏步节点        

  • 张小葵 / 设计师

    2023-03-16 15:09


    #办公智造#

    现代风格老总办公室        

  • 小筑 / 设计师

    2023-03-16 12:41


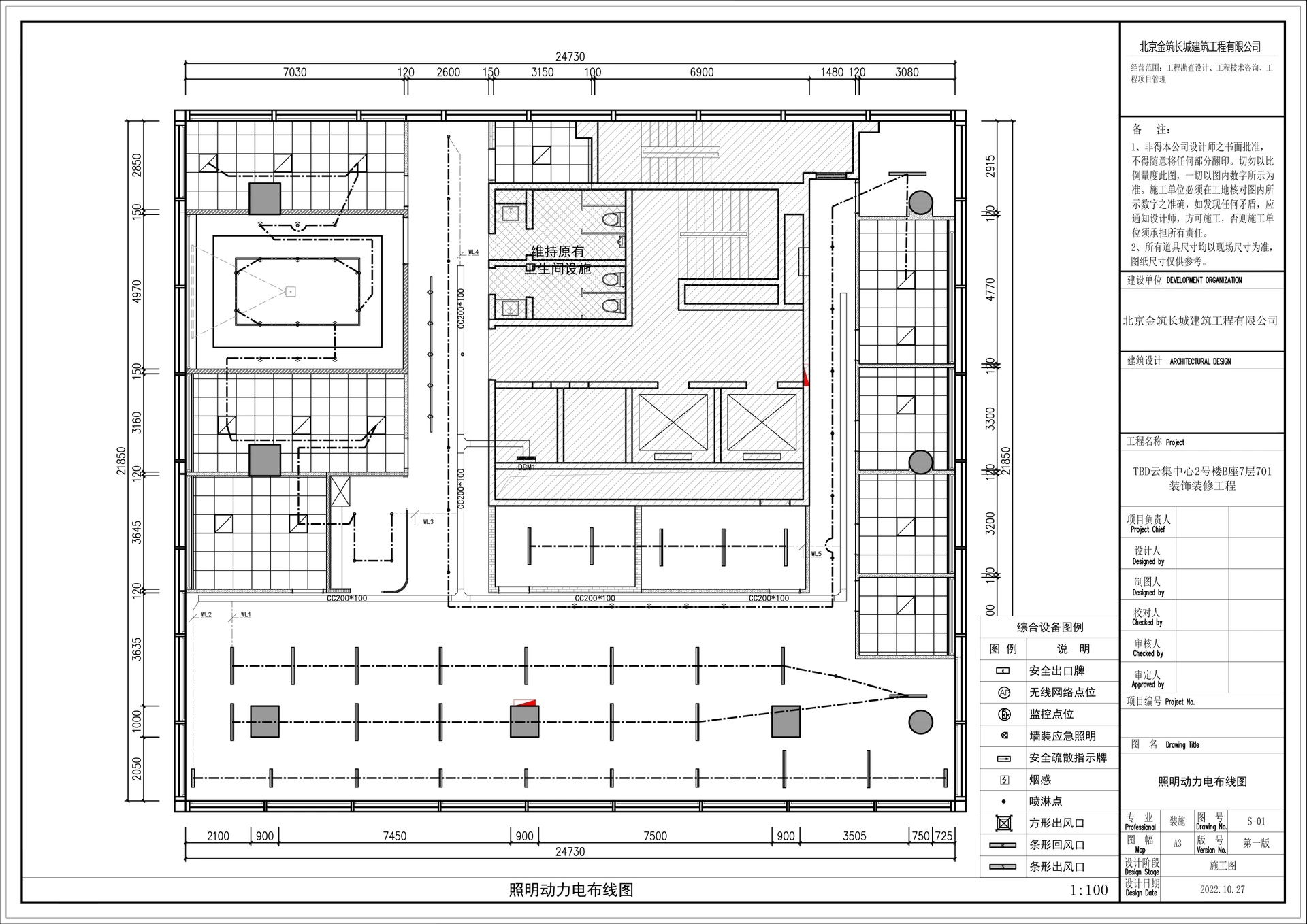
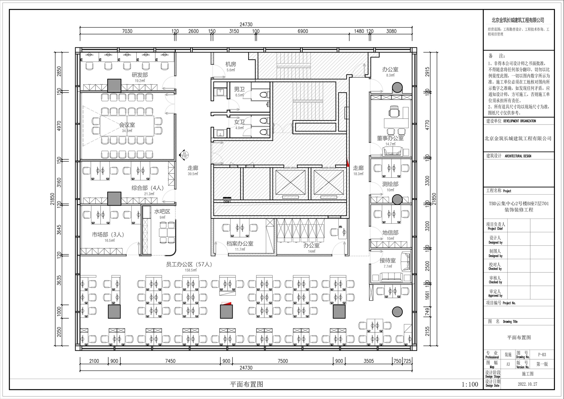
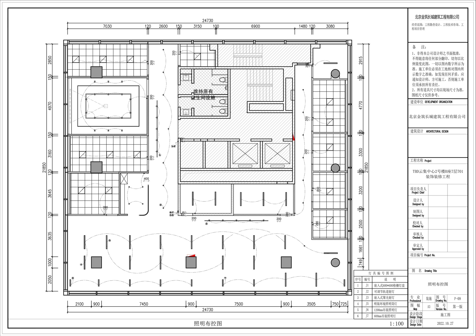
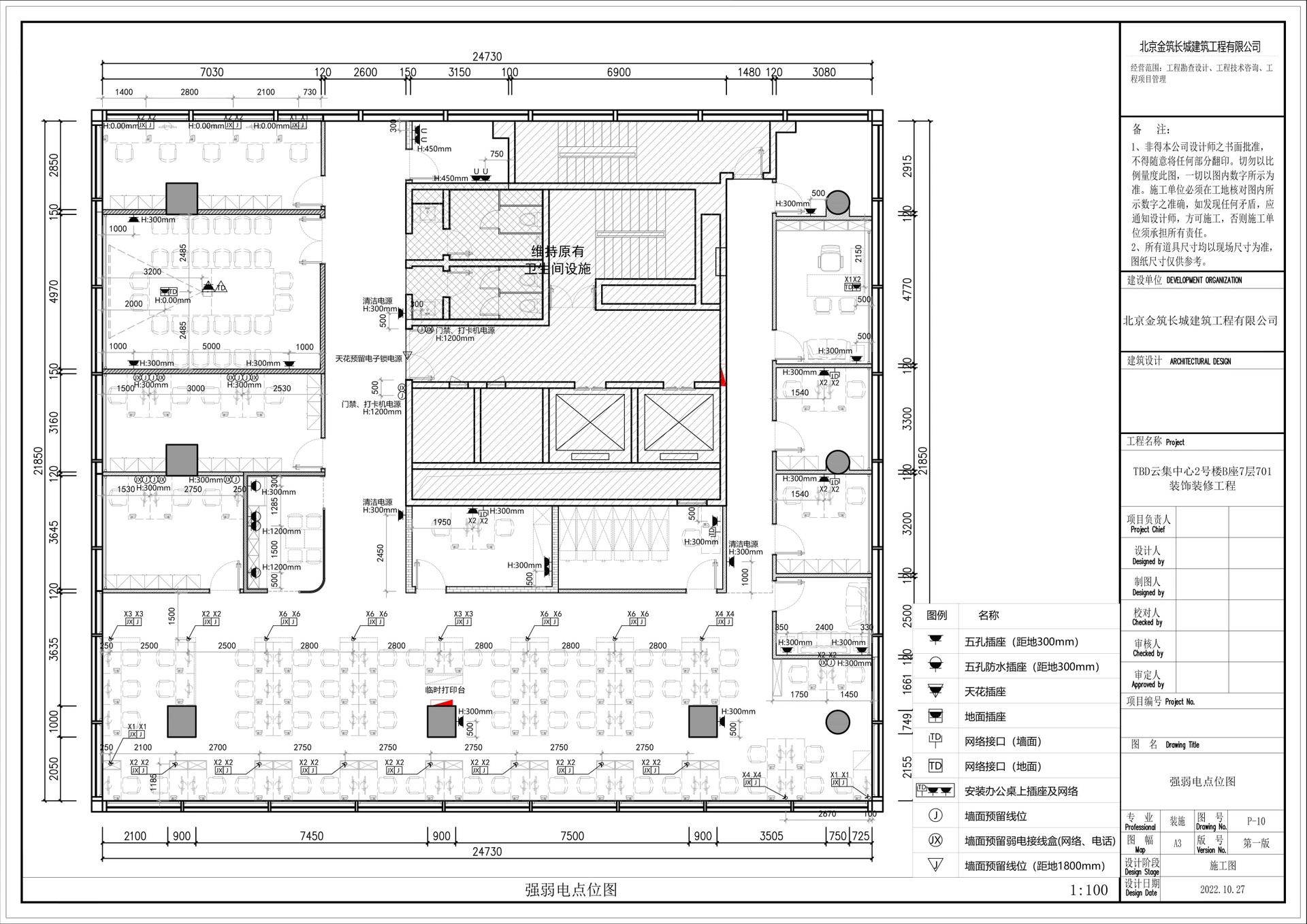
    #办公智造#

    办公室平面系统图纸        

  • 小筑 / 设计师

    2023-03-16 12:33


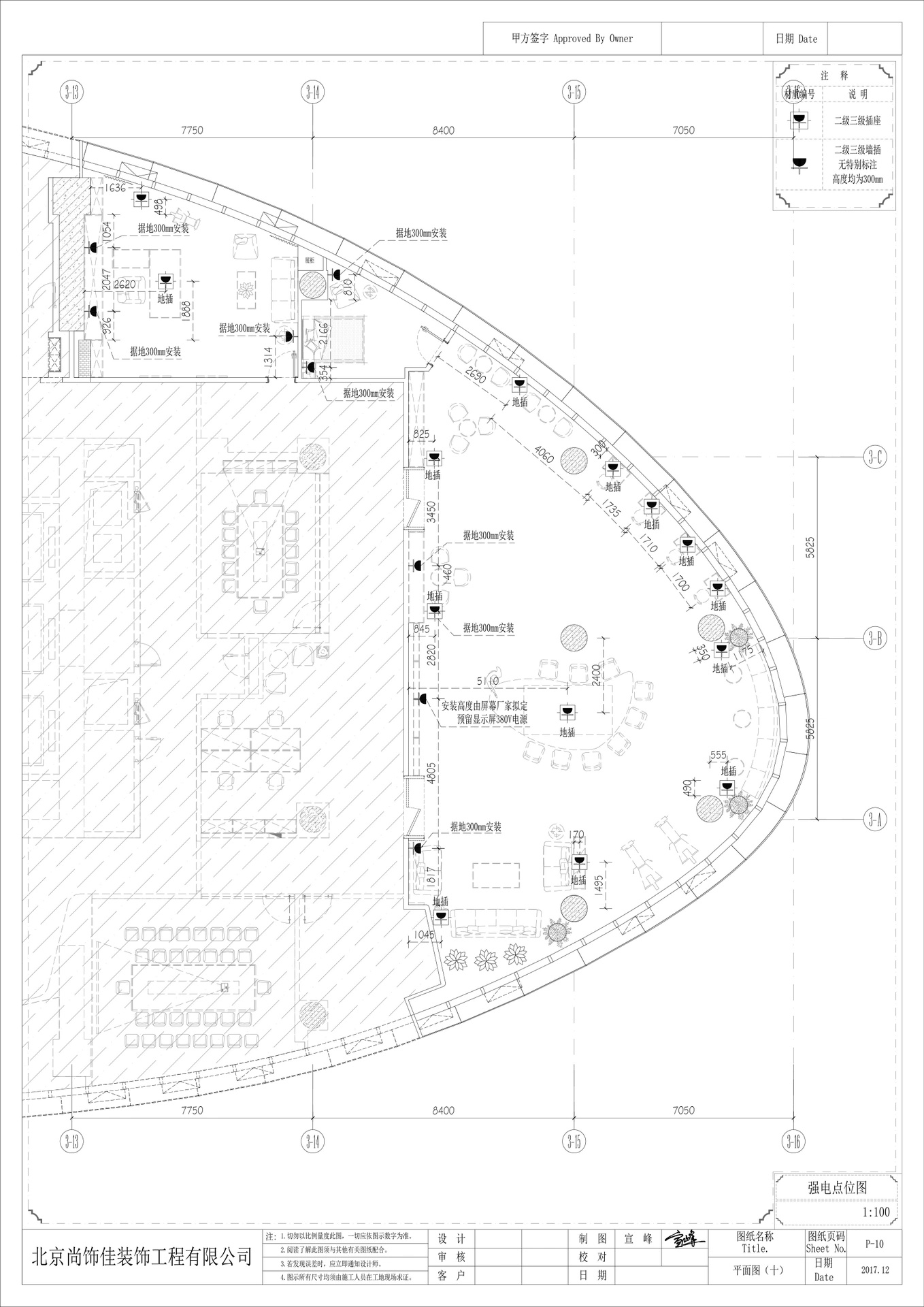
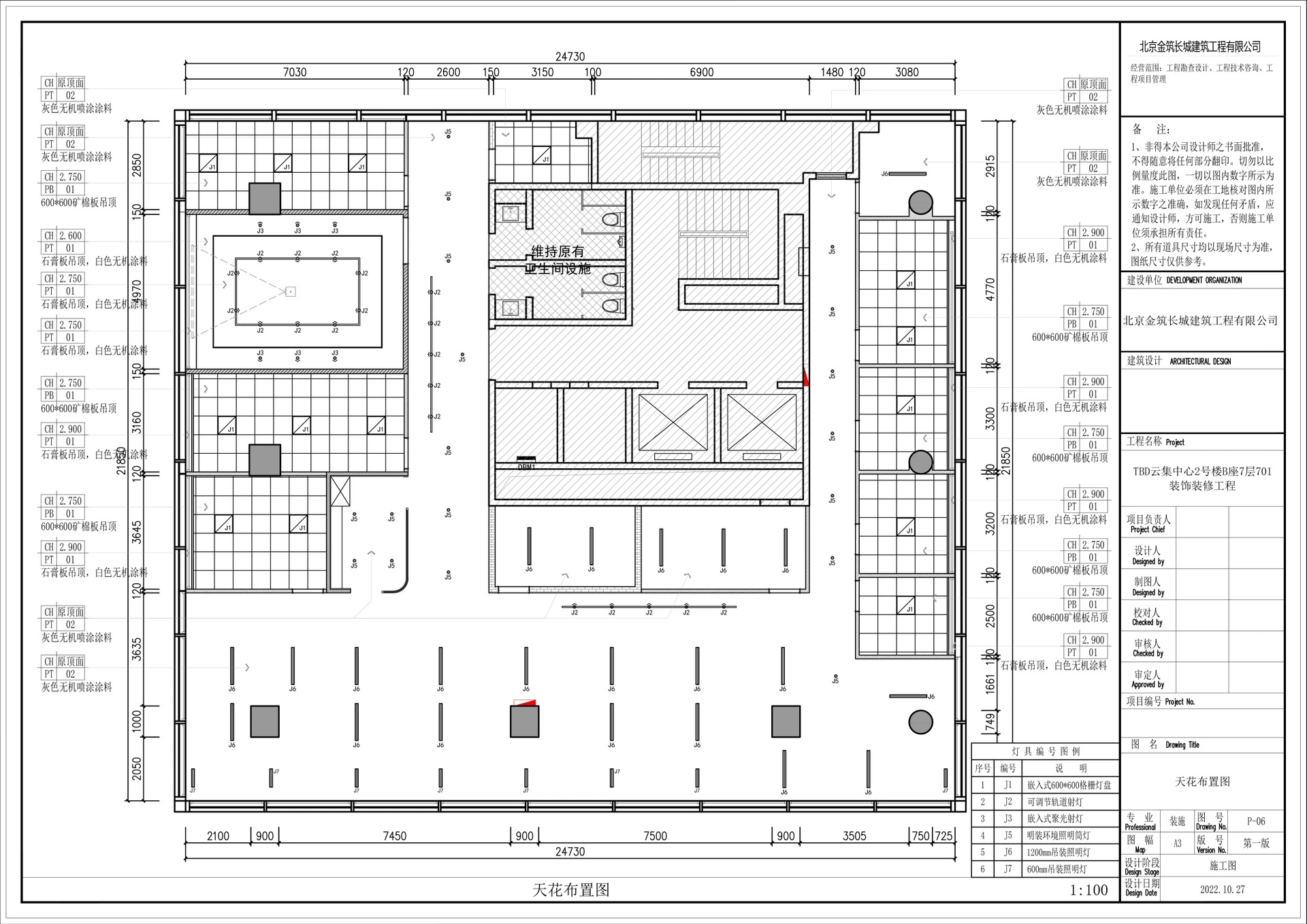
    #办公智造#

    平面系统图纸        


  • #办公智造#

    蓝色空间        

  • 饶阳 / 设计师

    2023-03-16 07:56


    #办公智造#

    接待前厅,素白底色的墙壁嵌一弧原木格栅,简洁自然有亲和力,正对入口处的公司及LOGO,醒目有辨识度。接待台同样以木条排列四周包边的施工工艺,使整个空间协调统一
    办公空间的“影壁墙”,以公司LOGO的颜色为底色,使用吸音材料,呈现一处品牌展示墙,彰显企业文化属性的同时,缓冲空间开放和隐秘的视线关系。
    平面布局上,设计师从原有建筑空间的结构和企业发展数字行动等功能诉求出发,集中布局休闲洽谈区,茶水间,会议室,资料室等公共空间,沿窗自然采光良好的区域布局开放办公区,合理规划行动流线,提高办公效率。        

  • 饶阳 / 设计师

    2023-03-16 07:54


    #办公智造#

    色彩可以调节办公空间的光线,塑造不同的空间情绪,我们以橙黄色营造休闲洽谈区的明亮和温馨氛围,同时橙色吊顶形成的漫反射光,拉长了空间的距离感,大大增家空间的趣味性。茶水间吧台,随意组摆的沙发坐凳,成为员工休憩,探讨问题,临时待客,交流情感的场所。
    开放式办公区域,采用岛台式方式布置桌椅,同时考虑人体工程学及办公空间的生态环境,计算出一定的距离,设置节点空间。
    电话亭,隔音降噪,便捷可移动,是营造安静的开放式办公环境的灵活驿站,也是专属个人办公的静谧思考空间。不同规模的会议空间满足不同的需求。大会议室配备智能化设备,满足远程会议,或内部员工培训等需求,小会议室满足小型讨论会或者站立办公需求。


  • #办公智造#

    粉嫩办公空间        

发直播

公开