当前位置:首页 > 设计圈
  • 丽旻 / 设计师

    2023-03-17 13:45


    #办公智造#

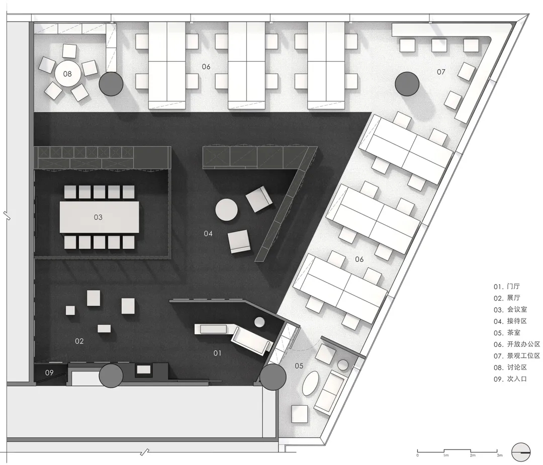
    为了让功能区域最大化,我们将所有辅助功能集中在用以做空间分隔的中部墙体。水吧台、打印机、服务器机柜、书籍模型展柜以及储藏等功能对应地向两侧提供服务。墙体保证了两个区域一定的独立性并丰富了空间层次。在锐角侧打开的取景框对应建筑形体,不仅让接待区的使用者享受城市景观,更是对不同区域间互动沟通的促进。
    由白色办公家具和白色地毯组成的办公区域和公共区域的深色形成对比,将自然光照形成的明朗氛围最大化。顶部原有的金色铝板由此得以自然地纳入,对室内空间的影响降至最低。端部窗侧的景观工位给午餐的员工带来更好的心情。        

  • 丽旻 / 设计师

    2023-03-17 13:43


    #办公智造#

    胡桃木、跳色家具在黑白两色的纯净环境中尤为凸显,为空间带来温暖和品质感。        

  • 蓦兰 / 设计师

    2023-03-17 13:28


    #醉美庭院#

    有个小院子一定要做个景墙来丰富下庭院的布置和景观,木塑墙板搭配铝艺做成的景墙,放在一进门的地方,谁来了都得夸一句好看!        

  • 毛均峰 / 设计师

    2023-03-17 12:50


    #办公智造#

     生命与自然共存 / 本质上是无机界和有机界 / 与人类社会的组合 / 大气层、水、土壤岩石和生物圈 / 受人类社会的创造物所影响 / 构成庞大的自然界 / 它系统、复杂、无穷而多样        

  • 刘君雅 / 设计师

    2023-03-17 12:37


    #办公智造#

    回归对办公情绪的关注,保留黑与白的简洁与单纯,专注于空间内的光影与轮廓 。材质上选择拼接多层次的黑色,煤黑实木皮及织物毯。        

  • 刘君雅 / 设计师

    2023-03-17 12:35


    #办公智造#

    以原始混凝土灰作为公共空间的底色,简单粗犷的肌理衬托空间的光线,营造原始质朴的氛围。动线细节提升空间体验,功能划分在关联中酝酿出恰好的凝聚力。和而不同,兼容并蓄。        

  • 杨梅酱 / 设计师

    2023-03-17 12:23


    #办公智造#

    办公室实景图        

  • 木子李 / 设计师

    2023-03-17 12:20


    #办公智造#

    前海安联办公室(1)        

发直播

公开