当前位置:首页 > 设计圈
  • 庆东 / 设计师

    2023-03-26 22:46


    #办公智造#

     企业工作内容与环境水利相关,所以我们设计了木饰面为主的墙面处理,装饰上利用不锈钢压纹材质,引入流水概念。象征水的流线型顶面灯光,利用灯光贯穿整个大厅和走廊,增加空间联动性及现代科技感,灯光延伸至形象墙,连接水波纹不锈钢板,从墙面到地台到大理石地面,就好像瀑布飞流直下。作为局部点缀,倒火山口造型,底部设计地球灯装饰,抬头,就好像看到了世界。
    在进入会议室的走廊上,鲜明的蓝色点缀着人们日常忙碌的空间。大面积的电视屏幕在使用上增强了感官效果。覆蓝膜玻璃,呼应设计主题,视觉上提升整个空间,同时与办公区蓝色呼应,利用窗洞做休息座位,成为不错的观影区。        


  • #办公智造#

    轻奢时尚办公空间(1)        


  • #办公智造#

    轻奢时尚办公空间(2)        

  • 小筑 / 设计师

    2023-03-26 22:06


    #标准施工#

    金属屏风节点图        

  • 喀秋莎 / 设计师

    2023-03-26 20:46


    #办公智造#

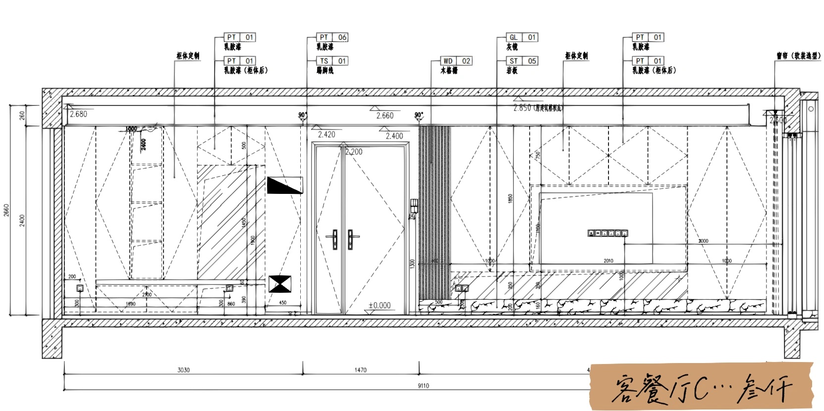
    剖面图与效果图        


  • #办公智造#

    总经理新中办公室        

  • 饶阳 / 设计师

    2023-03-26 19:22


    #办公智造#

    一个由大量平行直线条构成的空间入口,是从外部进入内部的链接。抛开无用且累赘的装饰,整体大空间上运用了平行的线条去叠加从不出错的黑白灰。局部的金属摆件点缀了整个空间,除了增加细节感之外,更在不经意间体现出设计上的精致和典雅。
    白色为主题搭配色调,没有繁琐的设计和过多的装饰,纯净宁静之中透露着细节与品质。
    条纹地毯线条利落,充满艺术感的雕塑摆件、挂画灵动而自由,将都市生活融汇进来,使工作成为的另一种可能。
    办公空间内将会客室与茶室融合,“以茶会友”,宽而长的木桌让干练的办公室多了一分质朴,使得空间的风格更具层次感,古朴的茶杯和温润的茶香为空间增添一抹禅意,引领客人在一个惬意随性的氛围中洽谈。洽谈区,暖调的灰色沙发,一抹明亮跳跃黄色,于空间中注入一丝轻松明快的氛围。        

  • 饶阳 / 设计师

    2023-03-26 19:19


    #办公智造#

    「餐厅和会所」设计的魅力是常常试图打破边界与固有局限性,让空间出现更多的可能性与趣味性,使置身于空间的人尝试不同的体验。办公空间变成艺术空间,同时加入现代人文,塑造办公室独特的气质。

发直播

公开