当前位置:首页 > 设计圈
  • 木子李 / 设计师

    2023-03-30 14:21


    #办公智造#

    拉马丹办公室设计        


  • #标准施工#

    卡式龙骨节点图        


  • #办公智造#

    办公室设计        


  • #标准施工#

    滑轨门节点        

  • Bobo / 设计师

    2023-03-30 07:07


    #餐饮美食#

    餐厅外立面
    贵州多山峦,餐厅的外立面使用了未过多加工的山石,以此来还原自然的造型,表达对大自然创造的力量和美学形状的崇敬。石门是可活动的,关闭时具有隐藏入口的作用。
    餐厅规划
    在正方形的空间中,划分出包间与寿司吧台、铁板烧房间等包间区域,并以五行元素命名。包间错落的布局中形成了间隙,我们利用这个间隙为各个包间设计了对应的景观,既美观又能保证包间私密性。        

  • Bobo / 设计师

    2023-03-30 07:05


    #餐饮美食#

    餐厅的用餐区域主要由包间和分散的散座区域组成。在以包间为主的餐厅中,我们将每个包间视为独立的建筑,具有独特设计的外立面,又需要做到每个包间外立面诙谐统一。铁板烧包间被设想为一个半开放式的空间,外立面使用玻璃砖,在确保一定程度的隐私和开放感之间取得平衡。铁板烧包间以“火”为主题,整体为暖色调。寿司吧台区域以五行中的“水”为主题的。我们想表现光反射在水面上的效果,最终它呈现了一个强大而具有象征意义的寿司柜台。富有层次感的组子细工格栅保证了寿司吧台区域的深度感与私密性。榻榻米包间以“木”为主要元素,通过在创造间隙的同时建造墙壁和展示架,减少了密封感。        

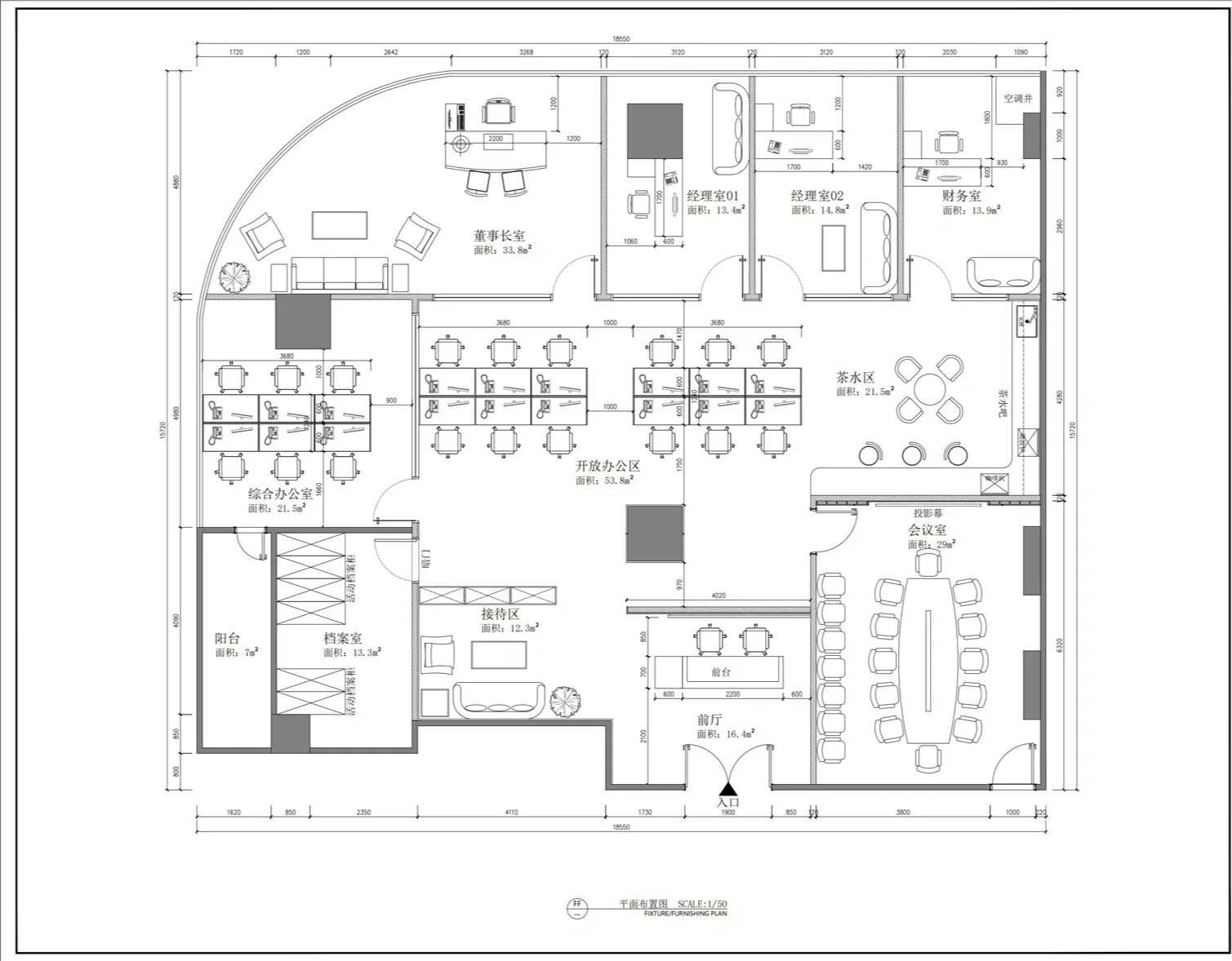
  • Mr.Wang / 设计师

    2023-03-30 06:48


    #办公智造#

     现代风格(熬夜出图)        

  • 小筑 / 设计师

    2023-03-29 23:51


    #办公智造#

    定制柜体收口        

发直播

公开